© Gabriel Castro / Reverbo
加布里埃尔·卡斯特罗/里韦博
架构师提供的文本描述。在不同的地形和环境下,巴西有机会生活在森林中:无论是在田野还是在城镇,到处都是土著森林的残余。享受气候和与自然的接触,对于设计它的人来说,是一种挑战,也是一种特权。
Text description provided by the architects. In different terrains and contexts, Brazil have the opportunity to live in the forest: either in the field or in town, interspersed with remnants of native forest. Enjoying the climate and the contact with nature is, for those who design it, a challenge but also a privilege.
© Gabriel Castro / Reverbo
加布里埃尔·卡斯特罗/里韦博
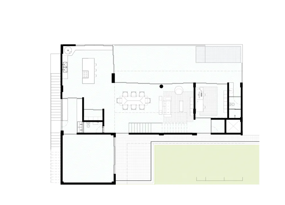
Second floor plan
二层平面图
© Gabriel Castro / Reverbo
加布里埃尔·卡斯特罗/里韦博
该提案的开发场地力求通过将住宅安置在地形的上部,将所有内部环境与外部自然景观(由绿叶树木组成)建立直接关系。因此,宽敞的开口和阳台使空间结出硕果。
The pmises for the development of the proposal seek to establish a direct relationship of all the internal environments with the external natural landscape, composed of leafy trees, by implanting the residence in the upper part of the terrain. Hence, the generous openings and balconies conform spaces fruition.
© Gabriel Castro / Reverbo
加布里埃尔·卡斯特罗/里韦博
房子的亲密区域,包括三间卧室和一间客厅,位于上层甲板上。中间层位于起居室、缝纫室、宽敞的厨房和服务区。
The intimate area of the house, which houses 3 bedrooms and a living room, is located on the upper deck. In the intermediate floor it is located the living room, sewing room, a generous kitchen and service area.
© Gabriel Castro / Reverbo
加布里埃尔·卡斯特罗/里韦博
此外,该房屋的入口匝道下方的空间有一个小型的微型啤酒厂在这一层,游泳池所在的地方下层有存款、外浴室和游泳池的引擎室
In addition, the space under the access ramp of the house has a small microbrewery. It is on this floor that the swimming pool is located. The lower floor has a deposit, a external bathroom and the engine room of the pool.
© Gabriel Castro / Reverbo
加布里埃尔·卡斯特罗/里韦博
Architects Flávia Lutkenhaus, Marcos Franchini
Location Bosque Residencial do Jambreiro, Brazil
Category Houses
Area 390.0 m2
Project Year 2018
Photographer Gabriel Castro / Reverbo
Manufacturers Loading…

