37fc住宅位于一个隐蔽的住宅口袋内,坐落在曾经有一个半独立式住宅的土地上。业主委托建筑师构思一个独立的房子,以适应多代家庭的需要。最大化的地块边界,最终的设计产生了一个新的4层结构,包括阁楼和地下室。
 
 
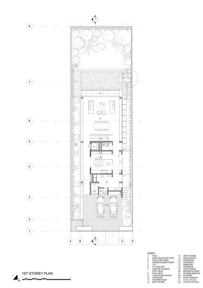
一楼
花岗岩瓷砖排列在车道区域,与纹理分明的清水混凝土和占据前立面的落地镜面玻璃窗形成了很好的平衡。柚木被广泛用于整个家庭,从入口开始,在那里整齐地隐藏了服务区域和存储空间。
 
 
一扇玻璃前门打开,露出一楼体量的内部。服务区域以深灰色的饰面为特色,位于房子的前面,厨房直接位于后面。室内和室外空间通过可伸缩的落地窗系统融合在一起。
 
 
多才多艺的一楼客厅拥有抛光混凝土地板,流向花园和蓝色的苏卡布米瓦游泳池在后面-作为一个屏障缓冲公路直接运行在后面。绿色是一个与房子很好地结合在一起的主题,在房子的前面和后面的每一层都有绿色的空间。玻璃镶板沿着一层延伸,展示了装饰住宅外边缘的绿色植物。
 
 
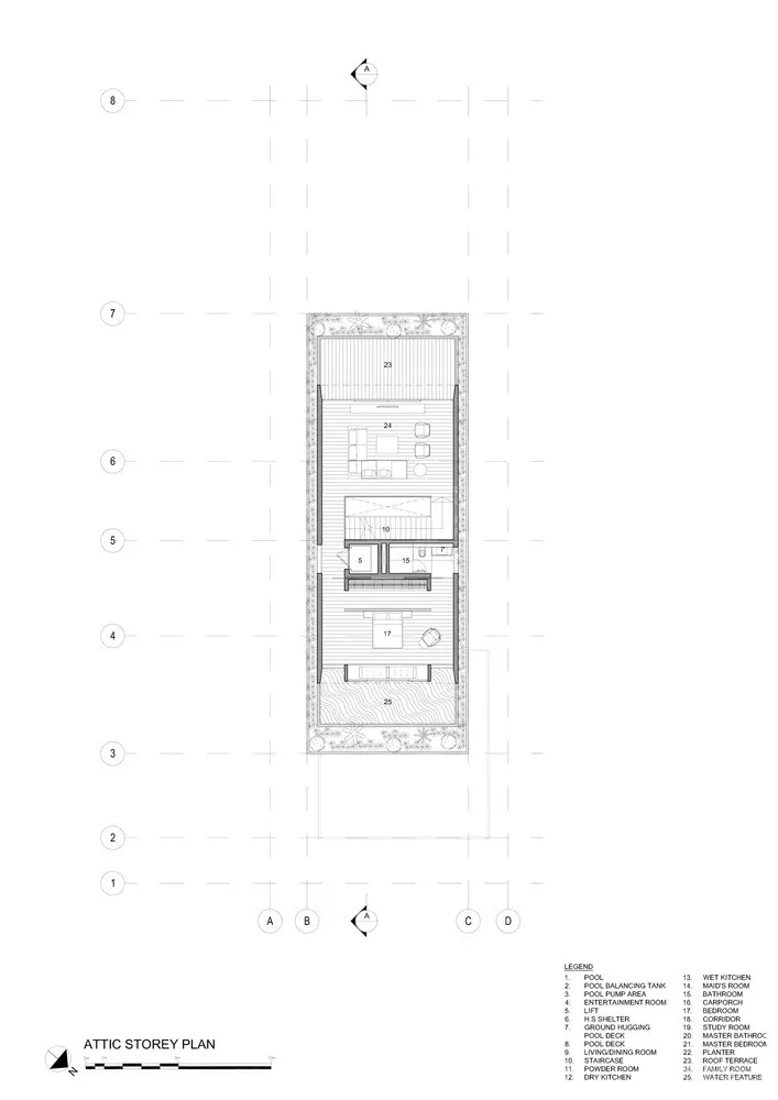
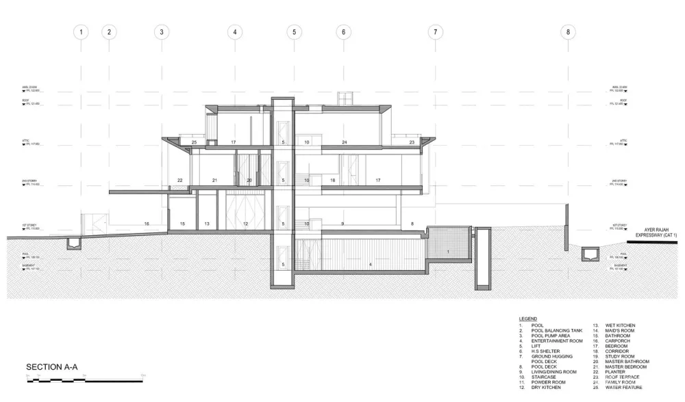
上层,地下室和阁楼
二楼的体量大约是地面体量的1.5倍,包括一个矩形体量,由纹理和清水混凝土制成。费伯新月酒店的二楼有几间卧室,卧室的尽头是倒角切边,可以看到街道和花园的景色。主卧配有一个步入式衣橱和一个宽敞的主浴室,两间小套房俯瞰后院花园和游泳池区。
 
 
一座黑色的钢制雕塑楼梯连接着住宅的四层。楼梯的底部通向地下室,里面有一个最先进的多媒体教室。来自游泳池的光线通过远处的玻璃端口进入地下空间。楼梯顶部的天窗使自然光如瀑布般倾泻入室内。还有一间阁楼,兼作客房,在那里为绿化和水景分配了空间,增添了特色。
 
 
37fc住宅被设计成智能住宅,减少了碳足迹。从减少能源消耗的太阳能电池板,到允许智能手机应用程序控制照明的EIB系统,家庭包含的一些功能节省了近30%的总能源。
 
 
 
 

 
 

 
 

 
 

 
 

 
 

 
 
 
 
 
 
 
 
 
 
 
 
 
 
地址:新加坡
年份:2017
摄影:Derek Swalwell


