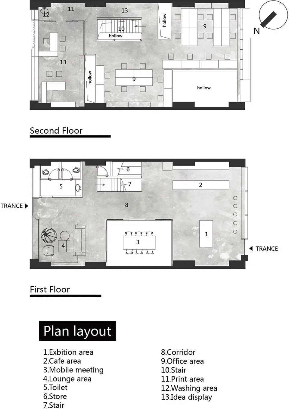
移动的玻璃盒子营造空间丰富性和功能多样性:本项目是边界实验工作室的办公空间,原本是一层6.0米层高的店铺空间。利用钢结构夹层把原有空间分割为一二两层空间使用。一层为T.E.M.P艺术空间,设置了吧台、会议空间、卫生间及展览装置,夹层为Edgelab工作室的日常工作空间。
本设计的出发点是希望一层T.E.M.P艺术空间具备功能的多样性,可以用作会议、展览、办公、娱乐活动、及产品展示的功能。因此,我们设置了一个玻璃的可移动的会议空间(Meeting box),利用会议空间的前后左右的位置移动,产生出多种不同尺度的空间,达到多样的空间布置的可能性。
钢结构夹层的搭建,为了保证一层空间没有柱子,夹层采用了自行设计的钢吊柱的结构形式;同时我们通过对夹层平面挖洞的方式,加强一层与夹层之间的互动和交流。
通过平面方洞,不仅可以补充一层中段部分的采光,同时加强了整个空间的气流流通状况。建筑物的正面和背面,我们透过大面积玻璃的方式,保证室内空间充足的采光。其中独具特色的是,利用横向长窗将建筑物周边大片的树林绿化景观充分地引入室内。
整个设计的材质运用上,我们希望保留混凝土、钢结构夹层、夹板的原有外貌,收口自信直白,外形直接表达构造之美。配合大面积的留白,使得整个空间体现理性而又质朴的感觉。
项目名称:Edgelab边界实验工作室
设计方:Edgelab边界实验工作室
公司网站:www.edgelab.net.cn
联系邮箱:1340436359@qq.com
设计年份:04/2018-06/2018,
完成年份:07/2018-10/2018
主创:黄智武、何钢荣
团队:梁文朗、冯嘉豪
项目地址:广东佛山市顺德区大良街道近良路13号嘉德尚层9号
建筑面积:200平方米
摄影版权:左小北(恩万摄影)
客户:Edgelab边界实验工作室

