Gafarim住宅是一个将本土原则与新造型主义对造型、场所、景观节制性表达紧密融合的二元性项目。在散落非连续性的自然景观中,Gafarim住宅采用了葡萄牙北部流行使用的简洁平行六面体形状和与环境协调的尺度,为街道呈现了一个整体不透明的体块外观。建筑仿佛在所处的环境中拥有自主权——一个在独立群体中的独立物体——它的形态秩序和细节与葡萄牙后乡村装饰主义不同。宽阔高屋顶的室内空间融合了远处的景观,与住宅外部秩序形成对比。入口是一个时间与空间上的漫长过渡。从外部到入口空间再到室内,从阴影到光线,从实体到透明,这种渐进的对比是项目双重性与对比性主题的重要体现。
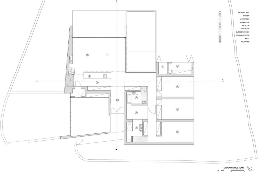
通过一个紧凑的空间步入室内,两层高的建筑体块容纳了住宅的社交空间,建筑师采用了当地家庭空间的组织方式,将厨房、餐厅和起居室容纳在一个屋顶空间中。这个非常通透的空间通过一面宽玻璃墙与场地及周边广阔的Minho景观建立了联系。尽管空间是透明的,开放的东北面墙体能够控制进入内部的自然光线,沐浴在水面反射的晨光下,夹层中渗透下来午后阳光照亮了空间,每年、每天,变化的自然光线为建筑注入了活力。室内没有明确的分隔,住宅内的私密空间自由延伸,内部所有的卧室都朝向东南方。内部小庭院可供主卧及洗手间使用,小庭院是虽然在住宅内部,却提供了一个象征性分离的空间。






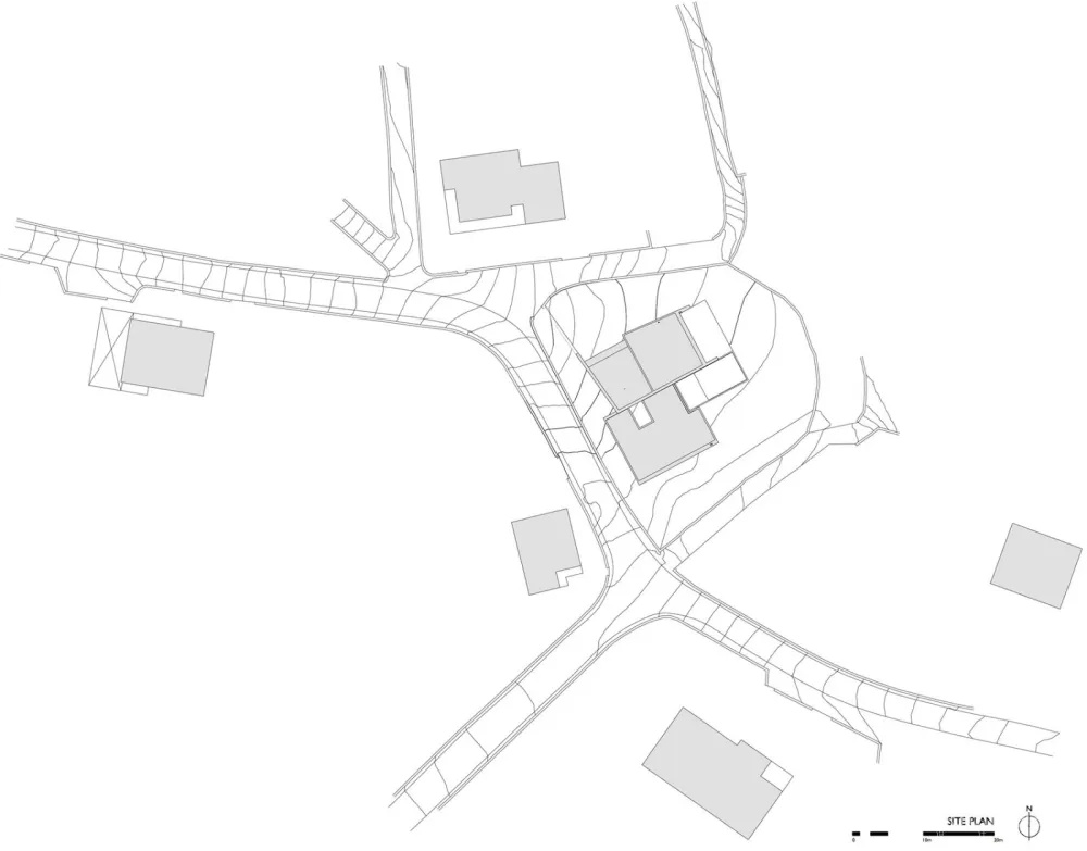
▼场地平面
▼首层平面
▼夹层平面
▼西南立面&东北立面
▼西北立面&东南立面
▼剖面
▼草图
设计公司:Tiago do Vale Arquitectos
位置:葡萄牙
类型:建筑
材料:木材 金属 混凝土 玻璃
标签:Ponte de Lima 蓬蒂迪利马
分类:住宅 住宅建筑


谢谢分享