一个时髦的三卧室的房子Lampėdis采石场的岸边上的独特位置。客户选择的地块明显面向水体,海岸线上清晰地出现了一个扩音器样式的住宅。正是因为这个原因,地块的景观解决方案是禁欲的;宽敞的庭院强调了对水体的开放视野。
建筑的概念是基于屏幕架构的原理。主立面上优雅的飞檐创造了深度印象,将一个简单的形状变成了一个有趣有趣的物体。这个独特的细节创造了一个干净和极简主义轮廓的立面,在框架巨大,固体玻璃立面。逐渐变细的檐口使结构变薄,使体量更加锐利。根据建筑师,飞檐就像一匹马的眼罩、指挥的目光主要核心——Lampėdis采石场也关闭视图从周围的建筑。它不仅是一个美丽的建筑细节,也是一个功能解决方案。飞檐巧妙而时尚地将起居空间与相邻地块分隔开来,同时保护玻璃幕墙免受环境影响:阳光、降水,并作为一楼露台的遮阳篷。
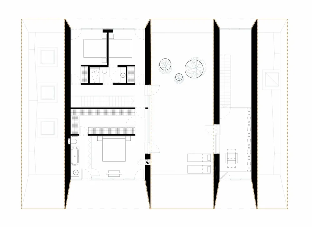
建筑体量美观整洁。它由三部分组成:第一层的主矩形和第二层的两个不同的矩形体块。主卧室在立面上非常显眼。它是由图书馆加权的。这些元素减少了体量规模,并在立面线上创造了动态效果。铜锡被用于立面的装饰。
建筑方案在住宅的室内外创造了一个有趣的场景。从庭院看,优雅的飞檐集中在玻璃立面和开放的室内。相反,房子的内部强调开放的全景。透过窗户往外看,周围好像没有别的建筑物,只有前面的水。

建筑师说建筑的概念取决于功能需求。顾客有一个独特的职业——养狗。因此,他们想把整个街区都建在一楼养狗。这种设计方案也反映在体量中。第一层的面积明显高于第二层。室内空间的动态是由建筑中心的开放大厅创造的,与二楼的图书馆相连。还有一个宽敞明亮的生活区。巨大的展示窗口允许欣赏Lampėdis采石场的景观,并带来大量的自然光线。由于立面的飞檐创造了私密的感觉,所有的生活空间都是开放的,没有窗帘。开放的概念也保持在主卧室Lampėdis采石场的提供更富有表现力的视图。与立面类似,极简主义美学在整个室内保持干净。
在这里,我们确实可以感受到人类生活、周围的自然和建筑之间的联系。
位置:立陶宛
年份:2018
设计:Architectural Bureau G.Natkevicius & Partners
摄影: Leonas Garbačiauskas

