A Long House位于福岛索马市。南相马市以“野茂岛相马”野马追逐节而闻名,这是福岛最大的节日之一,或者被公认为“临时疏散指定区域”。福岛核灾难发生后,许多人搬出了这座城市,但仍然远离这座城市。这个地区有大量的空房子。业主和他的妻子分别要求我们进行装修,他们也别无选择,只能暂时撤离。在解除管制之后,他们选择回到他们已经生活了几十年的城市,我们被要求重新装修他们珍爱的家园。
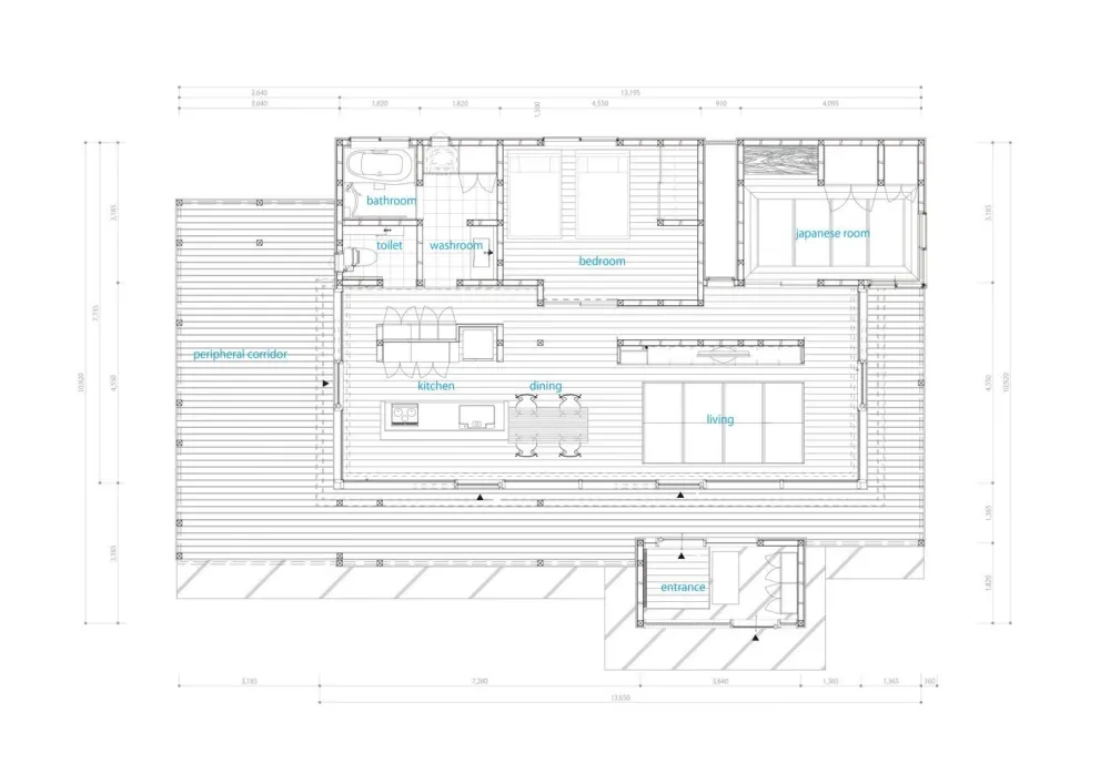
这个70年代单层的房子原来有7个房间,每一个宽15㎡,广泛的厨房,两间浴室。虽然住宅主人考虑到继承后的管理,房子的收缩似乎是最好的主意,但我们决定保留2011年东北地震中幸存下来的坚固瓦片屋顶,并充分利用它。
它的主人一直很有尊严地接管着这个地区的传统活动,比如在索玛诺茂伊野马追逐节(Soma Nomaoi wild horse chase festival)上扮演的队长,总是有游客来来往往。坐在阳台上,和游客聊天——这是他们的日常生活。露台是接待客人的理想场所;游客没有压力,也不需要脱鞋,只要他们愿意,随时都可以来来回回。
南相马几乎没有雪,因此,在露台边喝茶、抽烟的闲聊成了家常便饭。我们想要保留这一常见但珍贵的景观,以及瓦屋顶,并为那些回来的人创造城市的中心,在那里人们可以相互了解和支持。为了建造这样的房子,我们决定在保持屋顶结构不变的同时最小化居住空间,并将剩余的大部分区域改造成露台。
在Soma Nomaoi野马追逐节期间,大约有20人轮流聚集在这座房子周围。我们建造了主要的入口用来脱鞋和存放鞋子,但是建筑结构允许游客从露台的任何一侧进入,这样他们就不需要通过入口。我们可以想象这个地区的人们在节日结束后聚集在露台周围,像在家里一样,互相感谢,享受他们的时光。我们真诚地希望这样的景象将永远持续下去。

地址:日本
年份:2018
摄影师:Nao Takahashi

