Naturehumaine事务所在蒙特利尔住宅改造项目设计中使灰绿色楼梯打造中心平台
 
 
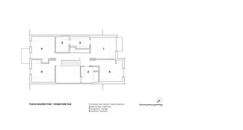
Naturehumaine事务所将一座单户住房进行了扩大和翻新。这所房子位于蒙特利尔Rosemont-La-Petite-Patrie,使用了三个结构建筑元素,即位于建筑背面的悬挑体量、正面新阳台和建筑中心的新楼梯,该楼梯阐明和组织了住宅的功能。这三个元素通过灰绿色得以区分,根据光线强度和光照变化,在对比度和色调上产生很大的差异。
 
 
all images by adrien williams
Naturehumaine事务所受邀完成这座维多利亚住宅的扩建和翻新,这是为了欢迎幸福和意外到来的第三个孩子,他的名字叫维多利亚。来自蒙特利尔的建筑师根据悬臂箱、阳台和楼梯这三个结构元素对房子进行改造,使用了独特的灰绿色,使其与建筑的其他部分区别开来。悬臂箱增添了维多利亚的卧室,而正面则有新阳台。最后,在房子的中心,单色楼梯吸引了人们的注意力,成为俏皮的几何元素。
 
 
楼梯为轻质结构,由钢叶片和彩绘橱柜板组成。它应用了地面的颜色,限定了内部的游乐区域,而上面装有玻璃窗的屋面为建筑的中心以及周围的服务区域,尤其是浴室带来了自然光线。材料颜色淡雅纯粹,与灰绿色部分形成对比,唯一的例外是在儿童浴室的明黄色调。这种色调强化了这个空间的俏皮特征,也是为孩子们打造的游戏、学习和康乐空间。
 
 
在材料方面,外立面的纤维面板能够自然保存并延伸到餐厅,而阳台的镀锌钢和混凝土基础则表现出原始的美学。在内部,内墙使用传统的木结构一块一块地在两层楼的空间中直接裸露,漆成了白色。最后,客厅的结构横梁露在外面,与木地板一样有着同样的色调。
 
 
 
 
 
 
 
 
 
 
 
 
 
 
 
 
 
 
 
 
 
 
 
 
 
 
项目信息: 项目名称:维多利亚住宅 建筑设计:Naturehumaine 事务所 类型:单户住宅 介入:完整装修 位置:加拿大 蒙特利尔 总承包商:Construction N deslauriers


