Tuira Acai需要一个舒适的空间和品牌标识,主要目的是用绿色和紫色以一种自然的方式,混合轻木材,绳子和植物。
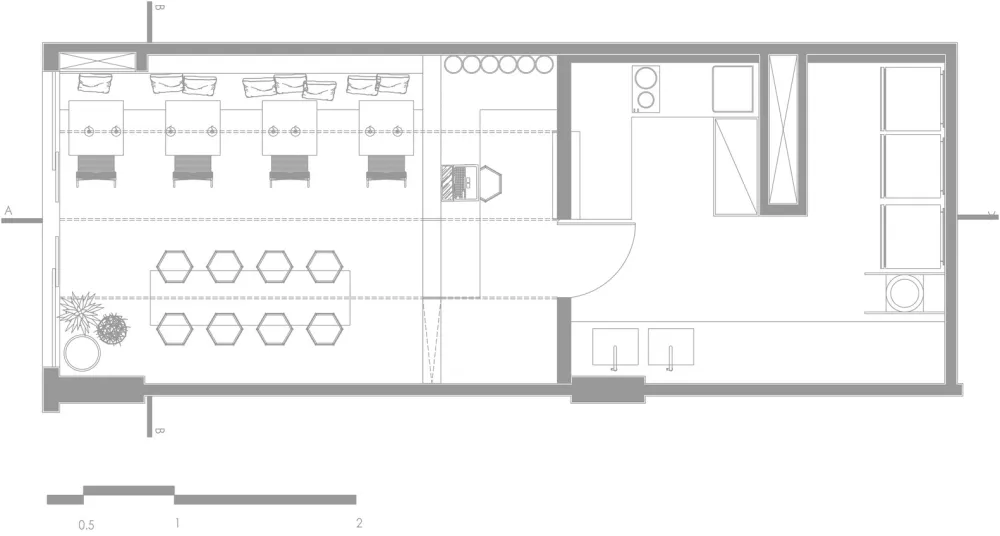
木条的设计是从品牌手册中挑选出来的,并引导装饰项目进入一个更轻、更年轻的感觉。长方形的空间被分成三个不同的部分:厨房、柜台、大厅。

在厨房,我们移除了浴室,将生产空间的尺寸调整到合适的尺寸,这样我们可以专注于沙龙,以适应更多的客户。

在客厅里,柜台放在厨房和客厅之间。这个空间有收银台,补充了区域,并将最终产品交付给客户。为了实现直观的变化,我们设计了一个中央通道,将客户引向订单区,左边是一条线性的长椅,上面有桌子,上面有凳子。
藤绳强调了前景和每个区域的对齐沙龙。它们帮助构造花园花盆,悬挑高的桌子,并将吊灯放在桌子上方。

地址:巴西
年份:2018
名称:Tuíra Açaí
摄影师:Haruo Mikami

