-
新作首发 | HAD上海湾流建筑设计,湾流国际MARINA高端公寓上海外滩院子
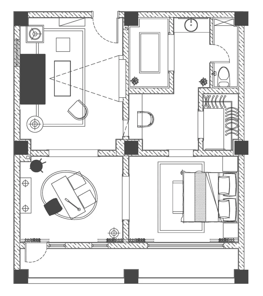
MARINA外滩院子-逆回时光之旅,品味摩登之城 湾流国际将项目地址选定于上海黄浦区四川中路63号一栋旧楼,要将此处打造成湾流国际旗下MARINA系列高端公寓项目,项目地理环境十分优越穿过马路就是风靡世界的外滩万国建筑群,坐拥外滩金融繁盛景象与陆家嘴的璀璨之景,生活在浓厚历史底蕴十里洋场的海派发祥地,见证下一个上海盛世,同时也即将成为未来世界的生活主场。 HAD设计院在项目修旧与翻新设计中进行取舍…- 798
- 0
-
首发 | HAD上海湾流建筑设计,在外滩的精致浮华里体会“赤贫风”的侘寂生活 首
上海外滩,洋气又怀旧,摩登又复古,在这片寸土寸金的土地上,四川中路63号的一栋老旧建筑迎来了属于它的新生。湾流国际携手HAD设计院耗时半年完成外滩院子的翻新,将此处打造为湾流国际旗下MARINA系列的高端公寓“外滩院子”。 HAD设计师在对旧物业进行改造的过程中,发现了两间昏暗无窗的房间,如获至宝,希望能在这样精致浮华的城市里,打造出两间“臻舍”给入住者带来不一样的侘寂生活。朴素空间的历史感、情感…- 905
- 0
幸运之星正在降临...
点击领取今天的签到奖励!
恭喜!您今天获得了{{mission.data.mission.credit}}积分
我的优惠劵
-
¥优惠劵使用时效:无法使用使用时效:
之前
使用时效:永久有效优惠劵ID:×
没有优惠劵可用!



