住宅的价值基于室内外空间的对话,偏爱能够“扩展”大地形的广阔区域。
保留大片的免费土地和植被是提案定义的基础之一。
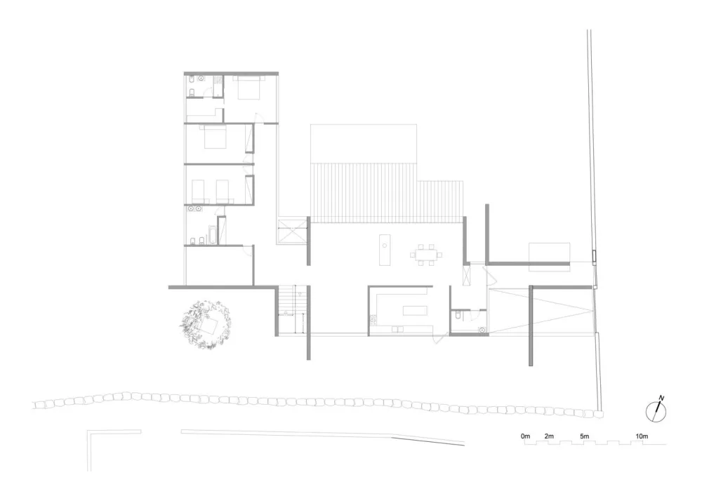
我们选择使用正交平面的简单语言。它有一个通往地下室的斜坡,这个斜坡与街道相连。这一层设有车库、游戏室、洗衣房和通往上层的楼梯。




























































位置:葡萄牙 年份:2012 摄影师:Bruno Barbosa
版权声明:本文内容由用户自行发布上传或投稿由设计芝士代为发布,版权归原作者所有,设计芝士不拥有其著作权,亦不承担相应法律责任。如果您发现本站中有涉嫌抄袭或侵权的内容,请点此提交工单进行举报,一经查实,本站将立刻删除涉嫌侵权内容。

