SuperLimao的另一个项目客户Benzina Bar集团是巴西快速休闲系统的先驱之一。位于圣保罗的Benzina酒吧项目的想法是创造一个年轻、有趣的同时,一个授权的环境,让客户有自由的意志来酒吧和去。

这所房子原来是一家老酒吧,区域划分得很好,已经经历了一系列改革,最后他失去了自己的身份。同时,建筑立面具有较强的线条和表达角度,被作为新设计的建筑目标。此外,在框架上做了几个开口,以便室内外一体化。
由于环境被划分得很好,第一个想法是利用旧天花板上现有的右脚,创造所有空间的视觉统一。然后拆除衬垫,暴露屋顶结构剪子,进行声学处理。
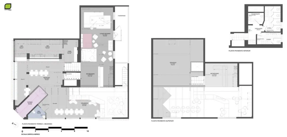
定义了三个交互级别。一楼设有一个大酒吧和一系列不同高度的桌子。大型看台将一楼与一楼统一起来,人们可以在这里活动或站立。第二层是休息室、游泳池和第二个酒吧。这个酒吧有一个有趣的表面创建了丰富多彩的液体,移动的触摸,使连接苯吸入的幻觉效果。在这一层有一个楼梯到下一层和第三层,在那里有一个小的支撑杆,弹球机和一个桌上足球。这个区域的想法是创造一个游戏区域,使人们之间的互动。所有的空间都可以用作一个大操场。
回到一楼,在主酒吧旁边创建了一个大的开放窗口,利用了一楼和街道之间的水平差。创建了一个单独的平台,作为内部区域的工作台,同时,作为外部区域的高桌子。
所有的涂层都被剥皮,暴露出来,所有被创造出来的东西都试图带来巨大的差异,暴露出新旧的东西。
在立面上使用了不同的颜色和线性照明,赞美屋顶水的角度。在内部,在舞台上,一个休息室被创建在一个书架旁边,书架上有几件参考了80年代的物品,还有一个由SuperLimao工作室创作的大型Biro-Biro铂金灯,展示了右脚的大小。
创新:服务方式、支付系统(自助服务)、运用技术实现动态采购。舒适度:使用空间的几种方式,从扶手椅,高脚凳,长椅,游戏,露天看台,供人随意使用。空间创造了不同的使用机会。材料的选择:前者是裸露的,新的是突出金属元素和塑料元素。
灯光:它有一些方面,两个可调暗的昏暗灯光创造了不同的场景,在屋顶的所有剪刀都安装了可寻址的彩色led,这可以使房子成为一个伟大的民谣。 整合:内外整合。








位置:巴西圣保罗 年份:2017 摄影师:Maíra Acayaba
版权声明:本文内容由用户自行发布上传或投稿由设计芝士代为发布,版权归原作者所有,设计芝士不拥有其著作权,亦不承担相应法律责任。如果您发现本站中有涉嫌抄袭或侵权的内容,请点此提交工单进行举报,一经查实,本站将立刻删除涉嫌侵权内容。

