Marta住宅是工作室采用类似策略所做的一系列作品的一部分;新生儿工件位于现有,试图联系他们的独特性质布宜诺斯艾利斯屋顶,以及引入一系列的与自然环境的关系,自然是一座坐落于城市,这重估时,提出的方法方法之间的原油需要城市和生成的可能性风景善良的人类,所有的物种共存或在这些领域与他共存。
 
 
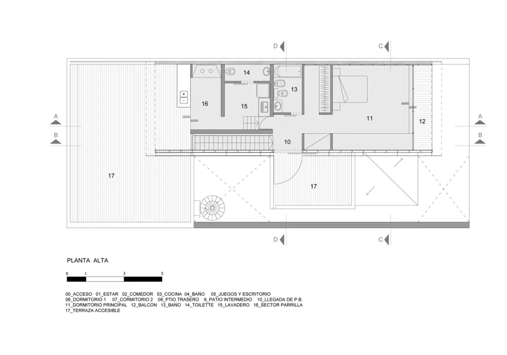
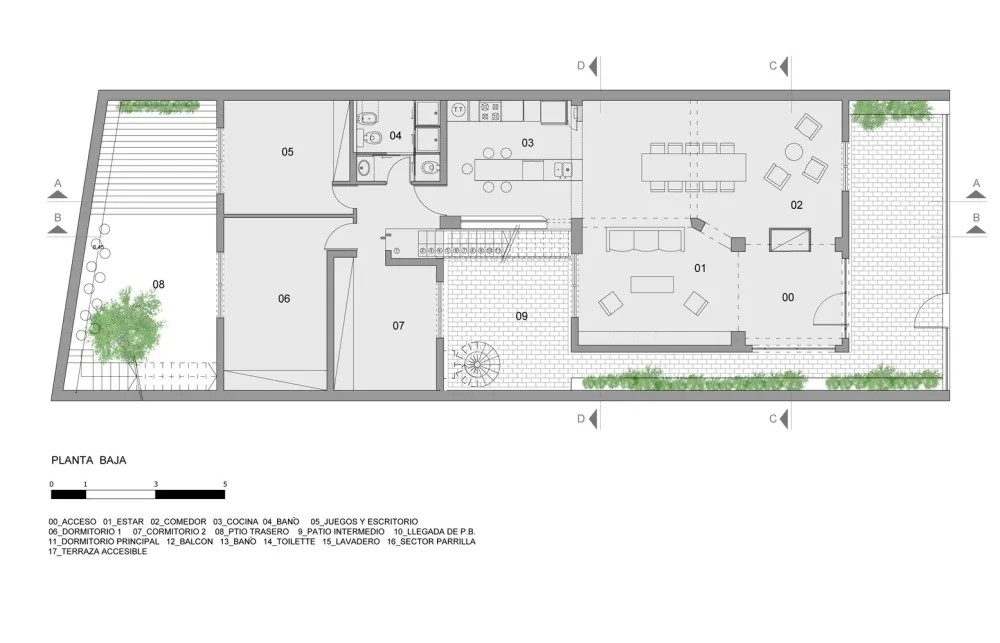
这是一座20世纪上半叶的单户住宅,是布宜诺斯艾利斯中心城区的典型建筑。它是为一个六口之家设计的,婚姻中有4个孩子,年龄从9岁到14岁不等。该项目包括,除了空间的改善和现有一楼的新组织,楼上的主卧室的合并,存储空间和服务,以及调整烧烤区,以使用屋顶作为家庭活动的扩展。
 
 
扩展模块添加到楼上,是一块包含访问梯子和包装的金属皮肤每一个元素组成,统一的新的和现有的,和,当向街上徘徊,它涵盖了悬臂众议院访问和赋予人格。
 
 
楼梯上的天窗是为了改善底层的气候条件而设计的(现在也增加了新的窗户和交叉通风),允许其开口疏散热空气,在夏季产生非常有用的壁炉效果,同时在循环中引入自然光线。
 
 
在住宅的中心,一个重新估值的庭院作为公共和私人区域的连接点,并为楼梯的融入构建了框架,作为一个折叠,从现有体量上产生。与天窗结合,它们产生了一种变形,从某些角度看,它就像一个棱镜,但从这里,它寄生并被引入,在原来的建筑中寻找空地。
 
 
这个新的卷,完全建立在干燥和覆盖在金属板,添加锚的编织,附着在板的紧固螺丝,为了让未来收到一个新的蔬菜皮肤和行为作为支持各种各样的物种,植物、鸟类和昆虫,将立面转换成一种花园或垂直生态系统,完成架构生成城市的性质。

 
 
我们假设这些工件的乘法与自然,盘旋在了织物,能想到的密度的增加不是相反的想法实现更人性化和舒适的城市成千上万的生物和微生物,我们居住在里面。


































 
 
位置:阿根廷 年份:2017 摄影师:Fernando Schapochnik, Courtesy of Estudio Borrachia
版权声明:本文内容由用户自行发布上传或投稿由设计芝士代为发布,版权归原作者所有,设计芝士不拥有其著作权,亦不承担相应法律责任。如果您发现本站中有涉嫌抄袭或侵权的内容,请点此提交工单进行举报,一经查实,本站将立刻删除涉嫌侵权内容。
    

