这个空间不只是一家酒店或餐厅,也不是酒吧或画廊。这是所有上述,一个定制的酒店综合体舒适地融入基辅历史文化中心的历史文化中心的几个世纪的建筑组合。
我们与BURSA创始人的第一次会面是瞬间的“点击”,随后是几个月的平移、设计和构建。我们共同的愿景——用自己的理念创造一个概念空间——已经成为一个独特的地方,具有独特的设计和多种功能。
两栋拥有一百二百年历史的建筑被彻底翻新,并与一个新建成的现代街区整合成一个单一的综合体,从而在建筑风格之间建立了视觉上的联系,并为建筑内部定下了基调。这个想法是将两个古老的建筑与一个现代街区联系起来,在这里,历史和传统的欣赏将与现代艺术、设计和创新共存。
布尔萨最古老的建筑成为具有历史意义的建筑纪念碑的原因不止一个。在它值得尊敬的200岁高龄,它确实见证了很多。在过去的许多年里,这里是乌克兰最古老的学院之一。它也是著名的基辅城市建筑师安德烈·梅伦斯基在18世纪初生活和工作的地方。
BURSA建筑的历史意义需要仔细考虑任何与该建筑的修复、修复或未来使用相关的工作。建筑师采用的概念方法是“适应性再利用”,允许建筑保持其历史完整性和美学,同时满足现代居住者的需求。
基于历史参考,决定哪些建筑元素必须保留,从而尽可能地保留原始结构。新增加的建筑虽然与旧建筑有所区别,但仍保持原有结构的建筑特色和规模。基于历史参考,决定哪些建筑元素必须保留,从而尽可能地保留原始结构。新增加的建筑虽然与旧建筑有所区别,但仍保持原有结构的建筑特色和规模。
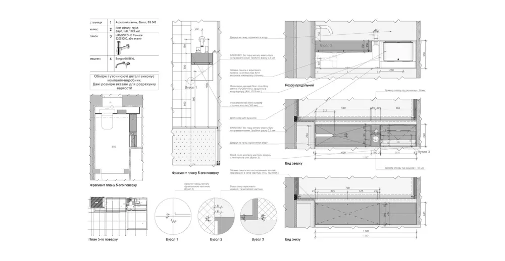
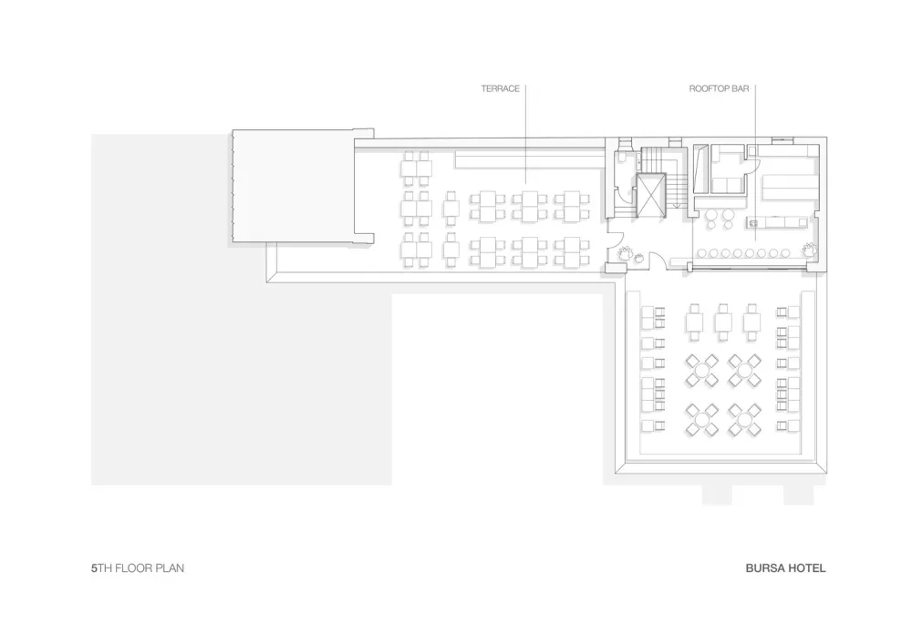
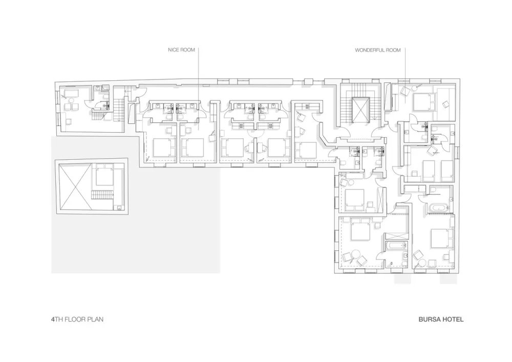
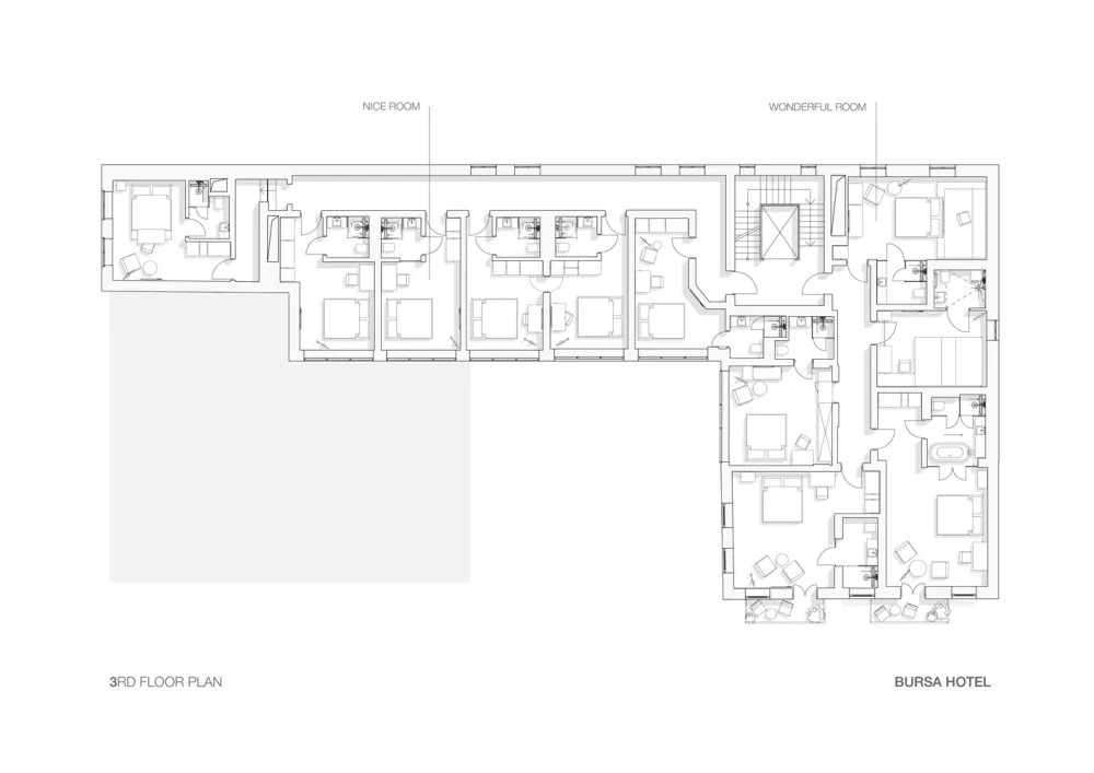
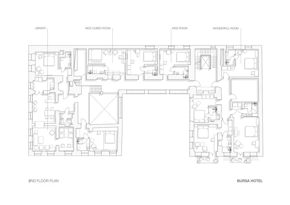
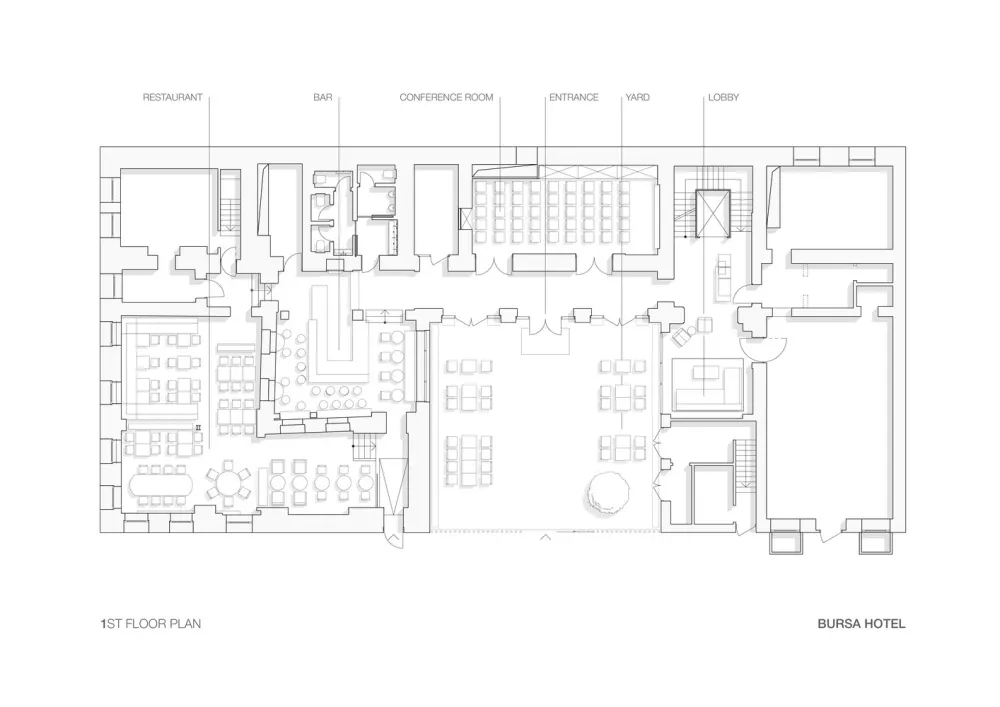
全功能的BURSA包括一个非商业画廊,一个4层的酒店提供33个不同大小的现代化房间,一个底层餐厅Belyi Shum(可以翻译为白噪音),和一个顶级酒吧1818开放到屋顶露台。 贯穿整个空间的共同主线是包豪斯风格的独特影响。包豪斯风格最著名的特点是通过简化的几何形式和最少的装饰来提升建筑和设计的功能性。
布尔萨酒店的每一个房间和公共区域都是我们对包豪斯风格的诠释。干净的线条,简单的形式,单色调色板与刚刚足够的颜色,使口音,以保持其独特。即使是最小的房间,由于精心的规划,光线和颜色的使用,以及完全排除不必要的元素,感觉宽敞。
我们相信,任何设计元素要想看起来真实和原创,就必须做到这一点。通过这种方法,我们花了很多时间寻找合适的材料、家具和形状。例如,在Belyi Shum Cafe,我们找到了与建筑同年制作的砖块,用来支撑吧台。我们希望frieze被视为墙体的一部分,而不是后来被迫添加到室内的一部分。另一个例子是餐厅里的椅子,它们都是刻意“老派”的,都是在巴黎和挪威的古董店和跳蚤市场里发现的,然后经过修复。它们增添了特色,强调了这个地方的真实性和原创性。
1818年是最初的建筑建立的那一年,因此酒吧的名字——1818——建在屋顶上。根据BURSA complex的整体建筑风格,我们保持了1818年的设计功能性和整洁性。我们不希望任何东西减损或与围绕屋顶平台的各种建筑形式的多彩背景相竞争。
“自然”和“原创”,以及“功能性”和“简约”是描述粘液囊风格的另一种方式。我们创造了一个地方,“混凝土材料是由混凝土,和木制的东西-木材,这是它应该的方式”。
从结合了200年历史的建筑和现代金属结构的立面,到玻璃幕墙后面的收银台,再到摆放着简洁而精确的物品的房间,酒店综合体吸引了那些欣赏现代设计的舒适简约的人们。我们希望我们创造了一个地方,一个人作为客人和感觉像在家里。































位置:乌克兰 年份:2018 摄影师:Yevhenii Avramenko
版权声明:本文内容由用户自行发布上传或投稿由设计芝士代为发布,版权归原作者所有,设计芝士不拥有其著作权,亦不承担相应法律责任。如果您发现本站中有涉嫌抄袭或侵权的内容,请点此提交工单进行举报,一经查实,本站将立刻删除涉嫌侵权内容。

