荃湾体育馆定位为国际体坛盛事的新家园和本地居民的休闲娱乐场所。五层高的建筑休闲及体育设施完备:主场馆可容纳超过1,900名观众,而副场馆则可额外容纳约200人,加上药检室等附属设施,该馆可用于举办国际大型体育赛事。此外,建筑亦设多用途室、乒乓球室、健身室、舞蹈室、室外攀石墙及室内儿童游戏室,最后两者更为区内首设的设施。
项目地块连接荃湾市中心、海滨大道及荃湾公园,面对蓝巴勒海峡及青马大桥的优美景色。项目注定成为社区连接体,而室内布局也环绕这个目的,令人流能够在馆内自由移动。

建筑外立面给人纯净平和的印象,以简单几何为主轴,而室内空间则充满不同形态、空间及色彩,呈现百花齐放的美感。流动空间尽量开放视线,而建筑内亦设有多个小型由内而外的空间,作为由室外转入室内活动空间的自然放松转换区。

二楼的主场馆透过半开放式平台及户外阶梯连接海滨大道;这个空间另一用途为户外座位和非正式表演空间。这为所有使用者塑造了一个公共王国:不同年龄界别的人都能够安坐在不同高度欣赏蓝巴勒海峡及青马大桥上的日落。地面的另一个入口连接副场馆和公园,因此所有室内主要设施对行人而言都方便可达。
作为共聚放松的空间,设计希望将室外带到室内,达至CITY HARMONY的概念;室内主题为HARMONY OF COLOURS,为使用者塑造一个温暖、休闲的家庭乐空间。选材也为重点之一,以确保其符合国际标准。
室内设计主要从颜色方面带出中心思想,利用和谐舒适的浅色作主调,再选取不同强调色彩来点缀及凸显出每一层的特色主题。功能上,这种格局有助使用者辨识他们身处于建筑内的位置。以地面楼层为例,该层采用了极具户外色彩的绿色作为强调色彩,将外面的绿化环境带入室内。逐层向上,越高层使用越富动感活力的强调色彩。室内设计与环境的融合,带出CITY MARMONY的概念
作为公共建筑,体育馆不仅是满足本地居民的雕塑式建筑物,更为社区增添价值。建筑美观之余又实用,能够满足使用者的视觉及使用体验,是一个真正能够揉拿所有使用者的公共王国。
























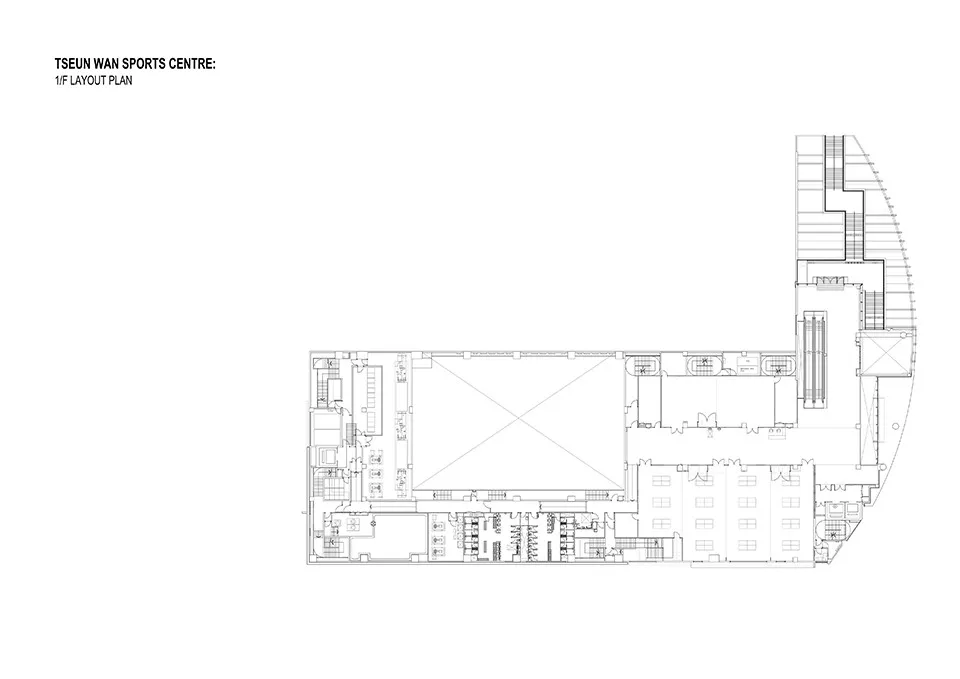
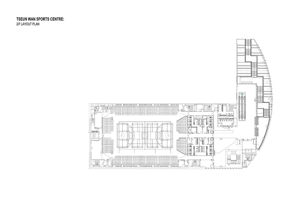
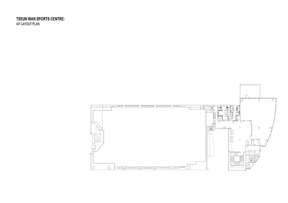
▼场地平面图
▼东北立面图
▼西北立面图


▼轴测图

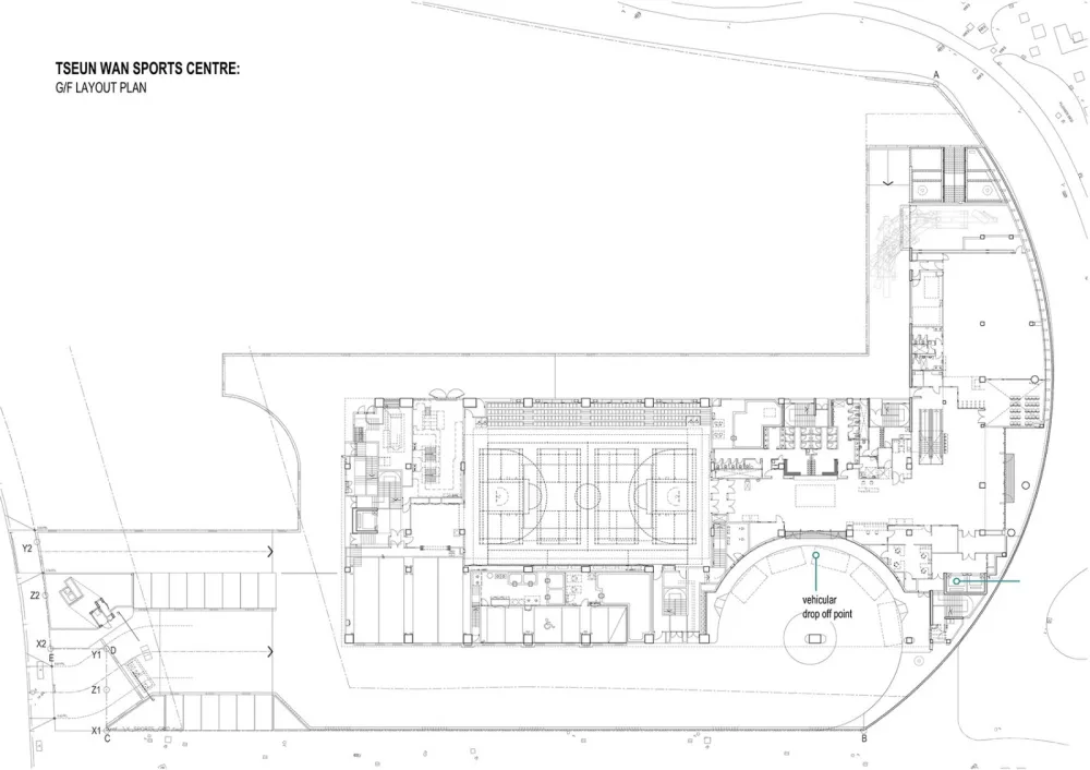
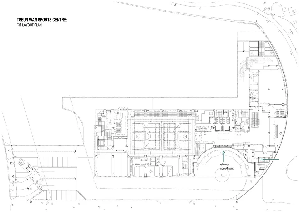
▼首层平面图






项目名称:荃湾体育馆 设计:LWK + PARTNERS 公司网站:www.lwkp.com 联系邮箱:sidneytsui@lwkp.com 项目设计 & 完成年份:2018 主创及设计团队:LWK + PARTNERS 项目地址:香港荃湾 建筑面积:11,882.274平方米 摄影版权:Kerun Ip, Kevin Mak, Kitmin Lee
版权声明:本文内容由用户自行发布上传或投稿由设计芝士代为发布,版权归原作者所有,设计芝士不拥有其著作权,亦不承担相应法律责任。如果您发现本站中有涉嫌抄袭或侵权的内容,请点此提交工单进行举报,一经查实,本站将立刻删除涉嫌侵权内容。

