游观匠梦:项目位于北京市,北京坊B2层,面积240㎡。委托方茶素材的诉求是,为中国新匠人打造一个特别的市集空间:让匠人们在这里分享产品,分享不同的生活方式;在他们看来,粉,是一种“自由”的颜色,没有标签,无关年龄,不分性别。
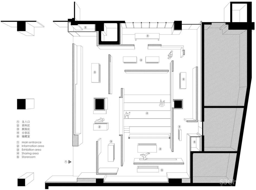
基于这样的考虑,在空间布局上,建筑师将粉色市集分为两块区域。回廊式的展陈区,嵌套中心的分享区。
展陈区,共有8个,里面包含10个展台。分别展陈新匠人产品及匠人资料,每个展陈区相对独立又相互串联,围绕在分享区四周。在空间里闲逛,一个转角,一次探头,都会收获惊喜。
分享区,将作为公共客厅,向新匠人和赶集的人们开放,供大家在此交流分享。分享区与展陈区并无完全分割,而是通过墙体的半遮掩,营造相对的私密性。空间之间呈现开放、流动的状态。
市集设计的灵感,源自对中国园林空间的思考。建筑师追寻园林之意象,通过墙体的变化,营造身体的多元体验。有遮挡,有穿透;有收,有放;可坐,可凭,可眺。
空间高低错落、虚实相间,创造丰富的行走路径与视线关系,让进入其中的人们,可行,可望,可游,可居。空间的流动性,提高商业位置的均好性,同时也让人们在这里不期而遇,自由分享。



























项目名称:茶素材·新匠人粉色市集 设计:兼建筑 联系邮箱: atelier-jian@outlook.com 项目设计:2018 项目完成:2019 主创设计师:陈培新 项目团队:陈培新,常哲 项目地址:中国,北京,北京坊 建筑面积:240㎡ 摄影:茶素材,陈培新 客户:茶素材 材料:1,硅藻泥涂料 2,塑胶地板
版权声明:本文内容由用户自行发布上传或投稿由设计芝士代为发布,版权归原作者所有,设计芝士不拥有其著作权,亦不承担相应法律责任。如果您发现本站中有涉嫌抄袭或侵权的内容,请点此提交工单进行举报,一经查实,本站将立刻删除涉嫌侵权内容。

