Sappun Flagship Store旗舰店开业于新萨东嘉路,众多知名企业的品牌在此一字排开。
从商业的角度来看,在Garosu-gil开设旗舰店具有重要的意义和价值。因此,我们的客户有很大的负担,也有很高的期望。然而,现有的Sappun Hongdae 1号店以“总是有人在排队”而闻名,线下增长迅速,因此客户希望Garosu-gil旗舰店的开业能使其成为一个更受认可的品牌。
在一次会议上,客户说:“我想要一个空间,展示‘Sappun’品牌正在进一步发展壮大。”在过去的2年里,Sappun已经成为了一个著名的品牌,但是我们的设计师不得不想出如何在空间中注入一个更加成熟和深刻的品牌印象的想法。
在当代,女鞋有一种表达的功能,一种表达自己的功能,而不是简单的工具功能。因此,鞋的设计正在迅速发展,脱离了基本的形式化。设计师想从鞋子的造型方面来反映这种趋势。

除了Sappun现有的空间语言“曲线的韵律”,我们希望在设计中融入“不对称平衡”和“多维度”的空间语言。
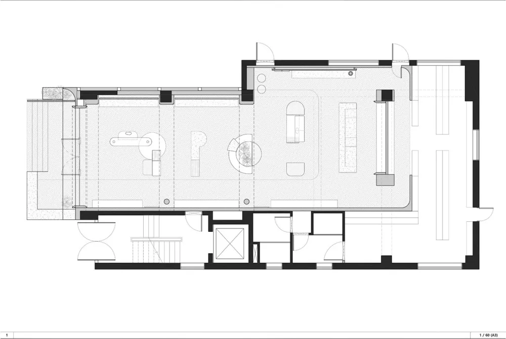
Sappun的新建筑的外部将有曲线,从入口立面开始。入口右侧的曲面将继续延伸到位于柜台背面的储藏室,空间将会看起来更深,可以扩展。左边墙上将开始从背面的分区,并将继续从天花板上,所以它看起来像继续从外面和列之间的两个分区继续从天花板上和头上向右边。这个设计将三个元素的曲面重叠在天花板上,在天花板上提供各种各样的视觉效果,简单而枯燥,与空间和谐的节奏。此外,这种曲线会以同样的形式延续到柜台上,具有与生俱来的共性,其他的陈设和细节也会有共同的特点,有节奏地表达萨普恩可控的感性。
第二空间语言“不对称平衡” 从入口开始,以中心为中心,重心向右移动,通向内部的入口通道被打开。这个设计的目的是让入口左侧的空间变得更轻,让进入的客流能够轻松自然地诱导到空间中,让空间看起来更深入。此外,左右两侧的墙壁以及架子陈设,将有不同的形状和装修。这种有意的不对称会产生消除无聊的效果。

空间的左右两侧会形成不对称,根据不同的区域会运用不同的家具设计。在每一个立面上,隔断和立柱会被重复放置,立面会有规律的重复,为空间提供节奏和活力,而左右两侧的矛盾会形成独特的平衡。
第三种空间语言“多维” 我们设计了多维度在空间中有两个视角。它们是由地板、墙壁和天花板形成的空间大透视,是由家具和装置的个性形成的空间小透视。其中,最引人注目的是中心设计家具。在家具的设计中,鞋子的形状和鞋跟的形状都体现在家具上,中间的4件家具分别具有不同的功能和形状。根据这种形式,家具可以作为一个展示架或椅子或花盆,为空间提供乐趣和活力。
Sappun旗舰店将是一个充满品牌想要珍惜的独特品味和芳香的空间,而不仅仅是一个简单美丽的空间。我们希望在客户购买Sappun的鞋子时,空间能给他们带来新的感性体验。


















地址:韩国 首尔 年份:2018 摄影师:Choi Yong Joon
版权声明:本文内容由用户自行发布上传或投稿由设计芝士代为发布,版权归原作者所有,设计芝士不拥有其著作权,亦不承担相应法律责任。如果您发现本站中有涉嫌抄袭或侵权的内容,请点此提交工单进行举报,一经查实,本站将立刻删除涉嫌侵权内容。

