这个位于伦敦市中心的简约公寓以凹槽木隔断为中心,普洛克托和肖用陶瓷色调装饰了它。
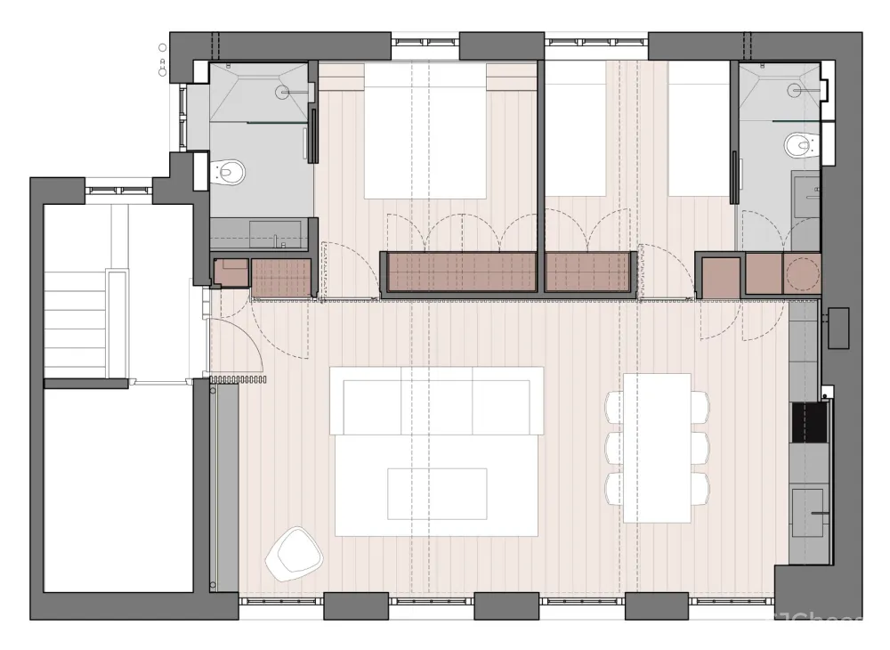
这套公寓位于马里波恩(Marylebone)一栋四层住宅楼的三层,由建筑工作室Proctor and Shaw彻底改造,只有少数固定元素和自然色调的表面。这座建于20世纪初的古建筑的顶层,在第二次世界大战期间遭受炸弹袭击后,于20世纪50年代用混凝土结构框架进行了重建。
这使得工作室可以自由地重新布置公寓内的非承重墙,在这里,客户希望有一个宽敞的起居空间和两间套房卧室。这所房子原来只有一间卧室和一间书房,书房之间隔着一条短短的走廊。全高的隔墙由淡色的花旗松木条制成,现在延伸到75平方米的公寓中心,将其分为生活区和睡眠区。
公寓的前立面有一个开放式的餐厅和休息区,由四扇可以俯瞰街道的大窗户照亮。房间的一侧主要是厨房,厨房几乎是黑色的MDF橱柜和黑色的混凝土台面。麦秸椅环绕着钢餐桌,上面悬挂着两盏暴露的灯泡吊灯。
房间的另一端是白色的l形沙发和扶手椅,沙发和扶手椅放在米色地毯上,地毯上绣着几何图形。为了与中性色调保持一致,sepia色调的肖像和玻璃花瓶也被用来装饰空间。
“在设计阶段,客户提供了一个Pinterest情绪板,其中包括人们可能期望的空间和材料的图像,更有趣的是,还有他们最喜欢的艺术品和陶瓷物品的例子,”设计师Mike Shaw说。“我们从这些作品中汲取了一个共同的主题,即自然柔和的泥土色调和纹理,与相当大胆的色调对比,这为我们创造的空间的物质性提供了灵感。”
除了家里的冰箱,两扇无框门不知不觉地融入了木隔断中。这些房间通向卧室,卧室也简单地用花旗松床头板和侧桌完成。随后,微水泥被应用于室内设施的墙壁、天花板和梳妆台单元,试图创造工作室所描述的“感觉上,像茧一样的氛围”。
类似于Proctor和Shaw, Azman建筑事务所在伦敦巴比肯的一套公寓中使用了樱桃木隔断,它可以被吸引过去形成一间客房。该住宅也拥有中性的表面,但色彩缤纷的之字形地毯的灵感来自时尚品牌米索尼(Missoni)的面料。


建筑设计: Proctor , Shaw 项目位置:伦敦,英国 承包商:Northpole Construction 细木工:Dovetail Woodcraft 建筑管理:Cook Brown 摄影师:Stale Eriksen.
版权声明:本文内容由用户自行发布上传或投稿由设计芝士代为发布,版权归原作者所有,设计芝士不拥有其著作权,亦不承担相应法律责任。如果您发现本站中有涉嫌抄袭或侵权的内容,请点此提交工单进行举报,一经查实,本站将立刻删除涉嫌侵权内容。

