N² 是一家非常小的甜品店,在设计初期,我们收到甲方提供的一份moodboard,也就此确定了店铺的主色调为粉色和白色,但在如此拥挤的空间内,在满足需求功能的同时,我们希望可以创造一个私密,柔软且丰富的就餐体验,因此我们想到了透明度。


玻璃门把手
南向立面

玻璃砖立面
店铺只有一个沿街面,朝南,但我们并没有完全敞开正立面,而是利用酸洗玻璃砖基本切断了内外的视觉联系,同时玻璃砖将直射自然光线液化成柔和模糊的面光照亮整个室内空间。



进入室内,与外立面干净的直线线条不同,室内充满了曲线设计元素,左侧沿墙是一排的弧线座椅,正对的是倒角的吧台和展柜。


我们设计了一个矩阵亚克力灯在右侧背景墙,粉色亚克力散发出来的是一种暧昧柔和的色彩。

裱花间 空间背面是厨房,天花在墙角弧线弯折下来形成了厨房和餐区之间的隔断,只有裱花间好似拨开雾气一样显露出来。
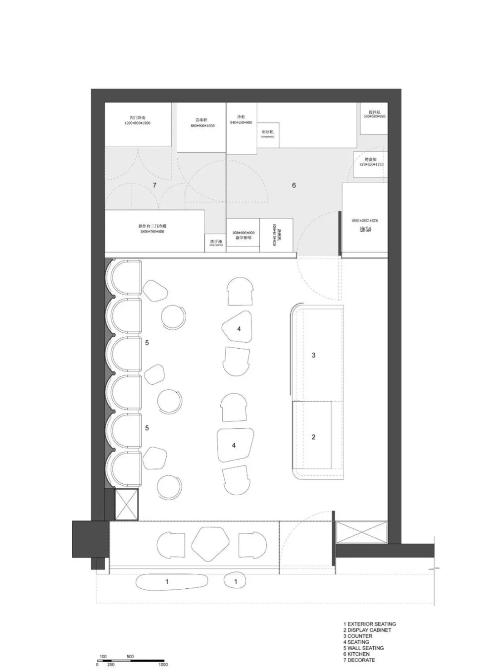
平面图
室内剖面

家具定制
N² 状况:完成 年份:2018 面积:40㎡ 地址:中国杭州 甲方:奶油荡糕 项目类型:法式甜品店 设计公司:有坪一尺建筑事务所 主持设计:张岩、单嘉男 团队:孙郭蕾、杨金娜 网站:www.ypyc.space 联系:info@ypyc-space.com 空间影像:PROJECTION映社 影像公司网站:www.project-ion.co 施工团队:杭州优办装饰有限公司 转载自:有坪一尺建筑事务所
版权声明:本文内容由用户自行发布上传或投稿由设计芝士代为发布,版权归原作者所有,设计芝士不拥有其著作权,亦不承担相应法律责任。如果您发现本站中有涉嫌抄袭或侵权的内容,请点此提交工单进行举报,一经查实,本站将立刻删除涉嫌侵权内容。


😊