将不同的家居赋予不同的色彩和寓意,是设计师对于美好生活的诠释和尊崇,而自然的色彩是更具温度的时尚美学。
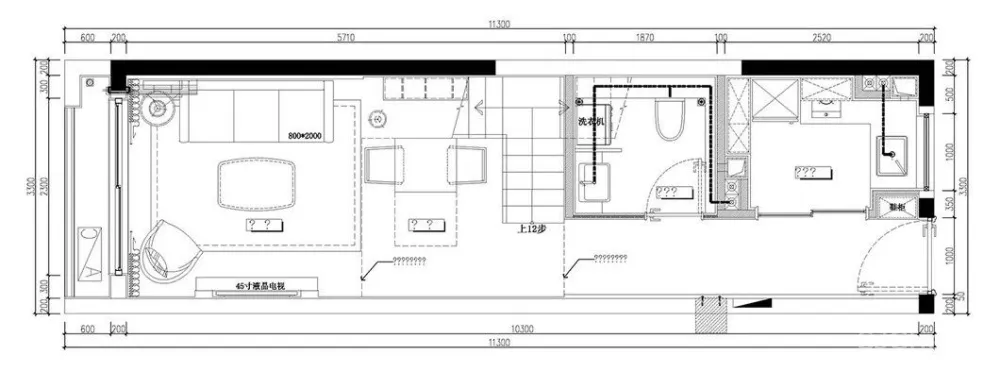
春暖花开阳光系的橙, 生机勃发热带雨林式的绿, 深邃明净如绅士的大海般的蓝, 这些最接近自然的颜色, 被设计师搬进家中, 回应着人们对于都市自在生活的向往和期盼。 橙 花与爱丽丝 35㎡A户型
太阳从最东方的海面上升起,在微澜渐起的海面洒下斑斓的碎金,太阳更高了些,当阳光照入铺满耀眼的眀橙色的室内,墙上挂画里的木棉花似乎也舞起了绽放的旋律。 亮丽的明橙,这是设计师为如《爱丽丝梦游仙境》中主人公一般的热爱生活和幻想的人们所设计的美好生活场景。
温馨的橙赭色成为这个LOFT小户型公寓样板间设计的主要搭配色。 开放的客餐厅设置,避免了因空间狭小导致的压抑感,干净明快。 设计师将对生活的理解融入其中,不追求极尽奢华,但对生活品质的探索孜孜不倦。

白色大理石墙面与黑色背景墙搭配,富有层次的对比让整个客厅于欢欣的跳跃中增添一丝沉稳。 整个空间的布置精心且雅致,简洁考究的金属色家居,适时摆放的绿植,铺陈的浅色系纹饰地毯,都让其不失为待人接物的极佳场所。

餐厅充分利用客厅、贴墙悬挂式储物架以及通往二层的旋梯之间的空白进行布置,既很好地考虑到了有限的空间运用,同时营造了一个别致温馨的用餐环境。
二层卧室,充满活力的橙色基调延续至此,定制挂画的点缀给人以无限想象和审美体验。

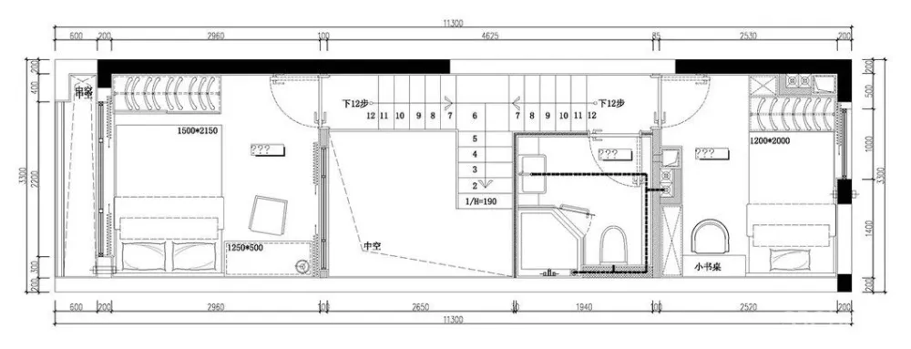
平面图

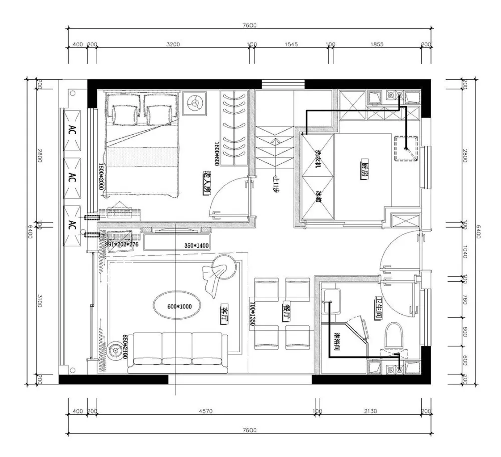
绿 热带雨林 46㎡B户型 有一种气质叫端庄雅致,有一种闲适叫自在从容,有一种生活叫不可错过。

为了满足新时代年轻人对私人和个性化居住空间的向往,设计师在打造小户型时尚家居的过程中,将对品质的追求融入空间的软装陈设中。

在整体布局上,设计则普遍运用了点线面的组合,圆形的吊灯、布艺座椅和钢制玻璃桌,抽象的挂画、沙发等,于简约的外在体现中充满了复杂多变的创作组合。
时代豪庭B户型双层公寓样板间采用半围合式布局,充当对外空间的客厅作为设计的中心贯穿整体空间。

具有金属质感的吊灯自二层顶端悬垂而下,金属框架和玻璃组成的空间隔断,以及客厅与餐厅之间的开放式连接,打破了传统LOFT格局的狭窄和蔽拢,让有限空间得到尽可能的放大和延伸。

墙面、沙发、窗帘及床饰使用了统一的米灰色调,而绿色调的巧妙使用,如斑驳的深绿地毯、置于桌台茶几的植物盆摘和餐具,以及悬挂于卧室的装饰画等,又让整体氛围多了清新自然的气息,让人感到心情明快。
设计师运用简约现代的设计手法诠释着小户型的内核所在,通过对空间的充分理解将设计思想完美呈现出来,既体现了对设计的极致探求,也满足了现代都市人对于精致生活的普及性需求。 平面图

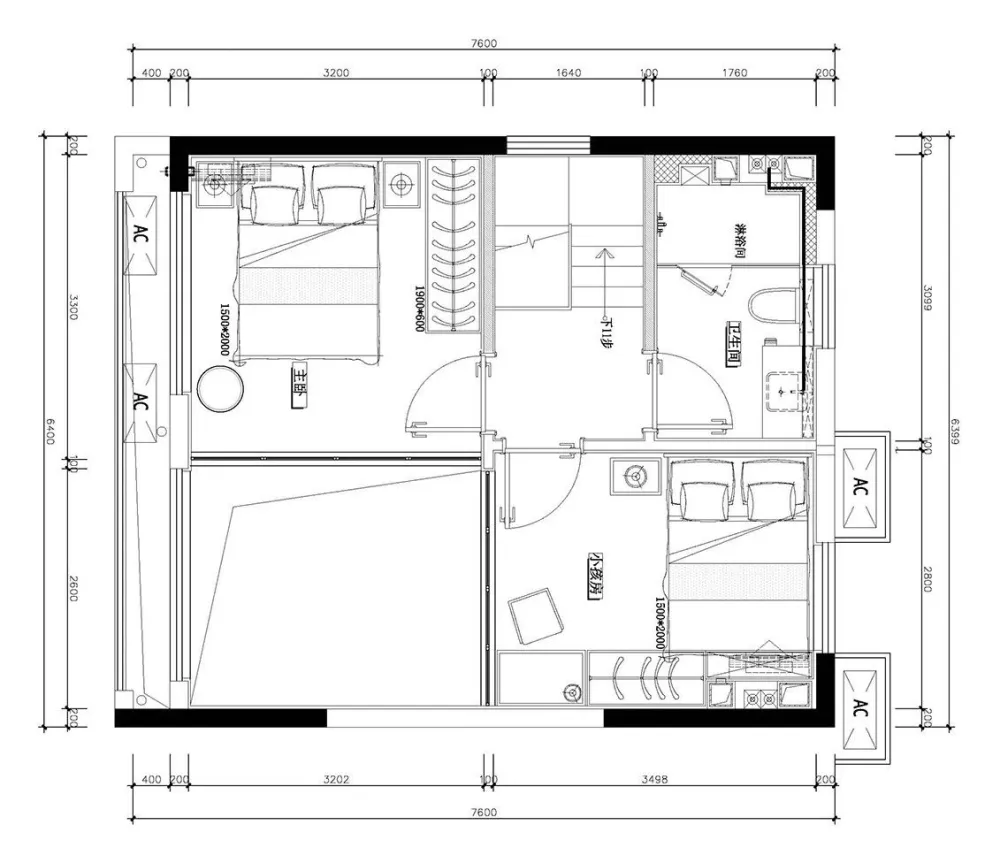
蓝 蓝调绅士 101㎡C户型
蓝色通常可以用来隐喻绅士,也因此成为这个空间的主旋律。 如同大海的蓝色既有的深邃明净,有时又通过扬起的浪花给人以热情奔放的印象。

在本案中,设计师对于细节的呈现有着极致的追逐。富有织物触感的蓝色沙发,大理石台面的圆形组合茶几,以及精心挑选的家居摆件等,都以当下最流行的黄铜做装饰点缀,整体营造出视觉上的美感。
整个空间没有过度强调色彩的华丽,而是以其简约实用的功能体验和精雕细琢的工艺设计,体现着与家人相处时的浪漫和无处不在的闲适与惬意。

卧室的设计沉稳、大气,更加注重线条的质感,在颜色的配置上,与总基调相吻合,尽显优雅和浪漫,而次卧则采用了明丽的橙色,以满足老人或孩子对温暖和亮色空间环境的需求。

艺术源于生活,将色彩的多样化表达反运用于生活,缓解都市快节奏给人带来的紧张感和压抑感,让人感到自由、身心舒展,是设计回归本初的体现。 灵活自由的设计和丰富的色彩运用,也让我们的家居生活空间尽显多变又和谐统一。 平面图
项目名称:东莞中央松湖·时代豪庭样板房 设计单位:H DESIGN 项目地址:中国 东莞
版权声明:本文内容由用户自行发布上传或投稿由设计芝士代为发布,版权归原作者所有,设计芝士不拥有其著作权,亦不承担相应法律责任。如果您发现本站中有涉嫌抄袭或侵权的内容,请点此提交工单进行举报,一经查实,本站将立刻删除涉嫌侵权内容。

