杏花径住宅位于北京以北约60公里的慕田峪长城脚下,靠近北沟村的北侧边缘,名字来自荒废的村舍四周遍布的杏树。这个院子现在已被改造为来此观光访古的游客可以租用的度假屋。前往用地要穿过一条从北向南的巷道,这在村里并不多见,大部分房子都座北朝南,背对北面的山麓。一棵杏树在巷道的尽头斜伸出来,迎接到达的访客,树后面是折返的短坡道,引向旧砖砌筑的悬挑门廊。推开院门,人便置身于有遮盖的敞廊底下,面对原有房子的石砌山墙,让人想起传统四合院入口处的影壁。
原有房子是一间简陋的小屋,以当地建筑最常见的木结构、瓦屋顶和毛石墙建造。它以转折的敞廊和南面新建的起居空间相连,中间形成露天的庭院。房子的三个开间改造为两间卧室,主卧卫生间向东延伸出去,西侧加建的门廊结构同时也容纳了设备间。卧室从侧后方老房子和平屋顶门廊之间的交接处进入,意想不到的是,抬头透过天窗还可以瞥见远处的长城。












这种侧面的连接方式使老房子的外立面得以完全保留,新装的断桥铝窗户隐藏在久经风雨的木窗格背后。窗下墙内侧、北墙外侧以及所有新建部分都安装了保温层。卧室里暴露着老旧的木结构梁柱,村里制作的琉璃瓦碎片给室内添加了亮色。
在用地轮廓线斜边的提示下,南侧体量构成平行四边形的平面,里面容纳了开放式厨房、就餐和起居区域、内外穿透的壁炉和类似于传统炕床的砖砌卧榻。空间的四周被不同高度的窗户所环绕,将光线从各个方向带入。
屋顶和老房子形成对比,以钢结构支撑,直立锁边铝板覆盖的单一平面朝两个方向倾斜,升起到东北角的最高点。从室内看,金黄色的麦秸板天花引导人的眼睛越过庭院对面的老房子,指向北面山麓和长城的极佳视野。
▼项目模型照片

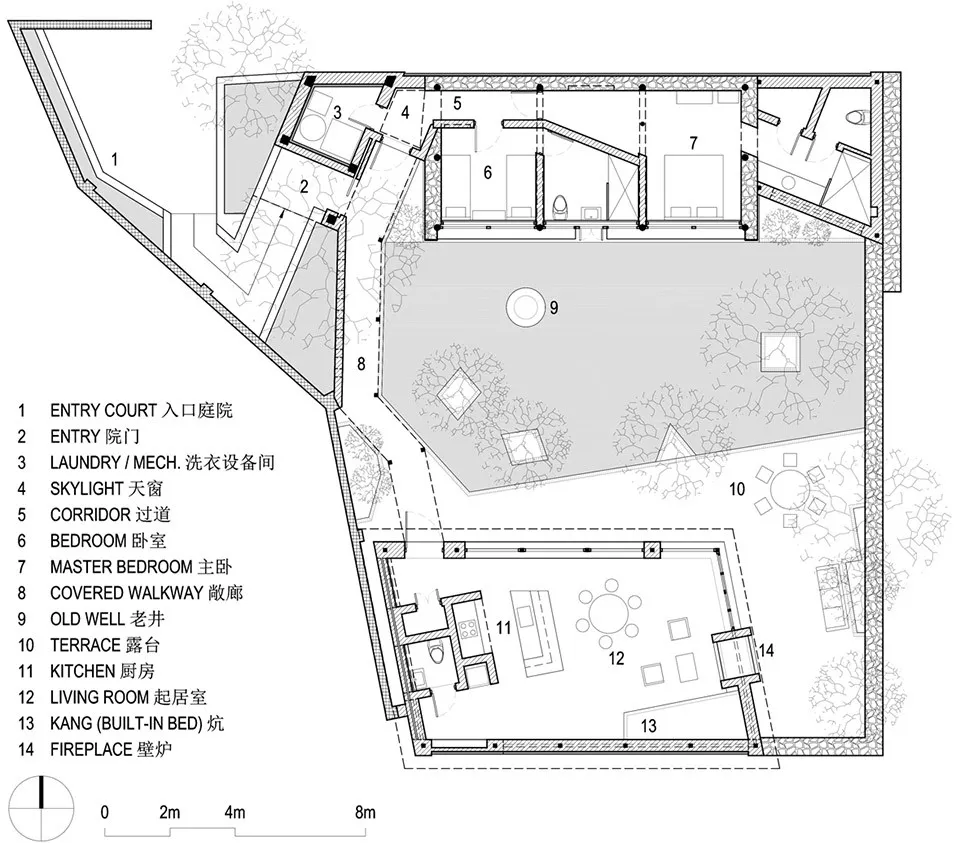
▼项目平面
▼剖面

设计公司:萨洋设计 设计师:萨洋 设计顾问:在场建筑 设计团队:钟文凯,孙晓倩,李坦然,张梦瑶 地点:中国北京市怀柔区北沟村 用地面积:404平方米 建筑面积:172平方米 建成时间:2016年
版权声明:本文内容由用户自行发布上传或投稿由设计芝士代为发布,版权归原作者所有,设计芝士不拥有其著作权,亦不承担相应法律责任。如果您发现本站中有涉嫌抄袭或侵权的内容,请点此提交工单进行举报,一经查实,本站将立刻删除涉嫌侵权内容。

