设计师为项目取名「积木」,颇有些童年的玩味,既是描述,也是定义。 惠州中洲理想仓主推青年公寓,作为销售中心,设计师在满足功能需求同时,也做了形式上的表达,希望是一个大的会客厅,取简去繁。
理想仓,顾名思义,面向精英人群,开发商以及设计师极力在呵护这个群体对未来居住空间的美好想象及希望。 满足居住者眼前的物质和精神需求,又能对未来生活目标有更多新的憧憬,使居所设计成为更高理想的动力和源泉之一。
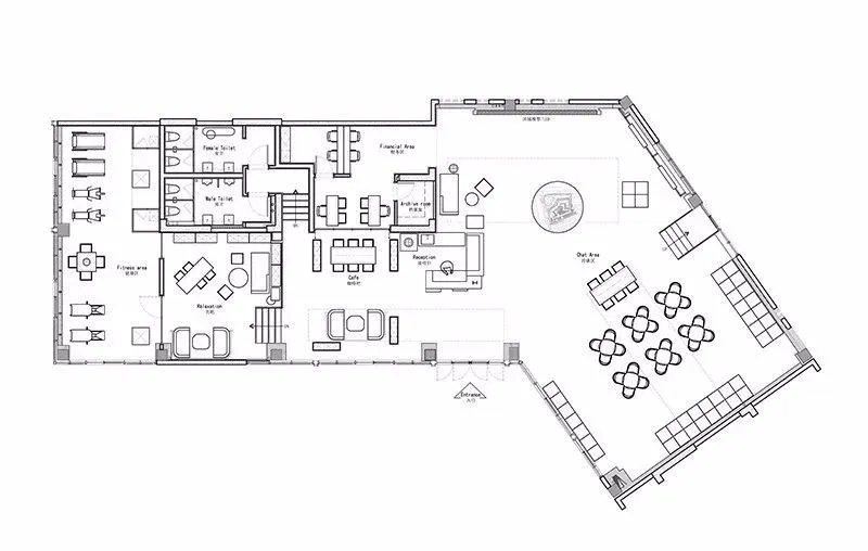
前台的构成形式、书架的细节处理和做法、洽谈区的活动木质坐椅……相继、连续而又独立存在。就像孩童的积木一样,可以尽情想象。 功能上既满足接待咨询,也能有吧台的出品表现。这样一来,更能汇聚整体空间的气息,平衡空间的变化。


工业感是这个空间重要的组成部分,而在形式是自由的,丰富多样。 如前台兼具了吧台的功能,在形式上,由各类方形几何形体组成,材料相对,质感对比明显,互相映衬。

在这套作品中,多处留白,空间中有硬朗的金属材质、柔软的皮质细节、肌理细腻的漆面、做旧处理的金属制品……都在试图指向更有精神层面的意义。

空间中的灵魂,在于其中的艺术品,可以是画,也可以是雕塑。

透过对空间的体验与理解,看客们能够从中发现、认识、接受自我的本质,加上设计的巧妙引领,更能深刻的去感受不同材料之间的对话,以及外在物质和精神世界之间的连贯性。




咖啡吧,书吧,健身房等概念的提出与实现,不单只是功能上的需求,更多是在向当下的年轻人倡导一种更为健康、有层次的生活方式。






当我们尝试将空间拆解,每个人爱好和志趣、甚至当下的某些情绪都能得到关照,于此,真正实现新时代年轻人群生活方式下的空间赋能。




设计师对洽谈区布置上特意不做固化,它可以是多样化的,随机性的。 它可以是售楼会谈的区域,可以是发布会现场,也可以是年轻人嗨皮的俱乐部,甚至可以变成一个迷你电影院。





洽谈区的活动木质坐椅,由积木意象而来。任何时候我们都能如孩童般,尽情想象、自由组合自己当下所需的个性空间。 设计师希望通过积木的概念,营造一种轻松、自由,甚至允许散漫,却也保留规整的空间氛围,从而引导年轻人去寻求一种新的生活方式。


在这里,安放得了漂泊的心,容得下正经的灵魂,也允许天马行空的存在,而深藏心底的梦想,也将得到响应与绽放。
项目名称丨惠州中洲理想仓销售中心 项目地点丨广东惠州 设计面积丨500㎡ 开发单位丨惠州宏晟置业有限公司 设计单位丨MYP设计事务所 创作总监丨马一平 设计团队丨潘建伟、蔡沛杰、林梓生 主要材料丨兰亭雅韵大理石、白色乳胶漆、拉丝不锈钢、灰绿墙砖、镀膜玻璃、编制皮革 摄 影 师丨井旭峰、吴永长
版权声明:本文内容由用户自行发布上传或投稿由设计芝士代为发布,版权归原作者所有,设计芝士不拥有其著作权,亦不承担相应法律责任。如果您发现本站中有涉嫌抄袭或侵权的内容,请点此提交工单进行举报,一经查实,本站将立刻删除涉嫌侵权内容。

