湖畔诵书音,方圆境中人



仪征园林 该售楼处附属于扬州市仪征枣林湾园博桃李春风项目中,临近江苏省园林花卉博览会公园。 售楼处南瞰枣林湾的美景,四望林水交映,烟岛相缭。其地处古典园林底蕴深厚的扬州仪征,自古为文人兴造园林别业的钟意之地。 有着与苏州园林不一样的独特气韵,《园冶》的作者计成曾结庐此处,留下了丰富的造园经验和心得。 几百年后的今天,设计师依然谦逊的秉持着这份理念和智慧,将其用现代装饰和建筑的语言讲述出来。
设计文脉 《园冶》中说:虽由人作,宛自天开。 一个设计初始落成时总是崭新的,可是年岁一长,就像草木枯萎,肌肤松弛一样,变的死气和腐朽,就像我们并不希望室内空间设计完成后,却随着开盘结束被拆除。 设计的生命力本不就来源于设计本身,而来源于设计的余地。 将余地留给自然去演绎,留给时间去雕琢,留给人们去体验,这设计自然不会失去生命,反而日趋沉稳深厚。 故设计通过对周遭人文环境的承接,意图呈现给业主一个在今天或是未来都独具精神生命力而持久不衰的作品。

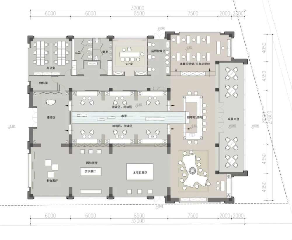
原留有的中庭位置是一整块不带顶的正方形露天区域,设计师打破传统中心景观的思路,避面了单一的环绕式行走流线,将中庭区域架高,并设计出一条连接入口与外湖的长形景观,最大程度上对自然风光进行借用。 门厅 初入此地,迎面见到一张木几,一个盆景和一面月洞墙。 门厅极尽简洁,无所附丽。但是在表面下,这里也是较难处理的一个地方。

以月洞墙为轴线展开,门厅以及建筑形成左右对称的均势局面,门厅就像整个建筑乃至整个地区的气穴中枢一样,人流在此集散,景观和地势的变化也全部聚于此地。 不难发现,通过月洞墙,向深处一层层的通望下去,最终视线落在了远处的湖光山色之中。 这也是设计的机要所在,将一处景色,像串铜钱的线一样,顺着轴线在建筑内部层层递进,形成景致万千,重叠镶嵌的样貌。 接待处 月洞墙左侧是接待台,真丝屏风作为迎客背景,灯笼造型的吊灯渲染柔和的气氛,以及由手捶敲击而成的纯铜山型太湖石的前台桌,欲分别对应东方三个层次“风、雅、颂”。 月洞墙右侧的门洞是通往展示区的开口。左与右的两个功能区域,在对称的局面中制造了波动和韵律,使得原本静止的空间流动起来。

设计采用了留空的方法,正如谒语所讲的,本来无一物何处染尘埃,没有尘埃,也就是气脉和谐,无有淤塞的意思。 这里的无不是没有的意思,而是在有和无之间达到一种平衡的关系。 通过留空的手法将自然的生命力像一幅画,一张家具一样,完美的融入了建筑本体,紧紧的点住了门厅这个中枢穴位。 书 房
顺着墙两侧的石阶拾级而上,位于售楼处中央的安定书房的格局与气场也映入眼帘。 相较于一般售楼处的洽谈区,设计师希望以一种图书馆的情景来呈现。 正如书房的名字安定书房所示,书房沉浸在安静祥和而朴素端庄的氛围之中,而身处其中的人也自然而然的放慢脚步,静静的感受这份安定。

书房的两侧井然布置着书架和座椅,而整个区域的采光来源于顶部的长方形天窗。 光线通过天顶洒下来,好似户外的天光,落在了其正下方的水池上。水池底部选用黑色大理石铺装,使得整个水池形成了极其平静的镜面效果。 古人常以水比心,如心如止水”,“智者乐水”等。水是心灵的显像,将他置于书房,其作用就像古代官学前的泮池一样,洗涤身上的尘埃,照见学者的智慧。

同时,我们也希望这块阅读区域能够在未来进行保留,并成为业主临门的一个公共图书馆。 将这种生活的态度与情境留给今后居住于此地的客户。 卡 座 书吧的坐位区由书架进行分隔,剔除多余椅凳而改做成坐榻,并半凹于柜壁内。 营造出安全感的交谈空间,不仅能在商务洽谈时给予更多的私密感,未来业主也能够随手拿起一本书,不拘谨的坐卧于榻上阅读。 卡座的材料选用朴素、优美的苔藓绿卡座背景,灰瓦垒起的地面,让人不禁联想起小院子里,树叶与阳光下,细水流过青苔的场景。让商业洽谈置身于户外之中。

茶 吧 走过书房,就到了茶吧,既是茶吧又是咖啡吧。访客可以来这里取一杯咖啡,也可以在此谈天阅读。 吧台与水池垂直排开,坐在吧台前的人身前是纵深的书房空间以及门厅,身后则是向两边延展的落地玻璃窗以及窗外一望无际的湖景。 此时,人们其实已经从访客的身份换位为了主人,心生居高临下,坐观全局之意。

课 堂 水吧右侧空间摆放着一组异形的长桌椅,这是一个互动式更多的空间。大面积的桌子和活动区域也为后期举办插花、茶艺等活动准备。


国学堂 左侧抬高的国学堂是为了孩子们准备的。这样的设置考虑到亲子同来参观时,让小孩有一个去处,与空间另一端的游戏区进行动静配合。 可以看见架高的木地板上陈设着几排书几和矮柜,窗外的竹子随风款摆。妙趣横生的装饰和细节随处可见。 将学堂引入售楼处,是一种创新,也是一种传承,也为售楼处未来的活动创造了更多的可能性。
茶吧、课堂和国学堂,这三个功能组成南面的一整个阳光充裕的大空间,并配有大面玻璃,湖景便可窥见一斑,变为全景式的入境,犹如一副山水画卷徐徐展开,令人心旷神怡。
在这里,是极具东方韵味与当代手法融合的陈设,铂金山水油画,陶制艺术品,手擂铸铜接待前台。 拥有不同材质的沙发、单椅、坐墩。在这里,没有严肃的直接对话,让原本销售的商业氛围,在艺术化的中式氛围里过滤和淡化。 ZSD软装团队在色彩的运用上,将软装浅浅的孔雀蓝与硬装的翡翠绿相呼应,以及花青色地毯,石竹红挂画的选择,来传达“桃李春风”自然、舒适、现代中式的生活态度。
流 线 设计考虑到了初次来访和二次来访的区别,为来客设计了两条线路。 前期与甲方针对路线的方案进行了多次讨论与方案。相较于常规一进门就是项目销售介绍的路径,我们将中心区设置于入口就能全观的轴线上,却放置于前一个月洞门进行虚掩。 让客户在进入的一瞬间被天光水影吸引,欲于向前,却顺着流线走向右侧,怀有一丝期待的进入项目介绍区域。 ▿ 初次到访路线:依次经过影像展厅、园林展厅、项目展区到达茶吧,经过国学堂,到达蓝熙健康区
▿ 二次到访路线:经过中间洽谈阅读区,直接到达VIP室
▿ 走廊
遗 憾 室内设计在后期实现上,难免会因一些突发情况或时间等原因,在设计实现度上不能完美,为此我们尽力配合事发的同时,或许会留有遗憾。 天光顶 ▿ 设计师原本为打造更柔和、自然感的天顶区域,通过线条形成宽度不相同的方格,使得上凹的壁面不会过于直白。
太湖石 ▿ 天然的水石本就是经河湖水波荡涤,历久侵蚀而缓慢形成,因此摆放于阅读空间中心水池上,还原出最天然的生态语言。 同时,恰当的高度也能作为双边卡座中间视线隐约的遮挡物。
瓦片 ▿ 平凡的瓦片,也是整个阅读空间重要的组成元素。 将园林户外使用的厚瓦铺贴的路面引入安定书房的室内地面,将一种自然的机理融入室内,增加了其历史感和手工感。 后由业主方觉得不方便走路,遂磨平。

项目名称:蓝城·仪征桃李春风生活体验馆 项目设计:ZSD卓时设计r Daaa 项目地点:江苏仪征
版权声明:本文内容由用户自行发布上传或投稿由设计芝士代为发布,版权归原作者所有,设计芝士不拥有其著作权,亦不承担相应法律责任。如果您发现本站中有涉嫌抄袭或侵权的内容,请点此提交工单进行举报,一经查实,本站将立刻删除涉嫌侵权内容。

