飞机师、空姐,一个高颜值的职业,生活在这个房子里的人,就是他们。我们想要构建一个合适他们的居所。他们很少社交时间,他们过着宿舍到机场两点一线的生活轨迹,而回到家经常是深夜。在飞机上,面对无边际的天空,保持着高强度的精神压力,他们需要让生活慢下来。



这是广东汕头的一个顶层住宅,建筑空间结构带给我们特殊的形式感,室内空间做为建筑空间的延伸,我们希望室内空间做为建筑空间的生长基因,利用自然的光线,简单的肌理表现,来打造一个可以慢下来的空间环境。该项目表达了人与空气、与风、与阳光的关系。而不是其空间本身。

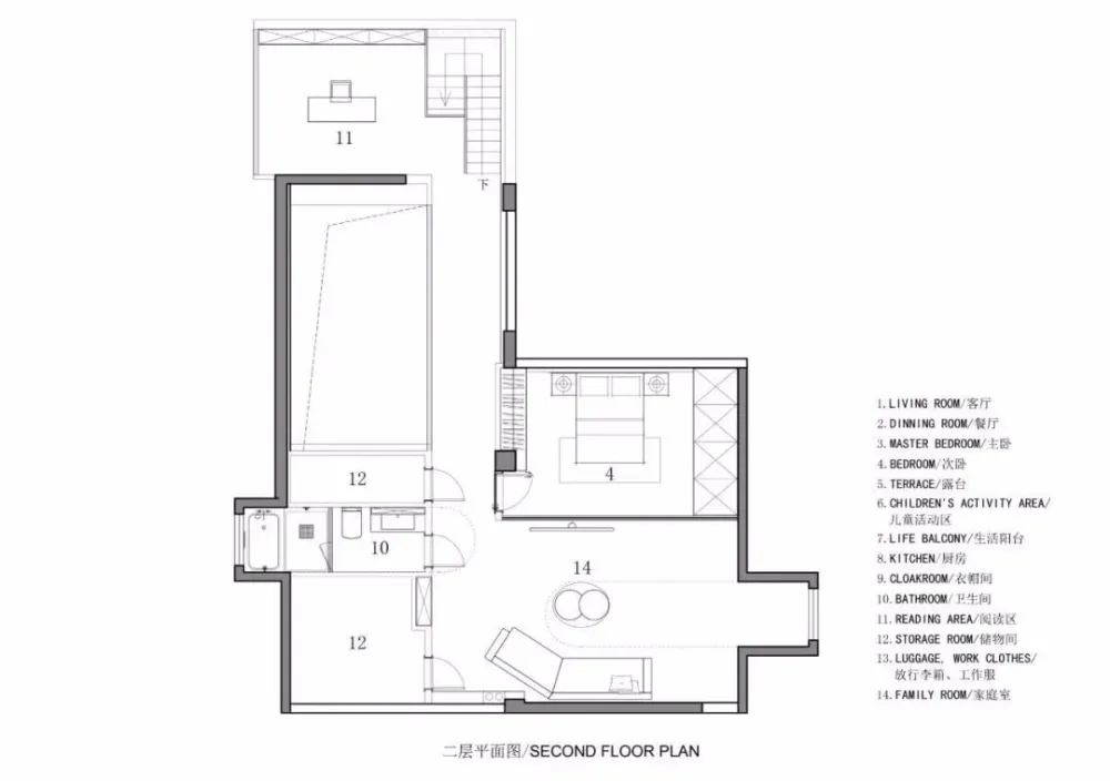
在整体的结构设计上,为了让建筑的形式感可以延伸到一楼,我们打开了二层的楼板,客厅挑高空间的同时解决了二层采光及通风的问题,一层我们定义为起居生活的行为,结合他们的职业习惯,我们为他们设置了单独的更衣室以及入口的行李箱摆放柜。

客厅与餐厅敞开互相渗透,让家人之间拥有舒适的互动及活动空间。楼梯不仅是通往顶层的媒介,更重要的是设计让楼梯成为了空间的艺术装置。舒适的沙发坐感、米色的皮质感与空间中的木色传递着生活的温度。






二层定义为是娱乐休闲的行为,同时设置了休息室,使深夜回家不影响对方休息。从设计上有力的去解决他们的生活规律问题。

我们选择最简单的材料做为极简装饰,灰色地砖、白色的墙壁,以及浅色木质材料,共同构建空间的肌理质感。让居者感受最朴实的空间表情。










项目名称:倾斜的盒子∣极简与空灵 设计机构: 艾克建筑设计 总设计师:谢培河 设计团队:艾克建筑 施工团队:艾克工程 项目地点:广东汕头 建筑面积:230㎡ 主要材料:哑光砖、白色乳胶漆、白色哑光漆、木饰面、木地板 设计时间:2018年1月 竣工时间:2018年12月 摄影师:欧阳云 鸣谢:罗兰西尼门窗、燊科瓷砖、梵品木饰面、龙之光灯饰、金牌橱柜、AXENT卫浴、锐驰家具、雅逸家具定制、意大利Oikos艺术漆、德国哥郝木地板(排名不分先后)
版权声明:本文内容由用户自行发布上传或投稿由设计芝士代为发布,版权归原作者所有,设计芝士不拥有其著作权,亦不承担相应法律责任。如果您发现本站中有涉嫌抄袭或侵权的内容,请点此提交工单进行举报,一经查实,本站将立刻删除涉嫌侵权内容。

