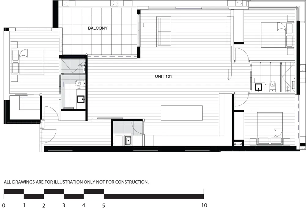
En Vue是新开发的22套豪华一、二、三居室公寓的独家选择,位于桑德灵厄姆湾畔的中心地带。En Vue赋予美丽的室内和细节的顶峰,每一个住宅令人印象深刻地展示了最新的当代优雅与豪华的配件和饰面。
En Vue结合了独特的特点和现代的外观,在海湾郊区的一个突出的建筑。所有公寓的设计都是为了确保开放式厨房、客厅和餐厅布局,同时确保私人空间不受损害。每间公寓都提供了一个柔和的、现代的空间来反思和放松。En Vue的设计考虑到了两个关键的优先事项:个性和奢华。每间公寓都有充足的自然光,但仍然提供持久的私密性和孤独感。
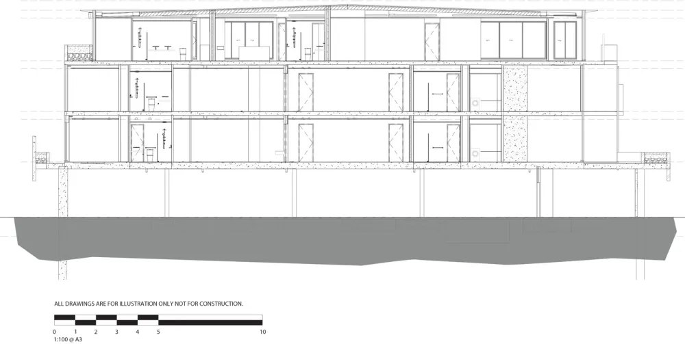
En Vue通过在街道景观中保持较低的位置,减少建筑整体视觉冲击,减少对当地环境的影响,从而尊重其邻近的属性。这也使得一层公寓拥有宽敞的户外开放区域,一层阳台和二层公寓的私人屋顶露台。由于靠近桑德灵厄姆海滩,它被仔细考虑,以尽量扩大美丽的景色,这是一个不断提醒,究竟是多么接近海湾。
该开发项目的现代立面被设计成更具凝聚力的单元,而不是单独分割和突出每个公寓作为自己的单元。这增加了En Vue的魅力,因为它的集成立面促进了与更广泛的桑德灵厄姆社区的联系更紧密的生活方式。木材覆层和白色混凝土渲染的浅色调增加了街道立面的统一,同时增加了区域的活力。
如果不能很容易地区分立面上看到的公寓,那么在结合以白色为主的混凝土和木材覆层的浅色调时,就会减少对街道的视觉冲击。
















地址:澳大利亚 年份:2018 摄影:Tom Roe
版权声明:本文内容由用户自行发布上传或投稿由设计芝士代为发布,版权归原作者所有,设计芝士不拥有其著作权,亦不承担相应法律责任。如果您发现本站中有涉嫌抄袭或侵权的内容,请点此提交工单进行举报,一经查实,本站将立刻删除涉嫌侵权内容。

