本案为华侨城LOFT公馆的私宅项目,虽然项目位于高端的住宅区,面积达到了330多平方,但是业主对设计的要求是摒弃奢华,追求简约纯粹的空间。硬装上简约和软装上的精致搭配十分契合,空间效果简约而不平凡,同时业主具有很高的追求,十分注重生活品质。 ▼ 空间一览
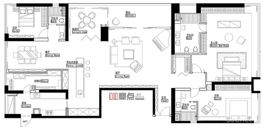
如今的城市工作生活繁忙且快速,人们对于居住的需求愈发简便舒适,LOFT风格作为代表,就是其中的优选择,如今市场上已成为一大主流。在硬装上,业主需求的是简约但是品质感高的空间。设计师将整个客、餐厅,西厨,吧台区以及休闲厅做成了一个通透的大空间,使整个空间层次既丰富又开阔。 ▼ 平面图
客厅选用了大面积的墨绿色墙漆,这种颜色风格气息浓厚,搭配古铜色的门套,让空间的氛围沉淀,在与精致的软装对比下愈显品质感。 ▼ 客厅看向餐厅方向
高速发展的科技所诞生的产品,越来越占据人们的生活,本案业主所追求的自然舒适,也是如今越来越多人的追求,所以取消电视背景墙,让客厅的另一边成为练琴区。温和阳光下的悠悠琴声,这种空间形式所带来的感觉,是“电子产品”无法比拟的。 ▼ 练琴区
▼ 客厅沙发
为了对应客厅的配色,西厨的墙面也刷了同颜色墙漆,加上白色大理石,同色系小吊灯,原木色高脚凳,精致的软装体现出每一处细节。 ▼ 西厨/吧台区
▼ 吧台区


休闲厅作为过渡客、餐厅的空间,一面墙白色,一面墙墨绿,达到“实虚实”空间节奏。定制的休闲桌椅,白色的木格栅折叠门也为空间添上精彩的一笔。 ▼ 休闲区



▼ 白色木格栅折叠门
餐厅的座椅选用了橘红色的皮椅,在整体以墨绿色做主导的空间中,这种鲜动活跃的亮色能够使空间不再枯燥无趣。 ▼ 餐厅


主卧是由原本的两房打通后,保留了边上超长的飘窗,视野十分开阔。床头背景墙颜色选用了赭石褐色,家具则仍然选用原木色,软装上,作为卧室主体的床则用了藏蓝色的配色,使空间色块冷暖平衡,尽显舒适感。 ▼ 主卧

▼ 中岛柜
女儿房不同于主卧,是年轻的女生居住的房间,床头背景墙使用了浅红色,红色与绿色本是对比色,但是在这个空间里,两种颜色的纯度都很低,所以不但没有冲突,反而因为这种对比,空间拥有了更丰富的层次。 ▼ 女儿房
卫生间墙砖选用了近乎黑色的暗绿色瓷砖,留出一面墙做了艺术马赛克,图案也选用了具有丰富绿色层次的植物图案,空间的色调虽然偏暗,但是不失生气。 ▼ 卫生间

客厅延续出去的露台面积很大,放置一张大板桌,可以作为露台的就餐区,也可以作工作台。在有墙面一面墙体上刷涂了黑板漆,可以绘画,写字,成为孩子们的大画板,也可以作为一块记事板,来开始一场家庭会议。 ▼ 休闲阳台
从自然、纯粹的基本空间表现元素中提炼出耐人咀嚼的居家规划构思,用最简化的语汇,贯穿不同的功能空间,将各项机能融合,保持各空间相对独立的同时,又确保了风格的一致性、动线的流畅性、设计的完整性。 LOFT的空间有非常大的灵活性,人们可以随心所欲地创造自己梦想中的家、梦想中的生活,丝毫不会被已有的机构或构件所制约。人们可以让空间完全开,也可以对其分割,从而使它蕴涵个性化的审美情趣。 LOFT使居者即使在繁华的都市中,也仍然能感受到身处郊野时那样不羁的自由 本案色彩以白色为主调,打破传统室内空间色彩模式,融入几种深色,使客餐厅呈现明亮开阔且自由的独特空间,色彩明暗对比强烈和谐统一。 From the natural and pure basic elements of space expression, the chewy conception of home planning is extracted. With the simplest vocabulary, it runs through different functional spaces, integrates various functions, maintains the relative independence of each space, and ensures the consistency of style, the fluency of moving lines and the integrity of design. The space of LOFT is very flexible. People can create their dream home and life at will, without any restriction from the existing institutions or components. People can make the space completely open, or can divide it, so that it contains personalized aesthetic interest. LOFT enables the inhabitants to feel the unruly freedom of being in the countryside even in the bustling city. In this case, the main tone of color is white, breaking the traditional color pattern of indoor space, blending several dark colors, making the guest restaurant present a bright, open and free unique space, with strong and harmonious color contrast. 主案设计:罗淞元、程施洋 协助设计:邓威、吴煜、曹振一 设计风格:现代 LOFT 建案地点:深圳市华侨城锦绣花园四期LOFT公馆 空间面积:332m2 空间格局:三室两厅三卫浴 主要材料:爵士白大理石,原木色做旧实木,透光灯片,铜条,米色拼花砖 摄影:Sia
版权声明:本文内容由用户自行发布上传或投稿由设计芝士代为发布,版权归原作者所有,设计芝士不拥有其著作权,亦不承担相应法律责任。如果您发现本站中有涉嫌抄袭或侵权的内容,请点此提交工单进行举报,一经查实,本站将立刻删除涉嫌侵权内容。

