设计师在讲述他的新大陆之旅时提到了“地点”的概念。在那里,原始生命仍然与现代世界的发展平行存在。这个“地方”就像定居、出生的地方、传统或栖息地一样引人注目。“场所”与人、文化、生活习惯和自然条件有关。每个地区都有自己的形象和独特的特点。
从一开始,聚落就是人们的第一个概念建筑,一个保护人们免受恶劣天气影响的空间。经过数百年的发展,传统建筑从人与自然的对话演变而来,形成了独特的建筑形态特征。胡志明市是一个低地,有热带季风气候,有两个不同的季节的雨和阳光。随着发展,胡志明市的建筑逐渐形成了一种建筑的身份:满足热带气候和人们生活方式的需要。
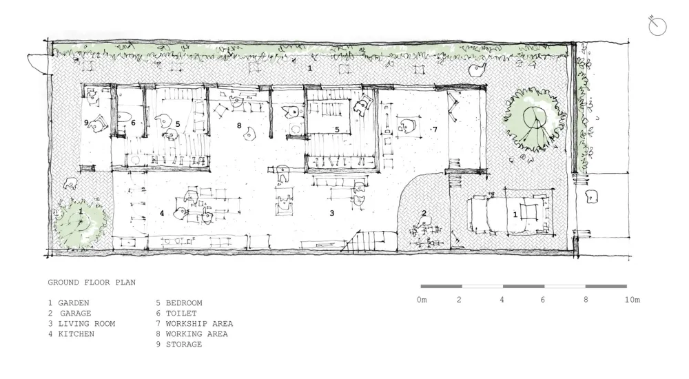
项目位于胡志明市郊区,是三代人长期生活在一起的地方。这所房子的屋顶很大。屋顶材料是由陶土制成的,这种材料与许多家庭世代的记忆有关,它已经成为越南古城形象的代表。有5个元素为项目提供了强有力的论据。
空体积和满体积代表太阳的两个方向:西和东。这种解决方案可以防止卧室(东侧)直接受热。
通过使用传统房屋的斜坡形式作为出发点,这个想法是屋顶移动和天空空间,允许光和风流入屋顶的最高点。百叶门系统改善了整个房间空气流通的流畅性。

隐藏的水(在混凝土梁内)收集掉到房子里的大部分水。这些水可以用来浇灌花园。然而,末端的屋顶可以为业主制作落水屏风(孩子们可以把水看作是一个游戏)。

前院和后院创造了一个绿色的线性连接,创造了一个新鲜的氛围贯穿整个房子。

人是房子里最重要的元素。居住空间被连接起来,使家庭中几代人的联系加倍。在我们的方法中,健康的家庭关系是社会可持续性的第一步。
现代的生活方式并不意味着我们完全脱离自然,而是应该优先考虑与太阳、风、雨、树和谐相处。通过对环境类型的仔细考虑,建筑的形状与周围的环境相连接和混合。























地址:越南 年份:2018 设计团队:Phan Lam Nhat Nam, Tran Cam Linh, Nguyen Phuong Thao, Vo Ngoc Thanh Tuan
版权声明:本文内容由用户自行发布上传或投稿由设计芝士代为发布,版权归原作者所有,设计芝士不拥有其著作权,亦不承担相应法律责任。如果您发现本站中有涉嫌抄袭或侵权的内容,请点此提交工单进行举报,一经查实,本站将立刻删除涉嫌侵权内容。

