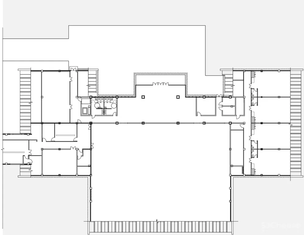
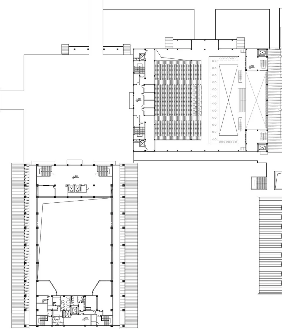
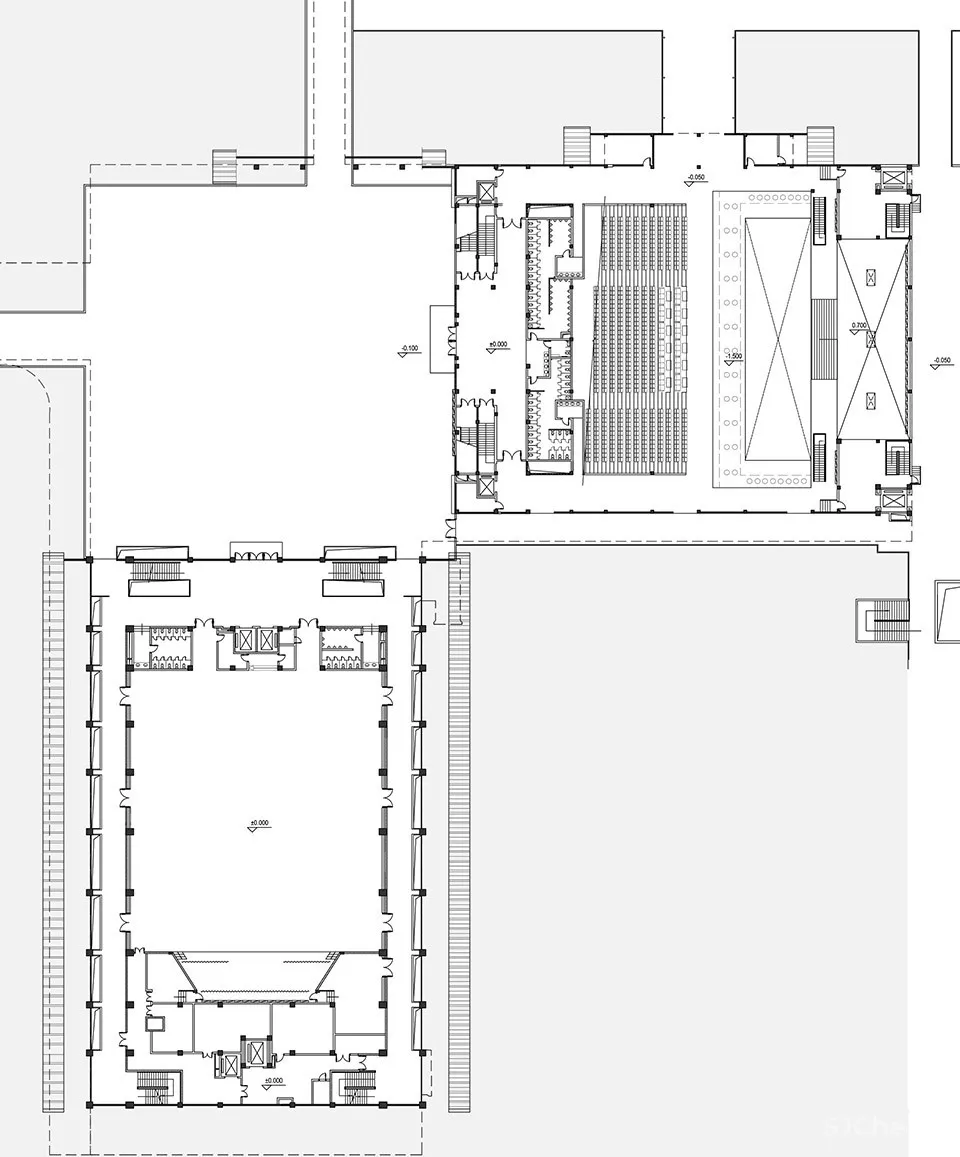
上海广富林文化遗址是目前经考古发现的上海多处遗址中内容最丰富,最具保护与开发价值的古文化遗址,被称为“上海之根”。该遗址证明了在上海这片土地上5000年前就有先民在这里繁衍生息形成独特的文化,属于中国国家重点文物保护单位。上海广富林文化遗址展览馆项目位于广富林遗址公园核心区内。遗址文化展示馆用地西面为广富林遗址保护区,东面为人工景观湖,北侧为度假酒店,南侧为低层水乡商街。
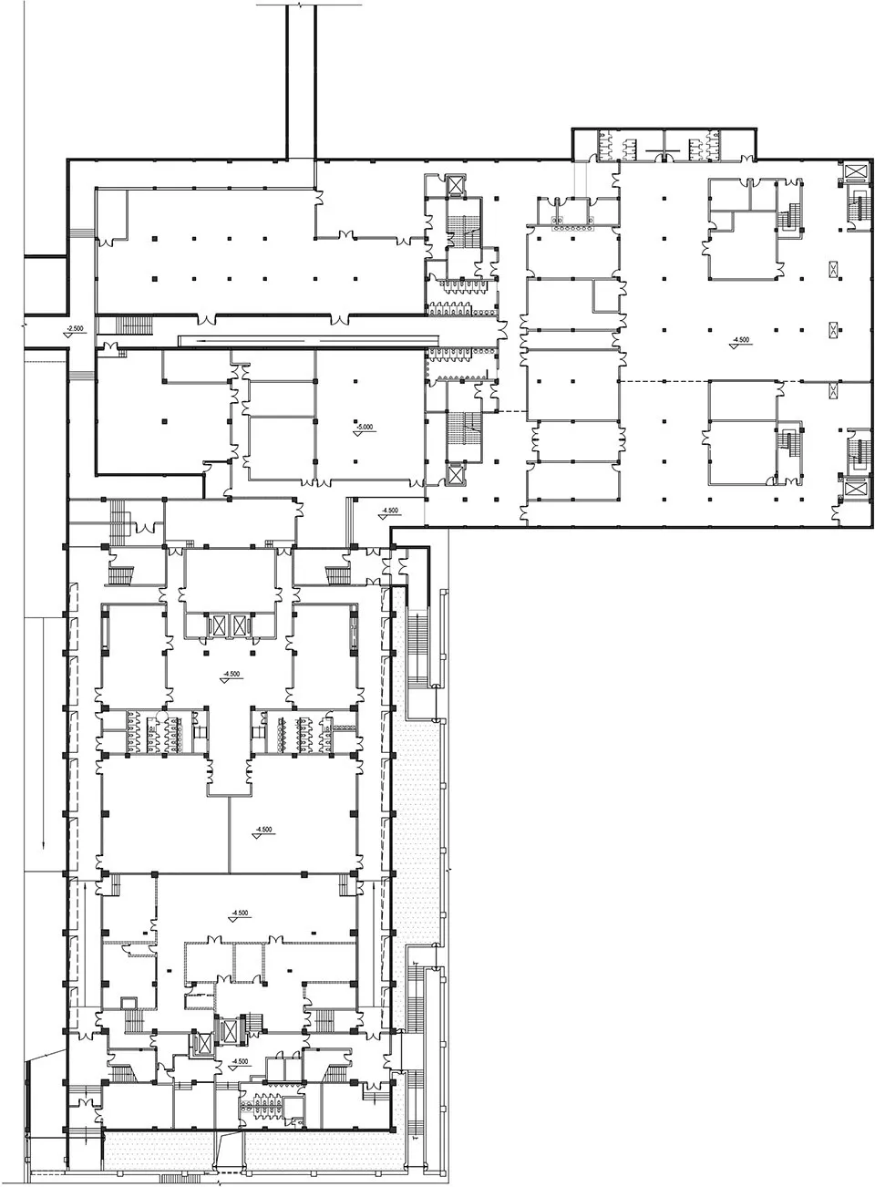
整个项目布局在人工湖面之上,以文化展示馆、文化演艺中心、文化交流中心的三组建筑形成一条南北向的主轴线,通过总体布局上的纵轴线贯穿三组建筑群体,形成连续的空间序列,三组建筑也寓意传统中式建筑中官宅三进院落的形式。无论置身于建筑群体的何处,都能感受到独特的空间韵味。外部形象为三组漂浮在水面上的两坡大屋顶。两坡顶和圆顶建筑形式灵感来源于新时期时代先民的房子,立面细节又融入中国唐宋之后形成的传统古建筑的特征。整组建筑群落是整个遗址公园的中心景观。
主要展馆及一些配套空间设计建在水下,有效减小了地面建筑的体量,加上分散的建筑群落布置使得整个建筑与周边水乡小尺度的建筑更好的协调融合。
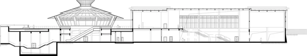
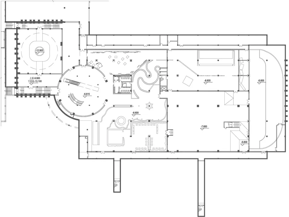
室内空间提炼和演绎了中国最传统的木结构建筑内部空间。展馆以“上海之根,海派之源”为主题,人们从圆形大厅走入展厅,逐渐步入水下,迂回曲折的步道两边展示了沧海桑田的变化与发展,以一个个经典场景按照时间线脉络让所有人看到了上海从一个原始村落,到广富林古镇、华亭县,再到松江府,直至大上海滩的数千年的历史巨变过程。










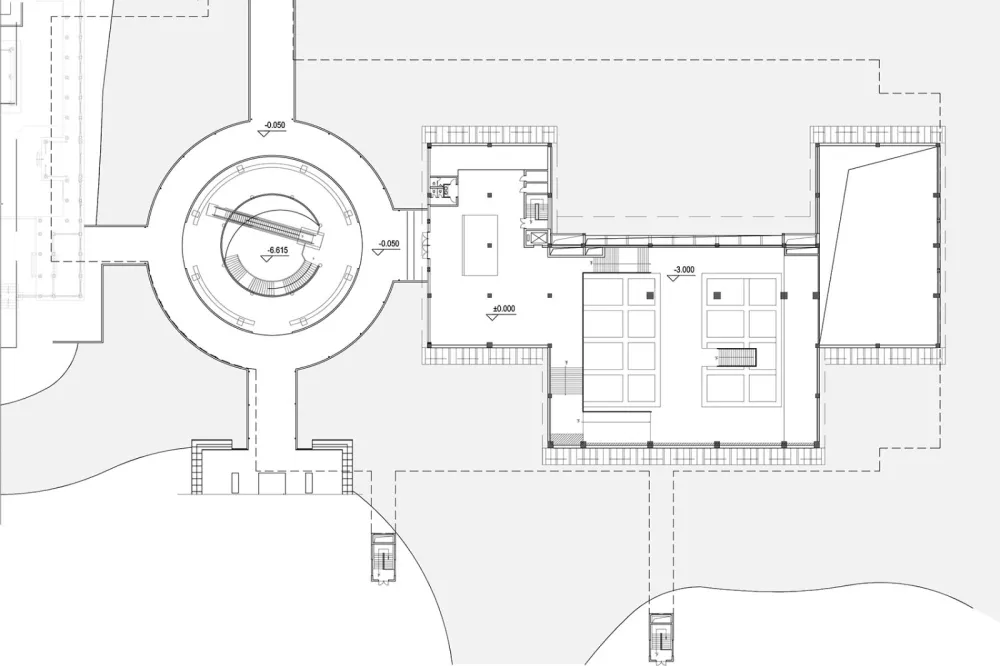
▼总平面图

▼交流中心南立面
▼交流中心西立面


▼演艺中心东立面


▼演艺中心南立面
▼展示馆东立面图

▼展示馆剖面图

▼展示馆西立面图




项目名称:上海松江广富林遗址文化展示馆 建筑事务所:CCDI悉地国际 项目完成年份: 2018年 主创建筑师:洪斌、杨铭杰 项目详细地址:中国,上海,松江新城 建筑面积(平方米):40,073㎡ 设计团队:张博、李蓉、罗葆滢 摄影师: 章勇
版权声明:本文内容由用户自行发布上传或投稿由设计芝士代为发布,版权归原作者所有,设计芝士不拥有其著作权,亦不承担相应法律责任。如果您发现本站中有涉嫌抄袭或侵权的内容,请点此提交工单进行举报,一经查实,本站将立刻删除涉嫌侵权内容。

