中岁颇好道,晚家南山陲。兴来每独往,胜事空自知。 行到水穷处,坐看云起时。偶然值林叟,谈笑无还期。 《王维.终南别业》

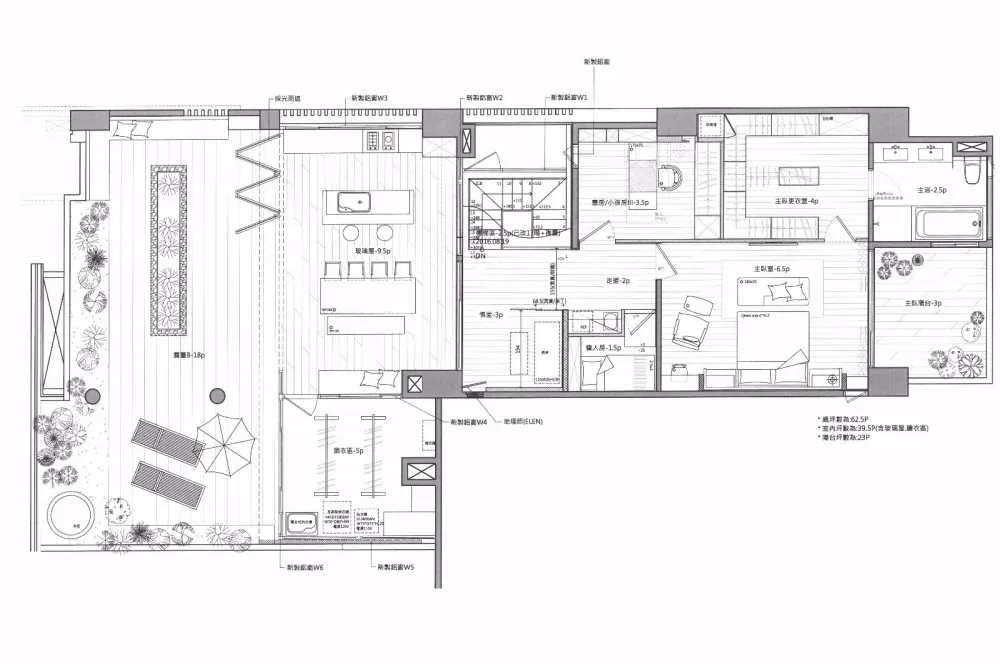
人生的旅途,从初生之犊不畏虎到历经大风大浪,功成业就。体验过人生的酸甜苦辣,最后找寻一块宝地定居,与家人享受美好的幸福时光,才不虚此行。此案位于林口高楼层华厦,拥有可与家人齐聚一堂的大坪数公共空间,以及饱览无边风月的大露台。将生活中的美景收藏,并升华成内心最美的回忆。
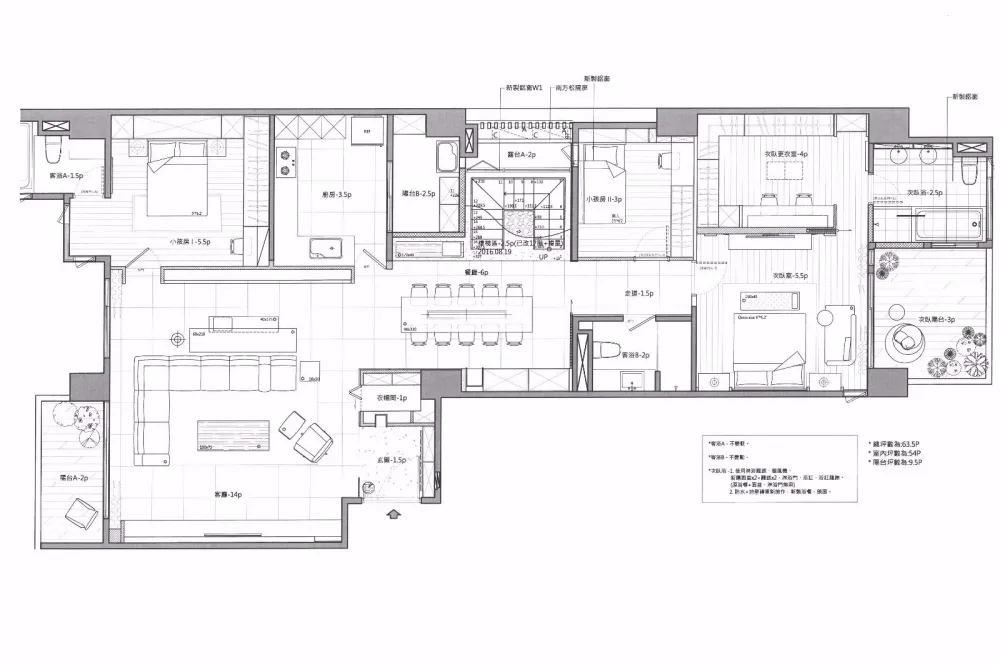
迎接家人与客人的玄关处以深色木纹为基底,左侧的格栅让光线穿透,揉和阳光与木质的温润感,设计师将地砖做跳色处理,区隔玄关与客厅空间。而柜体之间保留一处,让喜爱花艺的女主人能摆放亲手制作的作品,将生活融入空间,也增加空间的生气。
沿着木纹质感踏入客厅场域,设计总监李冠莹Ivy与设计团队以舒心的大地色作为公共空间的色彩计画,并加入带有金属质感的建材与饰品点缀,仿如星辰一闪一烁,让空间充满丰富的视觉层次。

客厅墙面使用特殊的马来漆处理,透过专业的涂抹手法层层堆叠,创造出独特的纹理,各个角度皆展露迥然不同的美感,为客厅注入一抹艺术气息。由于男屋主非常喜爱实木,设计团队将实木元素巧妙地融合在各个区域,不论在哪个空间停留,实木的香气将围绕身旁。

工作桌后方的造型墙兼具书柜与酒品展示功能,因宽度近5米,设计团队特别留意结构支撑性与美感呈现的拿捏。透过山峦的意象为概念,将石、铁、木、光的大自然元素融入其中,开灯后的造型墙如同阳光穿透层峦耸翠,气势滂礡。
走进餐厅犹如走进山明水秀的自然氛围,四周的柜体以深浅木皮交错,搭配如花瓣飞舞的造型吊灯,金属质感点缀其中,透过阳光或月光的折射,像极了水面波光粼粼的模样。
而楼梯间的枯山水景色座落中央,与左右两侧的木质与石材墙面相互辉映,享用佳肴同时享受大自然的美景。
设计团队以灰黑色玻璃做为楼梯扶手,让光线得以穿透室内各个角落。
走进顶楼空间,映入眼帘的是能一眼望尽日月星辰的大露台,良好的座向方位,傍晚时亦能沉浸在落日的橘红,享受金片般的光线洒落。而一旁的台面兼具处理食材与收纳功能,座位及卧榻区让大人小孩能尽情享受相聚的时光。
因工作缘故,屋主夫妻体验过世界数一数二的七星饭店,并希望能将饭店的舒适与质感带回家中,每每走进卧房都能体验愉悦尊荣的顶级享受。床头以沉稳的木质ㄇ字型包覆,右侧女屋主的梳妆台选用典雅质感的杏色壁纸相衬。
媲美专柜质感的更衣室运用玻璃镜面材质放大空间视觉感,不仅能收纳女屋主大量的衣物及饰品,亦阻隔棉絮灰尘,让衣物保有最佳的收藏空间。
主卧卫浴空间使用大理石提升整体质感,天花板则融入男屋主喜爱的实木,泡澡时也能闻着实木香气,放松心灵。
女儿的卧房以古典风格为主,设计团队将女儿喜爱的紫色系,透过浓淡的色调搭配,呈现优雅柔软的空间氛围。 生活中不可或缺的即是居住在充满舒适与亲情的好宅,除了事业上的成就,屋主更在乎与家人间的情感交流,不仅细心安排家人的专属空间,透过设计总监李冠莹Ivy与设计团队的巧思,将其规划得妥贴舒适,并且能将大自然景色完美融入在家中各个场域,让家人们生活得相当舒心自在。


座落地点:林口 面积:412㎡ 家庭成员:三代同堂 建案屋况:新成屋 空间格局:五房二厅三卫 主要建材:铁刀木钢刷实木皮、白橡木钢刷实木皮、烟熏橡木实木地板、马来漆、镀钛金属、铁件、石皮、板岩、浪花白花岗石、大理石灰网、无障碍式折叠门、系统柜、壁纸.布、皮革、茶镜、黑玻
版权声明:本文内容由用户自行发布上传或投稿由设计芝士代为发布,版权归原作者所有,设计芝士不拥有其著作权,亦不承担相应法律责任。如果您发现本站中有涉嫌抄袭或侵权的内容,请点此提交工单进行举报,一经查实,本站将立刻删除涉嫌侵权内容。

