Paphos District Court设计的目的是在两个建筑之间创造街道立面的延续,像抽象的形式一样插入,保持街道和区域的一般尺度,同时展示人体尺度。提议的建筑延伸到场地的纵向,利用中庭允许自然光进入建筑。
流通是影响形式的一个关键因素,创造了一个动态布局的计划。该组织建议将法官和工作人员从公众中分离出来。设计将所有这些参数结合在一起,用简单的材料和各种细节创建了一个清晰的体量组合,用富有表现力的开口补充建筑的功能。

该建筑在一层欢迎公众,有一个通向街道的入口。大开口创造了一个朝南的明亮空间。空间的高度与楼梯互补,楼梯作为雕塑出现,非常适合建筑的功能。外墙遮挡了来自太阳的内部空间,使开口与光线形成有趣的关系。
法院的房间位于两层的走廊上。每个法庭室都有法官和秘书的独立办公室,有私人卫生空间。根据业主的要求,按照建筑的美学要求,法庭房间配备了定制的家具。每个房间都有朝向建筑一侧的窗户,以便能接触到阳光。大楼外部的走廊允许法官、秘书和其他工作人员谨慎地离开公众。
两个中庭为走廊提供了自然光线。在一层,有植被的绿色空间,可供建筑的使用者使用。 两层的地下室为工作人员和公众提供了停车位。入口位于地块的北侧,与从主街到南侧的行人通道分开。
建筑的结构是传统的,钢筋混凝土结构按照欧洲规范设计。信封是砖砌的,带有外部隔热系统。内设石膏板石膏板结构体系。
采用外保温与低导热率铝窗相结合的方式,实现了建筑的高能量性能。建筑的部分,暴露的混凝土面向街道,作为一个整体体量从一层的穿孔白色面具上升。一楼的独特开口在一楼的角落重现。
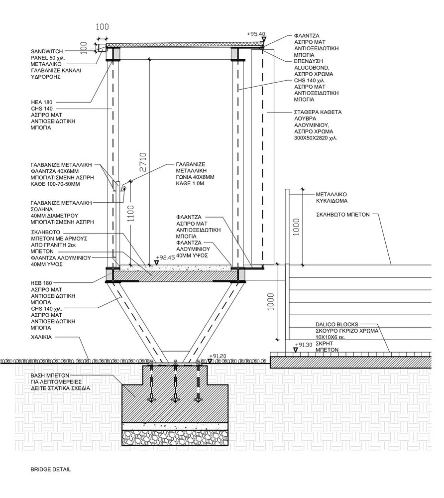
新行人天桥连接了拟建建筑和现有建筑。这座桥从地面升起,由金属屋顶和垂直百叶组成,以抵御天气的影响。























位置:塞浦路斯帕福斯8100号,Neophytou & Nicos nicoldesstr .街角 首席架构师:安德烈亚斯·瓦尔达斯,比鲁特·瓦尔达斯 区域:4100.0平方米 项目年:2018 照片:创意摄影棚
版权声明:本文内容由用户自行发布上传或投稿由设计芝士代为发布,版权归原作者所有,设计芝士不拥有其著作权,亦不承担相应法律责任。如果您发现本站中有涉嫌抄袭或侵权的内容,请点此提交工单进行举报,一经查实,本站将立刻删除涉嫌侵权内容。

