作品简介
位于高雄的172平米毛胚屋,屋主是退休的牙医师夫妻。 男主人追求少即是多的简约路线,女主人钟情绒布的亲肤与柔软,偏好黄铜色、复古金色调。 凝聚鎏金岁月的经典感,喜好料理与社交活动亦能呼应巴黎沙龙聚会的文艺情怀。

本案原始格局狭长,经格局重整后维持三房两厅,在书房加上铁黑色烤漆推拉门设计,使空间能灵活区隔成卧房兼多功能室。 独立厨房改为储藏间,挪出开放式厨房与客餐厅连成一气,打造高机能料理大平台,亦扩大宴客空间。

整体以混凝土灰搭配烟熏橡木色与午夜蓝,设定沈稳基调,再藉由家具家饰的对象细节工艺雕琢态度与品味。 客厅墙面与轻隔间的电视矮墙采用乐土水泥涂料,地板运用水泥色意大利仿原铁板薄砖,让基底沈淀出素朴的材料表情。 客厅与书房采用烟熏橡木材质与同色系木百叶,光线在筛落过程也烘托自然柔和气息。

木质的温润咖啡色调过渡到餐厅、厨房时,也渐变成璀璨的铜金色调。玄关设置琥珀镜放大视觉,搭配 Catellani & Smith 半月状铜金灯具,酝酿夜归的温馨。 Ginger & Jagger 玄关桌别出心裁地运用镀铜无花果树枝作桌脚,玩味柔弱与刚强。 Porada 白色大理石桌采用金属冲孔椭圆铜金基座,凸显都会派的潇洒不羁。 雾金烤漆吊柜搭配吊灯金光烁烁的灯罩,壁面搭配仿卡拉拉白大理石磁砖、深色磨石子磁砖,沈稳的柚木厨具亦能平衡奢华感。 女主人喜爱的绒布料质感,从客厅的蓝色窗帘、munna 山棱线般的沙发弧线与诙谐的 Gubi 甲壳虫椅开展。 书桌后方的万向活动板在 8 片柜门上附加绒布,缔造软性立面,也强化布料与主题色之运用。 电器柜与吧台的午夜蓝则渲染慵懒氛围。

女主人喜爱的绒布料质感,从客厅的蓝色窗帘、munna 山棱线般的沙发弧线与诙谐的 Gubi 甲壳虫椅开展。 书桌后方的万向活动板在 8 片柜门上附加绒布,缔造软性立面,也强化布料与主题色之运用。 电器柜与吧台的午夜蓝则渲染慵懒氛围。 在朴质的背景摆设心仪的家具设计工艺,实现品味居家之余,更彰显优雅内敛的人生智慧。



















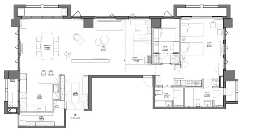
▼平面图
项目设计: hao design 项目名称:Days of gold and velvet 项目位置:中国,台湾,高雄
版权声明:本文内容由用户自行发布上传或投稿由设计芝士代为发布,版权归原作者所有,设计芝士不拥有其著作权,亦不承担相应法律责任。如果您发现本站中有涉嫌抄袭或侵权的内容,请点此提交工单进行举报,一经查实,本站将立刻删除涉嫌侵权内容。

