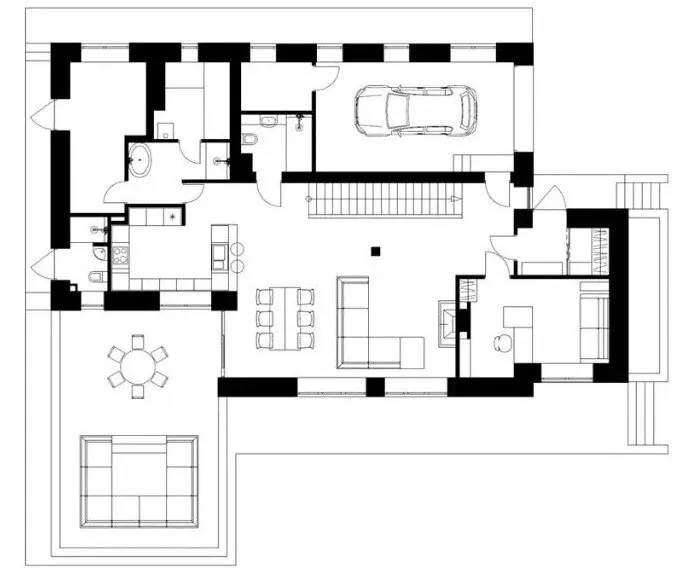
这栋乡下屋位于乌克兰基辅,面积为 295㎡,项目出自 Viktoriia Shkliar,擅长现代风格。
整栋住宅共有两层,下层主要为生活区域,上层则是私人空间。


中部是客厅与餐厅的组合空间,深灰色沙发与白色墙体形成反差。 电视背景墙综合了木质的温暖,和石材的野蛮质感,沉稳且优雅。





一层露台可从室内直接到达,花园与之相连。 顶上的木棚架起到的遮蔽风雨的作用,不管是什么天气,都可以安心享受室外空间。



二楼有三个卧室,主卧的门被隐藏在木质衣柜中,整体空间因此简洁大气。







设计师用不同的光线区分空间,营造不同的氛围。 形式、材料和光线的有效结合,在这个项目里体现的淋漓尽致。

项目设计:Viktoriia Shkliar 项目面积:295㎡ 信息来源:一起设计
版权声明:本文内容由用户自行发布上传或投稿由设计芝士代为发布,版权归原作者所有,设计芝士不拥有其著作权,亦不承担相应法律责任。如果您发现本站中有涉嫌抄袭或侵权的内容,请点此提交工单进行举报,一经查实,本站将立刻删除涉嫌侵权内容。

