EMTEK·信测是从事Safety、EMC、Toy Physical & Chemical等检测、认证的第三方技术服务机构。其委托众舍设计的信测展厅位于深圳湾核心地带,是一个集检测和展示于一体的公共性展厅,大众可以在此全方位了解第三方检测技术、讨论科技、交流学习。 The letter testing exhibition hall is a multi-functional quality testing center for "clothing, food, and accommodation". It is located in the heart of Shenzhen Bay. The public houses were invited to create this minimalist space with black, white, and gray as the main color of science and technology, and tried to use the concept of "home". Create space.
▃屋顶-“家”的概念 roof and home 衣食住行是组成家的要素,同时也可以涵盖EMTEK的业务范围,在信测的展厅设计中,众舍试图以“家”的概念营造空间。品牌检测展品在四个不同的“家“中展示,在原本通敞空洞的办公楼间层植入了一个“错落有致,屋舍俨然“的展示空间。 Food, clothing, housing, and living are the elements of the composition of the family. At the same time, they can also cover the business scope of EMTEK. In the design of the telecommunications exhibition hall, the public houses try to create space with the concept of "home". The brand inspection exhibits were displayed in four different "homes", and a "patchwork, house," display space was implanted in the original open and empty office building.
概念分析图
概念分析图

▃“家”展厅 Exhibition hall 通过简单的建筑语言,众舍创造了一个丰富的空间序列,使不同的客户得以在其中漫游,思考,学习。 Through a simple architectural language, the public houses create a rich space sequence in which different customers can roam, think, and learn.





▃全息影厅 Hologram 空间是凝固的符号。正如设计以多样探索赋予空间更大的想象力,它也有高低起伏的变化。为了引导访客进内流连,众舍引入了一系列线性墙体,沿着场地空间往互折叠,不断延伸,分隔出朝内或朝外的独立区域。 Space is the symbol of solidification. Just as design is more imaginative with a variety of explorations, it also has high and low fluctuations. In order to guide visitors into the interior, the house introduces a series of linear walls that fold along the space of the site and extend continuously to separate the inward or outward areas.

▃发布厅&休息区 Leisure area


▃结构剖析 structure 轴测图
剖面分析图

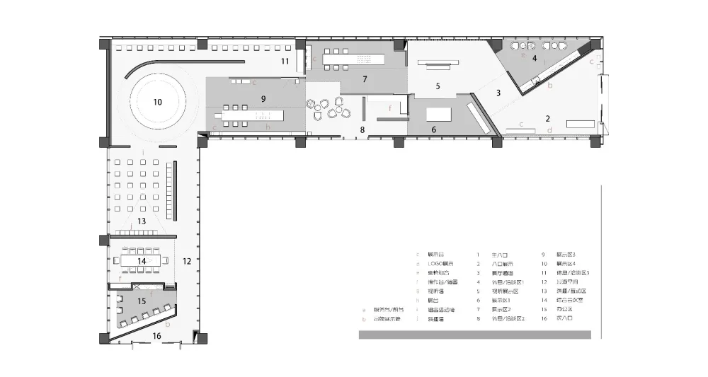
平面布置图
关于众舍 众舍,并不是简单的设计大众的空间。众,甲骨文里就是就是相随、同行的一群人,我们因为同一个建筑愿景而相知、相遇。舍,就是舍去。舍去一切多余的,繁复的装饰,追求简洁而富有韵味的空间。 众舍设计| Zones Design,正式成立于2014年,专注于室内空间的设计。我们追求极简、纯粹、物尽其用的设计理念,致力于最佳的空间规划方案以及完整的品牌战略方案,通过对空间的再创造提升设计的整体水准。我们重视设计的过程同时也同样在意施工最后的完成度。 针对设计 愿永葆一颗纯净之心。 联系我们 官网:http://zonesdesign.cn email:zones_design@yeah.net tel:027-59303187 15802788938 武汉市武昌区野芷湖西路创意天地04艺术家工作室
项目名称:「EMTEK·质量大众展厅」 设计公司:众舍空间设计 公司网站:http://zonesdesign.cn 联系邮箱:zones_design@yeah.net 项目设计时间:2017年12月 项目完成时间: 2018年11月 主创及设计团队 主创:戴奇伟 设计团队:王辉、李伟军、赖倩 项目地址:深圳,深圳湾科技生态园 建筑面积:566平方米 摄影版权:不二山人 品牌:灯光(明芯科技)、垂直帘(CR9)、全息影像(方联)、弧形铝板等
版权声明:本文内容由用户自行发布上传或投稿由设计芝士代为发布,版权归原作者所有,设计芝士不拥有其著作权,亦不承担相应法律责任。如果您发现本站中有涉嫌抄袭或侵权的内容,请点此提交工单进行举报,一经查实,本站将立刻删除涉嫌侵权内容。

