在设计该美容院时,设计团队面临着两件难事:一是位于店铺中央的混凝土柱,二是其紧张的项目预算。团队在条件允许的情况下将原混凝土、玻璃和钢壳改造成“温暖的公共环境”,他们设计了一个方案,强调客户体验和舒适性,并注重材料和细节,以使空间充满活力。
When it came to designing the interiors for Le Hideout, a beauty salon in Montreal’s burgeoning Griffintown neighbourhood, two things could have stood in the way – a centrally located concrete column and an extremely tight budget. But for local firm Ménard Dworkind Architecture & Design (MRDK), they proved more opportunity than hindrance.
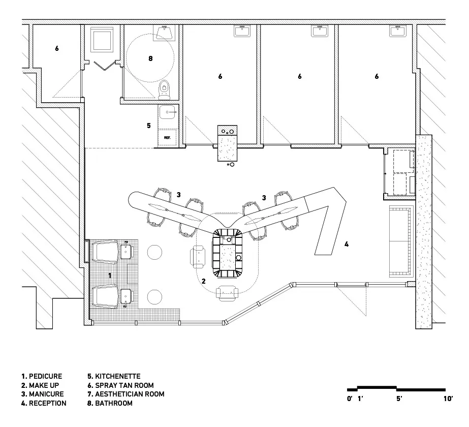
项目位于仍在建设中的Lowney sur ville公寓大楼的地面层,占据了一个60㎡的空间,店面有着整面的落地窗,店中心是一个巨大的混凝土柱子。
Situated at the ground-level of the still-under-construction Lowney sur ville condo tower, Le Hideout occupies a 60-square-metre-space fronted by street-facing glazing and centred around a large immovable column.
为了隐藏在柱子上的管道和电气管道网络,MRDK将整件作品装饰成一个由MDF制成的巨大的碳纳米管切割成的花朵形状。其底部大小为91×153厘米,在到达天花板时向外扩张。
To conceal a network of plumbing and electrical pipes that run up the column, MRDK dressed the entire thing in a massive CNC-cut floral formation made from MDF. The covering measures 91 by 153 centimetres at its base and grows upwards and outwards as it reaches the ceiling.
前台和美甲区作为沙龙的中心组织元素,由激光切割的钢材制成,垂直地从中心向四处扩散,化妆区位于它的两侧。所有这些组成部分,包括建筑本身,都被涂上了同样鲜艳的珊瑚色,这是工业空间中健康的色彩。
Acting as a central organizing element for the salon, the reception desk and manicure stations – made from laser-cut steel – sprout vertically from this core, with makeup stations affixed to its sides.All of these components, including the formation itself, were coated in the same cheery coral, a healthy dose of colour in the otherwise industrial space.
修脚台位于靠窗的一个角落,由瓷砖覆盖的基座、两个比例很大的粉色软垫椅子、洗手盆和定制的脚凳组成。
The pedicure station is located in a corner against the window and consists of a tile covered pedestal, two generously proportioned and pink-upholstered chairs, washbasins and custom-made footrests.
为了给整个空间带来温暖,主空间的墙壁上排列着涂有透明涂层的花旗松胶合板,木纹补充了裸露混凝土地板上的纹路。天花板管道、灯具、窗框和家具的黑色色彩成为了这间沙龙中的点缀色,与空间的其它色彩形成对比。在后墙的后面隐藏着一间厨房、一间浴室和一间喷漆房。
Bringing warmth throughout, clear-coated Douglas fir plywood panels line the walls of the main space, the wood grain complementing the markings found in the exposed concrete floor. Black-painted ceiling pipes, lighting, window frames and furniture punctuate the salon, providing contrast. Concealed behind the back wall are a kitchen, bathroom and spray-tan rooms.
▼平面图

完整项目信息
项目名称:LE HIDEOUT – SALON D’ESTHÉTIQUE
项目位置:加拿大蒙特利尔
项目类型:商业空间/美容院
完成时间:2018.11
设计公司:MRDK
摄影:DAVID DWORKIND
本文内容来源于:Loft中国















