LOFT中国感谢来自 UDO装饰设计事务所 的办公空间案例分享:
iFactory极白研发工坊于2018年10月26日正式对外发声,是中国第一家专注于白色文化的时尚创意工坊。作为国内外极致趣味生活方式的倡导者,iBranco在艺术和生活等领域不断探索创新,致力于打造全新白色印象。将办公场所展厅化,融入品牌形象的同时激发无穷的设计灵感,为崇尚极简、自由、创意的群体提供一个全新的办公空间,使其成为最具影响力的白色美学创意基地。
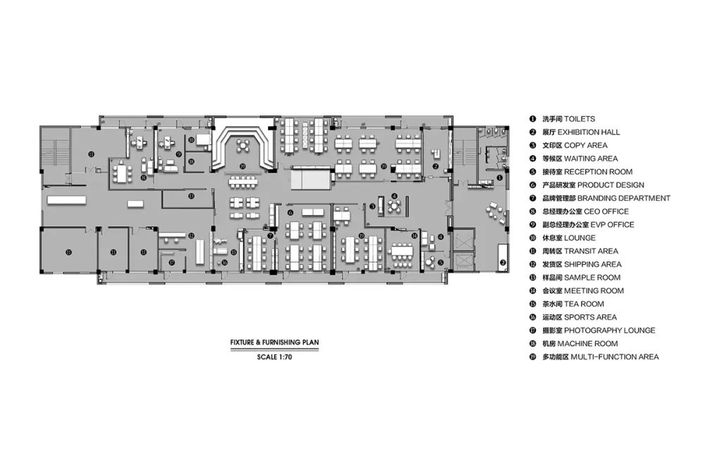
∇ 平面图
∇ 轴测图
iBranco将空间进行重新组合,同时满足一个空间多可能场景使用的转化;运用集装箱、水泥、肌理做旧墙面、水管等元素,将原有的暴露式线路进行融合,展示出白色运用在不同材质上的结合,来呈现我们对于极白文化“适应性”与“碰撞感”的运用。
打破重组
空间细节
办公状态
休闲空间
展厅
始于“无”,诞于“白”
我们想用不同媒介/材质,碰撞出趣味的造型语言,运用多种设计手法赋予白色产品想象,创造出跨思维,更具期待与玩味的白色家品。而空间中设计了多处产品展示装置,营造一种博物馆的体验,去记录品牌的每一步印记。
从生活到设计,从外在形式到内在特质,白色不是一个无趣的代表,而是充满可能性和未来感的纯粹象征。无需纷繁色彩的渲染和复杂元素的推砌,多处白色艺术装置分布在1500平方米的展厅空间,iBranco让设计回归纯粹的本质,用爱白态度打造全站式的造白之旅。
关于品牌:
专注做白, 源于对“粉刷,再创造”的纯粹体验。
以“白”起家,用白表达。iBranco发起极白新生代的号召,粉刷,再创造出全新白色定义。
iBranco旗下有家居生活 、 体验餐饮 、 主题旅居 、 文化活动等多板块业务。想了解更多品牌信息,可关注官方网站www.iBranco.com、官方公众号 ibranco_official 。
完整项目信息
项目名称:iFACTORY
设计事务所:UDO装饰设计事务所
项目地址:广东省珠海市
建筑面积:1500㎡
主持设计师:周涛
参与设计师:郭文斌,李秋菊,Anson
视觉设计:Siufung、Moon
设计及完成时间:2017.12-2018.09
摄影:MAX
本文内容来源于:Loft中国















