公寓整体改造的目的是为年轻家庭的生活创造一个安静和中性的背景,然后根据其当前的需求和品味占据它。该项目的任务是创建一个空的空间,在这个空间中,完成的公寓的所有功能都被集成到定义空间的墙壁中。智能布线、储藏室和家具系统,确保公寓中单个元素的位置的可变性,被谨慎地嵌入材料和色彩平衡的表面调色板中,具有精确和极简主义的细节,可以与未来业主的任何颜色范围或风格相匹配。
这套公寓位于布拉格一个安静的居民区,位于一栋建于20世纪50年代的四层砖房的三楼。
客户对年轻家庭高水平生活的要求和对单个房间声学舒适度的增加要求导致了公寓的完全重建。我们已经从过去拆除了所有额外的建筑改造层,劣质的石膏和多余的非承重砖墙。这些改造也揭示了天花板结构的预制混凝土板系统,这些预制混凝土板随后被修复,并作为所有新房间内部独特的美学元素保留下来。

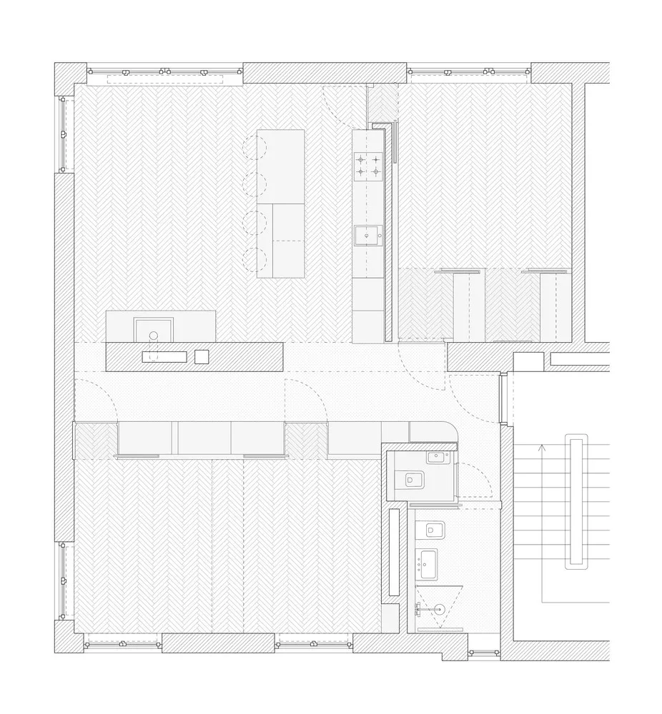
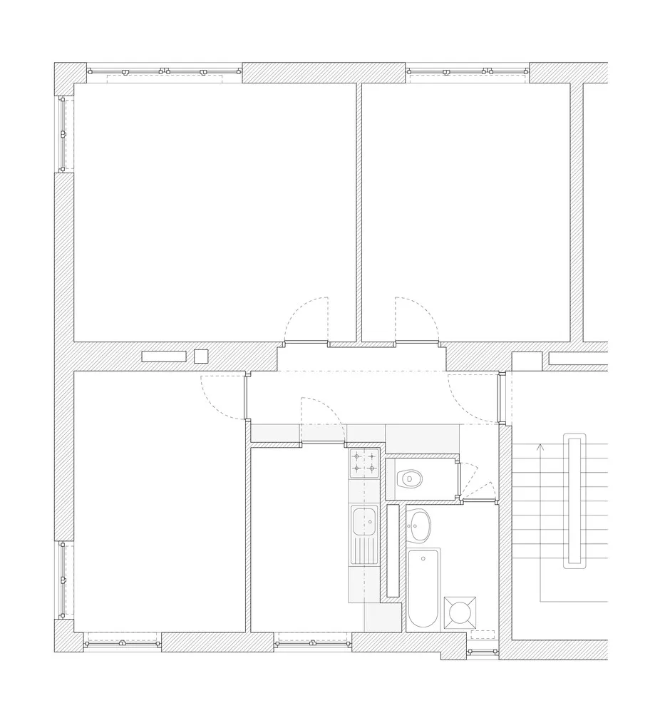
公寓原有的布局已经被一些房间之间的新连接部分改变和丰富,形成了中央走廊的替代,确保了行动自由和充足的日光。
极简主义的设计,精确的细节和减少,但精心选择的材料和纹理的调色板,时尚地补充了原来的混凝土天花板。天花板与公寓墙壁之间有一个明显的深间隙,在视觉上突出了它的不均匀性、物质性和重量。与其他室内元素一样,美学与实用功能密切相关。这种用于不同位置的高保真扬声器的低压电缆被路由在间隙中。室内照明设计为一个三回路轨道系统,安装在天花板的混凝土面板之间的连接处,确保灯具的位置根据公寓的实际布局变化。周围的墙壁是白色和中性的,地板底座安装与墙面平齐。基座是可拆卸的,为布线提供了空间。中心承重墙构成整个公寓布局的脊梁。混凝土找平的表面处理强调了它的存在和重量。

同样的材料用于壁炉的表面,这使得它几乎有雕塑的感觉。房间和走廊之间的隔断——在很大程度上——被一个双门橱柜系统所取代,由于特殊的木工技术,该系统在提供公寓所需的存储空间的同时,为房间提供了高质量的隔音效果。这个解决方案假设没有额外的独立存储家具,并允许业主保持公寓通风和空。内置橱柜吸声面板的顶层由穿孔单板构成,除了功能用途外,还以独特的美学元素补充了室内空间。单板表面,加上木制的花束,创造了一个柔软和欢迎的混凝土面板和混凝土找平的粗糙纹理的对比。
蓝色和黄色色调的浴室故意与其他房间的调色板不同。洁净和放松的房间给人一种顽皮、孩子气的印象,形成了公寓其余部分严肃性的理想对比。




















位置:布拉格,捷克共和国 设计: COLLARCH 区域:85.0平方米 项目年:2018 照片:Alexandra Timpau
版权声明:本文内容由用户自行发布上传或投稿由设计芝士代为发布,版权归原作者所有,设计芝士不拥有其著作权,亦不承担相应法律责任。如果您发现本站中有涉嫌抄袭或侵权的内容,请点此提交工单进行举报,一经查实,本站将立刻删除涉嫌侵权内容。


?