这座建筑与gwanghwamunhemul一起被认为建于1940年。我们想要把它看作是一个适合Jeong-dong的品牌,在这里,现代和古老的品味并存,我们认为它们都是现代和当代在20世纪40年代。所以,在我们开始寻找空间的旧面貌之前,我们开始熨烫木质天花板,金属的内外结构材料,以及现代设计元素。
建筑前面的立面采用两层建筑,克服了与建筑尺寸相比狭窄的缺点,鱼的形态悬挂在二层,间接表达了海鲜餐厅的感觉。

为了增加顾客的可达性,他们还设计了一个连接到停车场的建筑后部的入口,在白天随机刺穿小窗户以保证照明,在晚上将灯光调暗以便放出去。为了捕捉建筑背面砖的外观,它的目的是显示防水区域,只有一个结构可以清洗和显示。

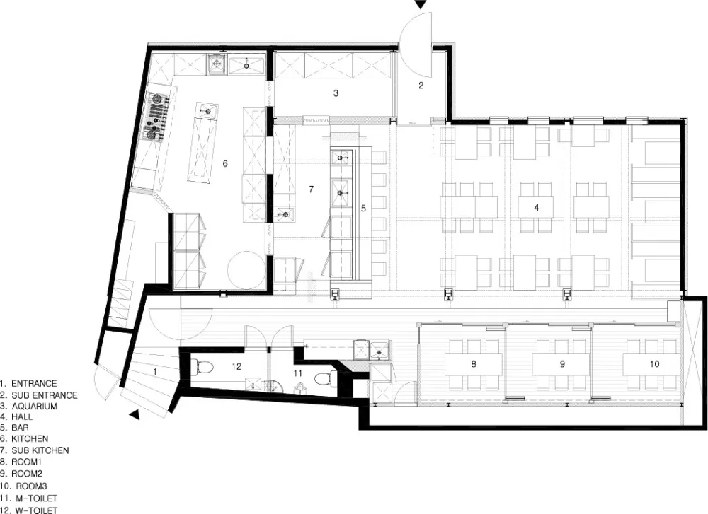
空间被划分为大厅、厨房和房间,柜台设置在顾客队伍的中心,考虑到两个入口。房间可以作为一个单独的房间供六个人使用,房间和房间之间的墙可以作为一组最多18个人使用,大厅和房间的边界看起来不像一个房间。

大厅的一面墙上也设置了固定类型的隔断座椅,吧台旁边的空间被设计成一个单座的长桌,为不同的顾客提供了更多的选择。
山墙形式的传统木结构已经被细化到加强结构的程度,并被用作元素,允许垂直查看大厅空间和显示过去。此外,采光固定在天花板上,垂直下照灯安装在大厅的桌子上,以便在晚上显示天花板。
没有金属材料从粗糙的旧木顶落下,这是现代表达的一部分。隔断是大厅与房间之间的边界,旨在利用金属+玻璃对推拉门形式进行细化,降低房间天花板,突出大厅天花板,给房间使用者带来舒适的氛围。















地址:韩国 设计:gongsangplanet 年份:2018 摄影:Choi Yong Jun
版权声明:本文内容由用户自行发布上传或投稿由设计芝士代为发布,版权归原作者所有,设计芝士不拥有其著作权,亦不承担相应法律责任。如果您发现本站中有涉嫌抄袭或侵权的内容,请点此提交工单进行举报,一经查实,本站将立刻删除涉嫌侵权内容。

