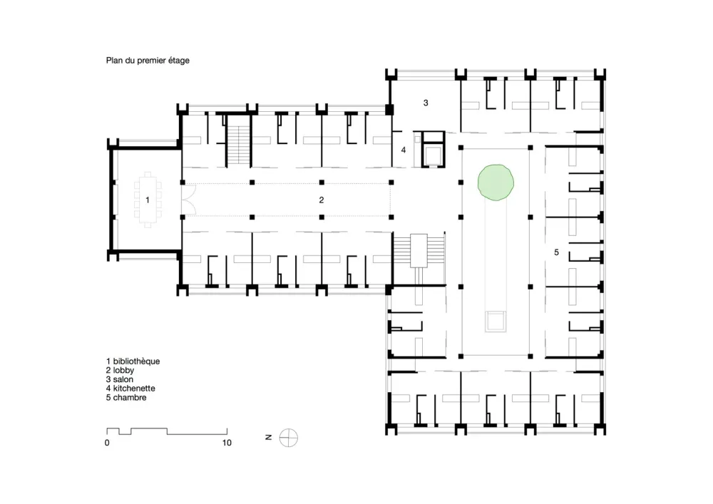
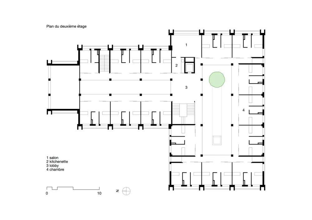
Bêtania 是一个致力于满足社会教育需求的住宅。它以一种非常合理、简单,又经济的方式建造而成,即是使用一系列基本的原型框架。为得到与邻居的最小间距并充分利用用地,施工的每个部分都有具体的长度。建筑的中心是重要的公共空间,包括一个开放式和一个带顶棚的庭院。室外连廊围绕着庭院,其上分布着78名女学生的卧室。这栋住宅楼里同时还包括一家低预算餐厅和一间图书馆。
 
 
该建筑的结构为钢筋混凝土,并填充着色砖。整个住宅由一系列的双面屋顶覆盖。散发的大体量被给定的节奏切割为较小的实体,来与遍布全国上下的街旁本土建筑相协调。顺化的热带气候使建筑需要特别保护,以免受大雨和高温的影响。这些考虑因素构成了这座建筑。
 
 
雨水首先在屋顶被收集到大型收集器中,再沿着立面上粗大的垂直水槽落到地面。在底部,雨水可以直接进入公共供水系统,也可以流向庭院下安装的储水池。储存的雨水可被用于清洁、浇灌,也可以给能为内部环境降温的喷泉供水。结构框架中密排着薄水泥制的三角形图案,简单高效地实现了建筑中的自然通风。这种简单却可靠的工件可在建筑内立面上形成固定的阴影,还能够为住宅提供隐私,遮挡从周围建筑而来接近的视线。
 
 
建筑的外观矿质、清冷,又有些抽象。内部则是木制立面,有着更加居家和温暖的特性。庭院中种着一棵开花的树,同喷泉一起营造出一种舒适宁静的好学氛围。以它为中心的每间居住单元都获益于它的安静,与周围街道活跃繁忙的生活景象形成鲜明对比。该建筑2018年在河内获得了越南绿色建筑奖。





























 
 
建筑师 : atelier OBJECTIFS 地址 : 44 Hàm Nghi, Phước Vĩnh, Thành phố Huế, Thừa Thiên Huế, 越南 主创建筑师 : Julien BARRO, Franklin REGAD, Daniel SEDE 建筑面积: 2370.0 m2 项目年份 : 2017 摄影师 : Julien BARRO
版权声明:本文内容由用户自行发布上传或投稿由设计芝士代为发布,版权归原作者所有,设计芝士不拥有其著作权,亦不承担相应法律责任。如果您发现本站中有涉嫌抄袭或侵权的内容,请点此提交工单进行举报,一经查实,本站将立刻删除涉嫌侵权内容。
    

