项目包含9号线Europa-Fira, Parc Logístic 和 Mercabarna三个地铁站的设计,这些地下铁交通站项目旨在以最简化的设计,来创造最大的空间价值和使用功能。设计师希望空间以更加纯朴的形式展现,摆脱人为建造的痕迹,回归最原始的空间逻辑。 ▼Mercabarna station车站平面,Mercabarna station plan

▼Europa Fira地铁站内景,interior view of Europa Fira

因此,设计师力求实现空间材料的最少程度使用,使空间中原有的结构元素如隔墙,支撑柱,预制挡板等实现最优的表现形式,并进一步完完整项目的整体空间。此外,附加的金属面板,瓷砖地板,栏杆及玻璃电梯,石座长椅和以线性分散形式布局的两种不同样式的工业化灯具,以及TMB原有的售票机,检票机和指示牌,让地铁站这一空间氛围更显浓烈。 ▼Europa Fira地铁站:简化空间装饰,Europa Fira: the use of the smallest number of materials is proposed
▼Mercabarna车站:附加材料增强空间氛围,Mercabarna: the interior is complemented by the elements such as sheet metal linings
▼Parc Logístic车站内景,interior view of Parc Logístic

▼Parc Logistic电梯,elevator of station Parc Logistic
▼Europa Fira站台,the platform of Europa Fira
▼Parc Logístic 站台候车长椅, Parc Logistic: the bench
该项目的另一个重要部分是将车站与周围环境隔离开来。设计师决定用全高度隔墙分割室内空间,并借此形成入口,大厅,展台,车道等功能区域。 ▼Mercabarna站台: 通高的隔墙分割出各个功能空间,Mercabarna: the full height walls divide the space
地下车站最大程度利用自然光线。该车站环境以永恒而持久的使用功能为设计目标,注重选用更为耐用和易于维护的材料,并最终实现“虚无空间”的环境设计风格。 ▼Mercabarna站台:充分利用屋顶自然光,Mercabarna: make fully use of the natural light



▼Parc Logístic站台,platform of Parc Logístic
▼Mercabarna station车站平面,Mercabarna station plan

▼Mercabarna station车站剖面,Mercabarna station section
▼Parklogistic车站平面,Parklogistic station plan
▼Parklogistic车站剖面,Parklogistic station section

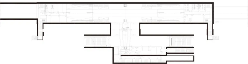
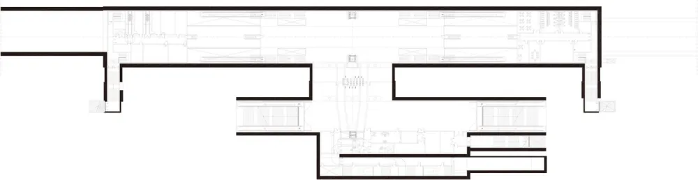
▼Eropafira车站平面,Europafira station plan



设计公司 : Garcés De Seta Bonet Arquitectes 位置 : 西班牙 类型 : 交通建筑地铁站 材料 : 石材金属 文章分类 : 建筑 标签 : barcelona巴塞罗那
版权声明:本文内容由用户自行发布上传或投稿由设计芝士代为发布,版权归原作者所有,设计芝士不拥有其著作权,亦不承担相应法律责任。如果您发现本站中有涉嫌抄袭或侵权的内容,请点此提交工单进行举报,一经查实,本站将立刻删除涉嫌侵权内容。

