Neobio家庭公园
设计总监:李想
设计团队:任立娇、刘欢、贾斯汀、樊臣
设计公司:X Living(www.xl-muse.com)
家具:祥卡萨
项目地点:中国上海市闵行区
项目类型:商业
Area: 3000㎡
设计时间:2016.12
竣工时间:2017.07
摄影师:邵峰
蝴蝶在摇曳的树影中飞翔。
这提醒了我,光线的温度在45度的角度下发光。
每一次呼吸都是生命赋予的节奏。
在这座有着千年历史的古城里
气球升起
无论何时;新的生活总是美好的。
无论在哪里;不要忘记仰望那美丽的天空。
这提醒了我,妈妈的体温
感谢上帝牵着我们的手
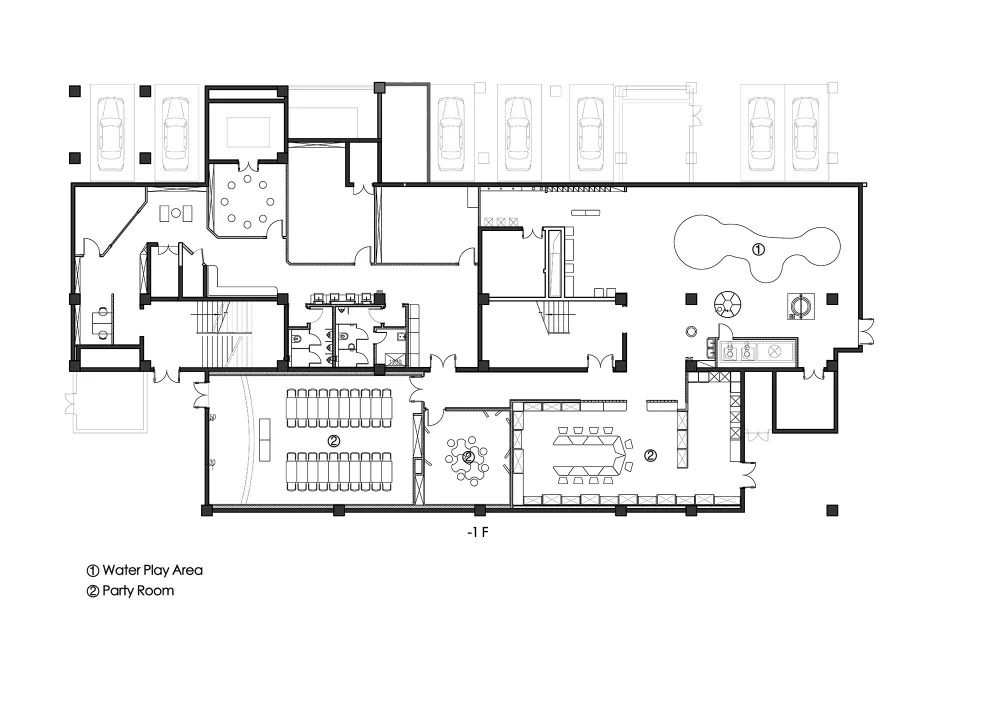
当我们设计书店时,我们打算让阅读变得愉快和富有教育性,并将儿童阅读区变成一个类似游乐园的地方。这次我们正在设计一个真正的室内游乐园。新比奥家庭公园位于上海闵行区都惠路3788里民行兴河湾购物街5号欧洲大厦内。分为读书区、就餐区、西姆斯城、攀岩区和党务厅。进入正门,我们被波涛汹涌的森林和起伏的山丘所包围,这些都是读书区的书架,也是孩子们玩捉迷藏的最佳场所。每个树洞对孩子们来说都是一个独特的小世界。我们利用小森林和小山来创造一个自由和放松的阅读区,让孩子们感觉更接近大自然。在靠近森林的窗户旁,为家长设计了一个休闲阅读区。
我们通过像海洋池一样的楼梯来到西姆斯城,在那里创建了一个微型城市。在这里你可以找到城市道路系统,包括道路,斑马线,路灯和停车场。在中间,一栋三层楼的房子分为左右两层,里面有迷你邮局、加油站、超市、医院等;还有孩子们最喜欢的娱乐之家场景:厨房、衣服、婴儿化妆和换尿布。孩子们可以自由地去迷你城市的每一个角落,父母可以看着他们的孩子在对面的休息区玩。在西姆斯城的深处,有一个“小公主”最爱的地方-“宇宙游戏”公主区,女孩们可以装扮成各种各样的公主并拍照。在陪伴公主的同时,母亲们可以做指甲。
穿越时间隧道,我们到达了大孩子区,那里有各种各样的滑梯,攀爬架充满了整个地板,看起来就像一个巨大的迷宫。最吸引眼球的部分是S形滑梯,孩子们可以从它直接滑到一楼的餐厅。孩子们玩得很开心之后,家长们就可以带着孩子们去就餐区享用美味的食物了。在就餐区,许多像气球一样的悬挂游戏盒被设计出来,所有这些都是通过透明的爬行连接起来的,孩子们可以到处爬行的乐趣。这些盒子周围有餐桌,允许父母在吃饭时照顾他们的孩子。两间贵宾房是为需要私人空间的家庭设计的。
在地下室里,有一个为孩子们准备的聚会厅,主题有印度、沙漠和地中海。在这里,孩子们可以在他们最喜欢的房间举行生日聚会。特大王
Neobio带你进入一个现实的童话世界!

















































































Firm X+Living
Type Educational › Other
STATUS Built
YEAR 2016
SIZE 25,000 sqft - 100,000 sqft
BUDGET Undisclosed
keywords:architecture, architecture news, interiors, interior design, portfolio, spec, brands, marketplace, products Neobio Family Park
关键词:建筑,建筑新闻,室内设计,组合,规格,品牌,市场,产品Neobio家庭公园
Neobio家庭公园设计总监:李想设计团队:任丽娇,刘欢,贾斯汀,陈范设计公司:X Living(www.xl-muse.com)家具:香.。
版权声明:本文内容由用户自行发布上传或投稿由设计芝士代为发布,版权归原作者所有,设计芝士不拥有其著作权,亦不承担相应法律责任。如果您发现本站中有涉嫌抄袭或侵权的内容,请点此提交工单进行举报,一经查实,本站将立刻删除涉嫌侵权内容。

