该建筑位于巴塞罗那 Montornés del Vallés 市区的Joaquim Mir 2号广场 。最初由建筑师 Magí Rius 在1884年设计,用作校舍。由于当时施工阶段的延期,直至1930年才竣工完成。
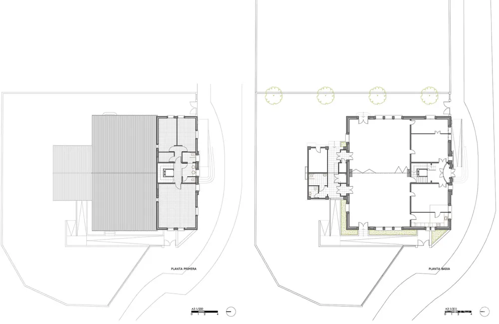
建筑有着一个四方的平面基底,主体通过屋顶的形式可以划分为两类,四面坡屋顶被设置在建筑的首层及二层,也是建筑的主要入口和到达竖向交通核通道的空间。斜坡屋顶的部分立面为山墙,在整体建筑中仅设置于首层区域。 另一个同样为斜坡屋顶的结构,与主体建筑的背立面相连,作为设施及服务的用房位于建筑后方。

建筑外立面为新古典主义风格,开窗以中心对称的方式沿建筑立面中心轴对称分布,与窗间墙在间距设置上形成鲜明的体积对比。 主入口有着独立于建筑屋顶的三角形山墙立面,以一种突出的方式位于主体中央,伴有两侧相邻壁柱装饰。柱基和上檐绕建筑的外围一圈装饰立面主体。
改造项目提出了对建筑内部空间的重新利用和划分,以适合如今不再用具备教学功能而被重新定义为“青年中心”的场地。在建筑面向 Pintor Mir 街道的一侧植入了一个新的坡道,方便行人到达。位于建筑背立面的楼梯也在保留原有组合形态的基础上,被适当地改造利用。建筑侧边的坡道和户外花园被完全保留,没有做出任何改动。





▼基地位置
▼平面图
▼立面图
▼剖面图
类型:建筑 材料:地面材料 标签:Interior design renovation 室内设计 改造
版权声明:本文内容由用户自行发布上传或投稿由设计芝士代为发布,版权归原作者所有,设计芝士不拥有其著作权,亦不承担相应法律责任。如果您发现本站中有涉嫌抄袭或侵权的内容,请点此提交工单进行举报,一经查实,本站将立刻删除涉嫌侵权内容。


喜欢旧建筑翻新改造的案例