漂浮在半空中的自行车、接近6米的天花板高度、发光的展示柜,以及带来无限幻象的镜面玻璃——这些元素共同为这间高端自行车展厅赋予了与众不同的观感和体验。项目的创意总监Johannes Torpe表示:“该项目是为敢于做梦的人而设计。”
在12个月多一点的时间里,Johannes Torpe Studios成功地将一栋沉闷的1990年代的工业建筑转变为一座闪闪发光的、属于骑行爱好者们的圣殿。设计团队以“产品的力量”为核心,构建了一个能够鼓励学习和创新的零售空间。Johannes Torpe说:“我们的客户所出售的是全球最先进的几款自行车,其中包括奥运会的比赛用车。我们希望通过这次设计来突显自行车背后的工程技术,以及它们所代表的一种梦想。为此,我们将自行车展示在一个充满未来感的“太空”环境当中,以强调它们的力量和地位。
United Cycling的店主Henrik Lyngbye Pedersen表示:“我成长在一个鼓励梦想、珍视集体的文化环境中,这使得United Cycling自然而然地与Johannes Torpe达成了合作。我们的目标是为Argon 18自行车在欧洲创造一个全新且充满活力的展示平台。”

“我们设计的这间店铺能够促使人们摆脱懒惰和偏执,同时激发热情和奉献精神。在今天,一家成功的零售店必须能够为顾客提供优质的体验,并且带来充分的集体感和归属感。”Johannes Torpe补充道,“该项目正是这一理念的成果所在。”人们将在United Cycling实验店中获得实现梦想的机会。















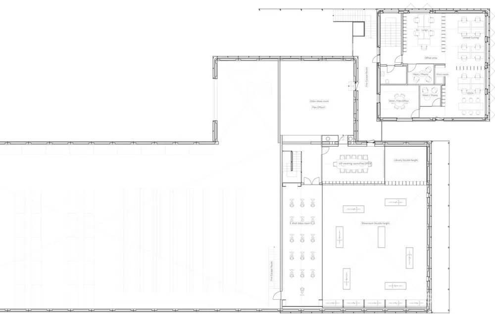
▼二层平面图

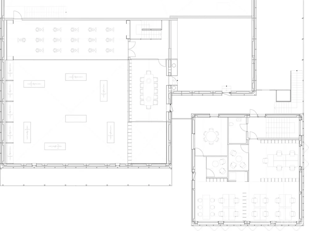
▼首层平面图
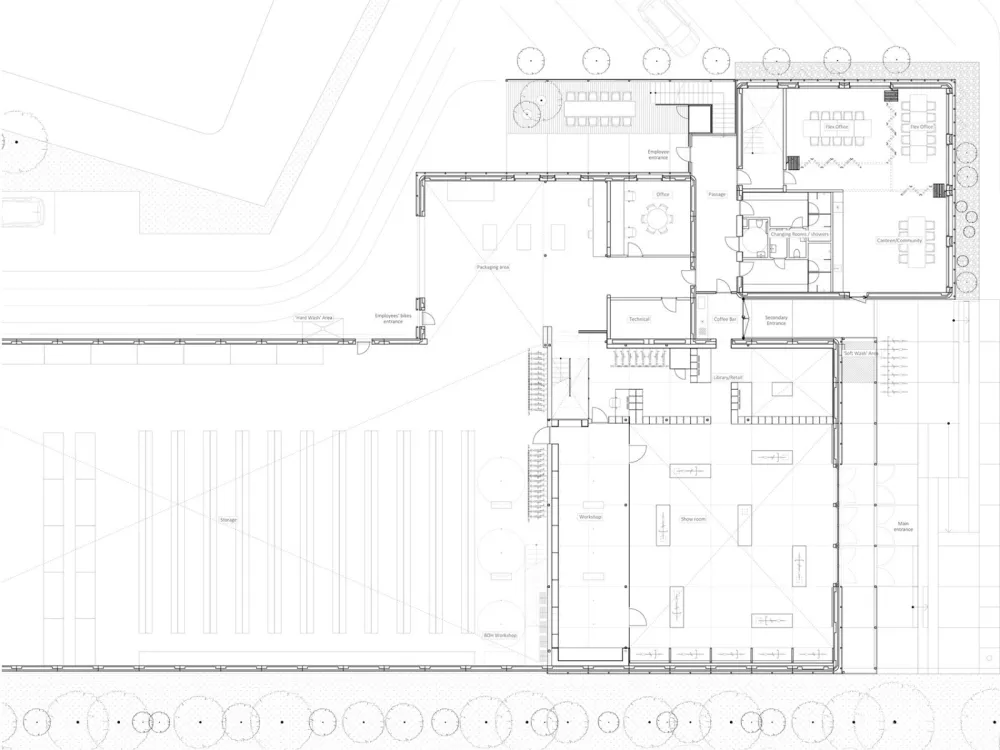
▼立面图
设计公司:Johannes Torpe Studios 位置:丹麦 类型: 建筑 材料:木材 金属 钢 混凝土 玻璃 标签:Interior Lynge 室内设计
版权声明:本文内容由用户自行发布上传或投稿由设计芝士代为发布,版权归原作者所有,设计芝士不拥有其著作权,亦不承担相应法律责任。如果您发现本站中有涉嫌抄袭或侵权的内容,请点此提交工单进行举报,一经查实,本站将立刻删除涉嫌侵权内容。

