为了庆祝Jins眼镜店成立12周年,Schemata的建筑师们完成了一项翻新工程,包括将一把大锤砸向墙壁。 日本的眼镜品牌“乔·纳加萨”(Jo nagasaka)领导的这一品牌,在日本的崎玉县,为店里的顾客创造了一个更开放的空间和更开放的空间。
通过暴露之前隐藏在墙内的结构,建筑师们创造了一个内部空间,其特点是木质的横撑。
图式说:“我们拆除了外墙,安装了Low-E眼镜,以创造出从街道上看到的美丽庭院的景观,同时,在街道上展示了令人印象深刻的大量眼镜产品。”
新上的玻璃镶嵌了一层Low-E涂层——这意味着可以通过玻璃的紫外线和红外光的数量降至最低,而不会影响光的整体质量。
“室内设计是为了强调暴露建筑物骨架的效果,”这一做法补充道。 它说:“新的内墙与原来的墙壁相抵,用的是通常用于外部装修的砖瓦。”“书架和陈列式家具都是独立于建筑之外的独立元素。”
建筑师与设计工作室KIGI合作,“在商店中引入视觉元素,使产品和空间能够以一种自由而独立的方式相互联系”。
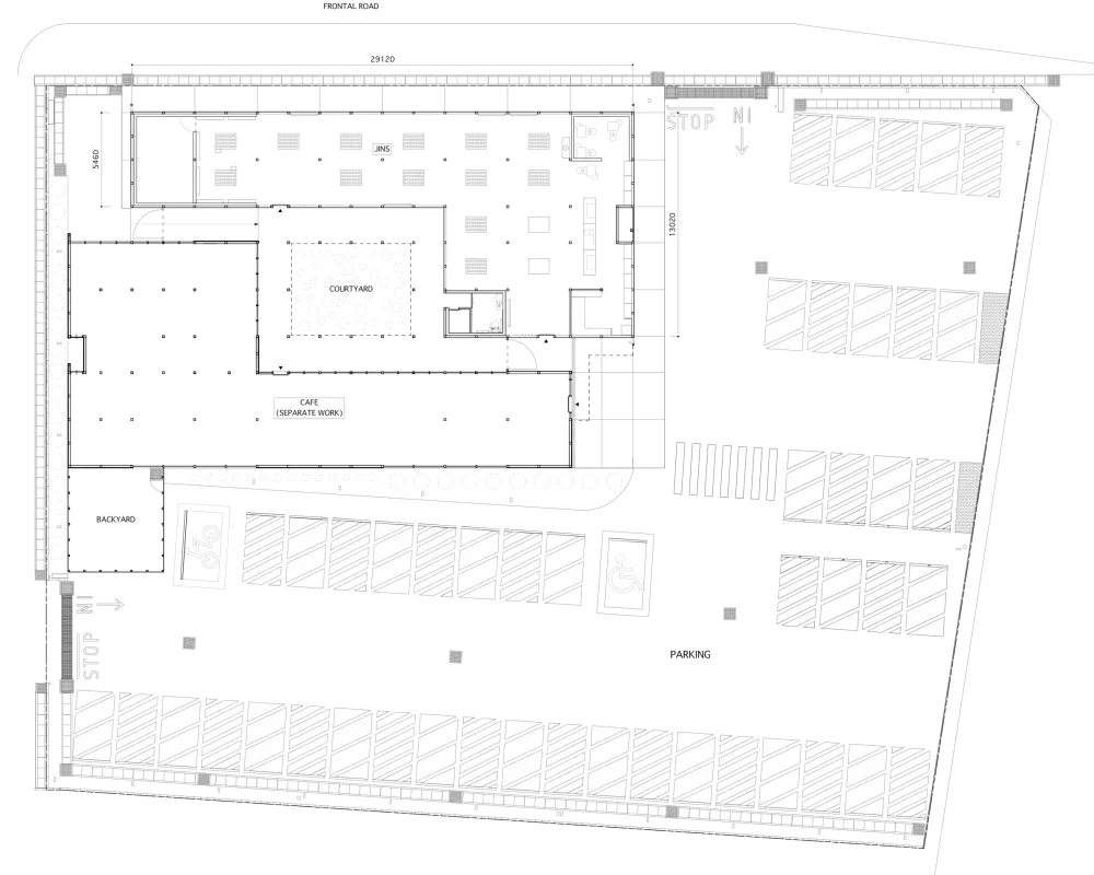
规划图
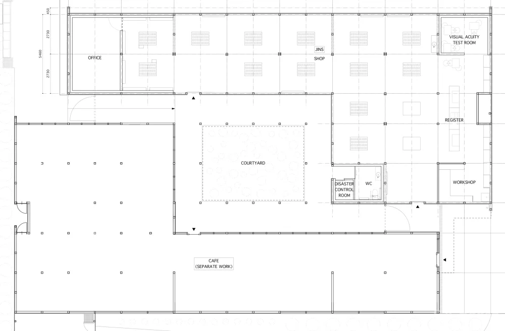
一楼平面
剖面
项目地址:日本 设计:Schemata的建筑师们
版权声明:本文内容由用户自行发布上传或投稿由设计芝士代为发布,版权归原作者所有,设计芝士不拥有其著作权,亦不承担相应法律责任。如果您发现本站中有涉嫌抄袭或侵权的内容,请点此提交工单进行举报,一经查实,本站将立刻删除涉嫌侵权内容。

