在今日广州最繁荣的翡翠产业中心,在古旧的西来初地华林禅寺小路的尽头,是几座陈旧的私宅,有着所有老旧房子的一切特征:狭长空间,隔间多,采光差。业主的委托是要在翡翠店家云立的闹市中突显出来,让顾客、游客、路人留下清晰的印象,成为特点突出形式新颖的珠宝空间。

知音馆是由宇岛工作室设计的一个全新翡翠零售体验馆。有别于传统的玉器零售模式,知音馆有更加丰富的内容与舒适的环境,融合服装、瓷器与茶艺,用简单的材料与色调烘托出生活化的休闲体验。


新建的外墙梳理平整了原本参差不齐的外立面,墙上的方窗编排有机错落,显现的内部空间深浅不一。不仅表达出每层室内空间的多样性,还具备多个独立橱窗的展示功能。白墙与方窗的结合,构成了一个有机变化的抽象整体,成为广场上一个新的亮点。


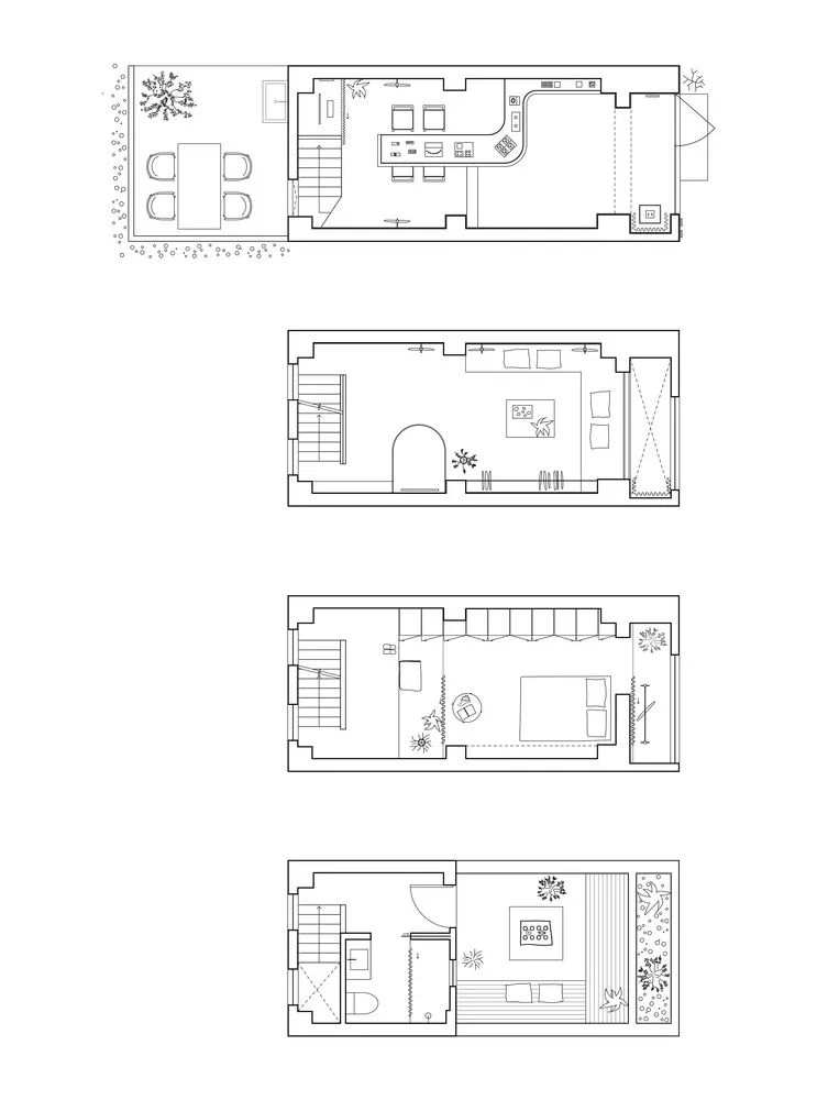
位于一层的是翡翠展示与零售的功能,新增立面创造出一个极窄的双层空间,缓解了有限层高带来的不舒适感。墨绿色的弧形水磨石吧台将空间向内引伸。金色吊灯的造型呼应着吧台的曲线。 在入口处,吧台靠着墙面,形成一个小的展示空间,而在内部是一个可容纳四人的桌子。房间尽头是一扇低矮的小门,通往后院的茶座。楼梯采用粉红色水磨石,为室内增加趣味性,并视觉上邀请客人上二楼。

二层房间结合服装展示与茶座,鼓励客人坐下来,轻快,柔软的氛围化解低矮的层高带来的压抑感。地面与部分墙身采用素雅的灰色水磨石,搭配暖色的樱桃木卡座。
通过简单的地台与墙柜设计,三层是员工的休息室与提供主要的收纳空间。室内空间以简洁低调的白色为主,强调原有梁柱结构带来的光影效果。在房间尽头面向广场的是一个一米深的橱窗空间,提供额外的商业展示功能。每层楼梯都有一扇小窗户,搭配灯光设计创造出有趣的明暗对比。
四层是厕所与面朝广场的露台。厕所全面使用白水泥,搭配黑色的配件与精心安排的灯光,有种强烈而简洁的工业风。露台的座位采用水泥与炭烧木,搭配粉红色的水磨石茶几。
知音馆是一个从建筑角度出发的室内项目。室内空间使用简洁而轻快的语言,搭配现场浇筑的墨绿色、粉红色与灰色的水磨石与不同透明度的窗帘。水磨石的质感与光泽对比轻柔的帘子,是在模仿玉器与服装的组合。室外保存广场和街道的亲密尺度关系,为其带来一种简洁低调而轻快的现代感。


设计公司:宇岛工作室 项目位置:中国广州 主创建筑师:郭宇辰, Alex Darsinos 建筑面积:78.0 平方米 项目年份:2017
版权声明:本文内容由用户自行发布上传或投稿由设计芝士代为发布,版权归原作者所有,设计芝士不拥有其著作权,亦不承担相应法律责任。如果您发现本站中有涉嫌抄袭或侵权的内容,请点此提交工单进行举报,一经查实,本站将立刻删除涉嫌侵权内容。

