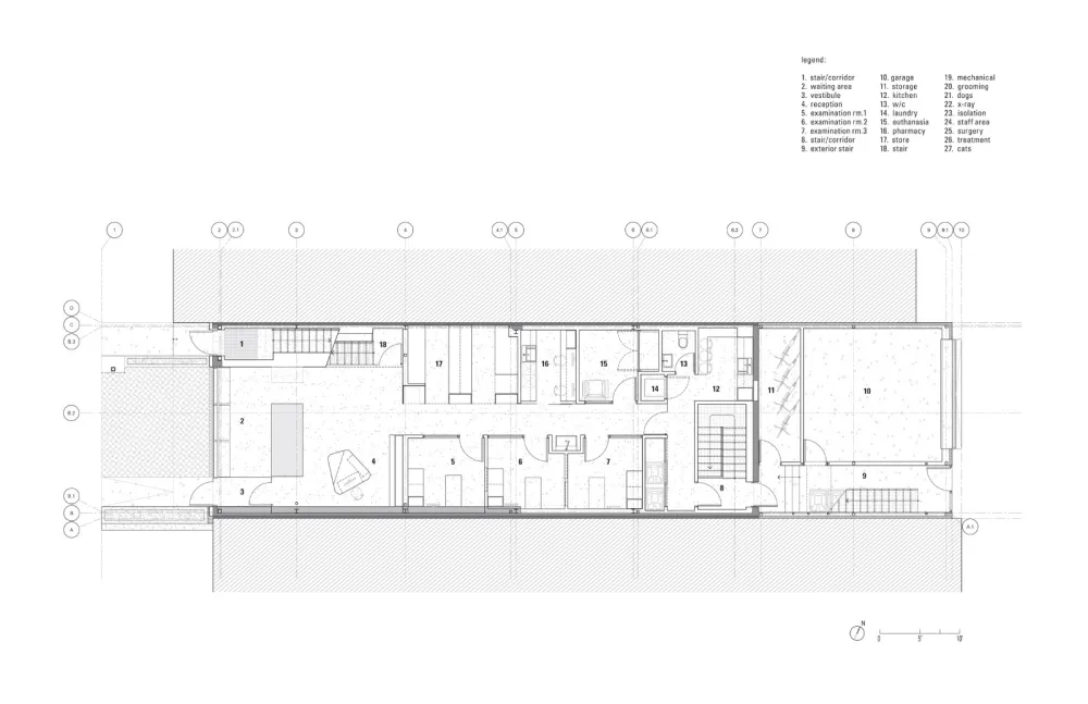
大多数兽医诊所都有同样的无菌外观,但30多年来似乎没有更新过,但帕洛阿尔托医院的兽医采取了不同的方法。T B A (Thomas Balaban建筑事务所)对空间进行了翻新和扩展,包括全新的兽医院、SPCA急诊诊所和位于蒙特利尔Mile End社区顶部的四个住宅单元。
 
 
混凝土地板便于宠物后的清理,同时保留了原始的细节,为诊所增添了特色。接待区设有一个大型玻璃板,动物和它们的主人可以在这里向下窥视。室内拥有极简主义的感觉与苍白,舒缓的颜色,希望保持小动物的情绪稳定下来。
 
 
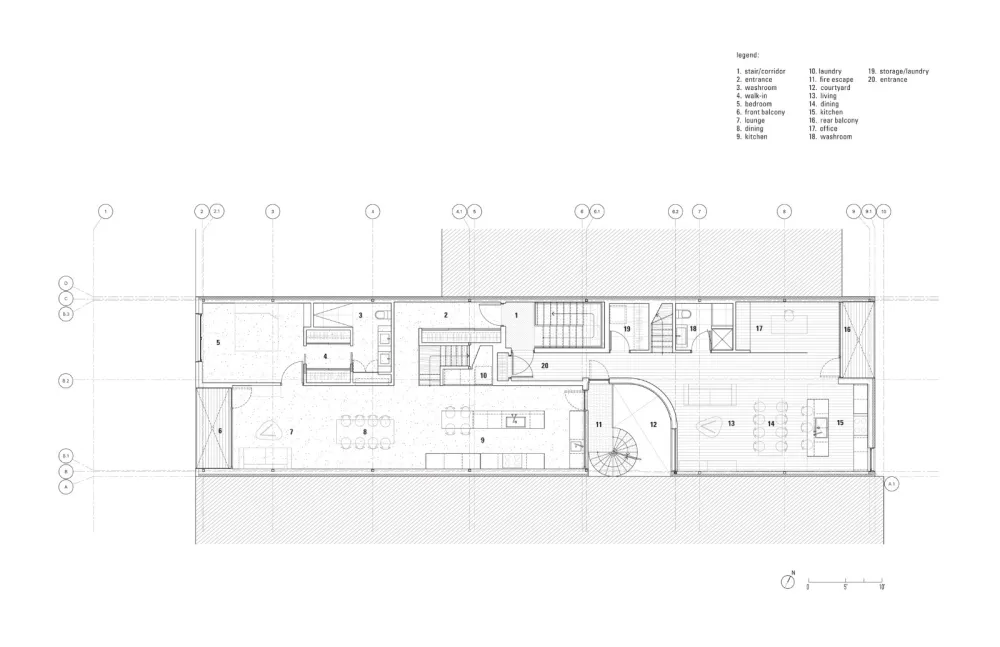
在居民区,你永远不会知道它们与动物医院相连。外立面采用了一种材料——石灰岩进行了单色翻新。阳台设置在设计中,以确保租户的隐私,同时保持前平面和流线型。



























 
 
Architect: Thomas Balaban Architect (TBA) Project team: Jennifer Thorogood, Julia Manaças, Mikaèle Fol Contractor: Habitations Renaud Windows and doors: Alumico Interior design: TBA, Jean-Marc Renaud Kitchens: Cuisines Steam Lighting: D'Armes Clinic mural: Cecile Gariepy Exterior mural: A Mano Photo:Adrien Williams / T B A
版权声明:本文内容由用户自行发布上传或投稿由设计芝士代为发布,版权归原作者所有,设计芝士不拥有其著作权,亦不承担相应法律责任。如果您发现本站中有涉嫌抄袭或侵权的内容,请点此提交工单进行举报,一经查实,本站将立刻删除涉嫌侵权内容。
    

