汽车商店,以前是汽车的主要销售场所,不再是汽车品牌和展示给顾客的专属场所。多通道销售点使顾客在进入汽车商店前可以在品牌和车型之间做出选择;因此,90%的顾客都已经提前选择了一个车型。 在销售日益分散化和消费者习惯改变的压力下,汽车零售商店日益成为营销和视觉品牌的空间。这反映在零售空间的设计上:无处不在的玻璃类型学已经创造出了品牌和产品的大杂烩。
在韩国首尔为豪华汽车品牌的诞生设计了一家商店,让AMO质疑汽车零售空间作为销售环境的相关性,并探索其进一步的潜力。由AMO开发的创世纪空间身份概念重新考察了汽车行业的传统规范。
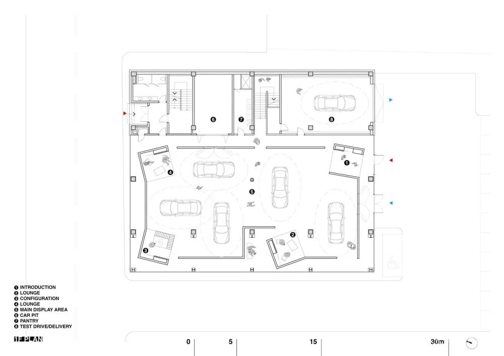
AMO不仅仅是一个公开的销售和展示环境,它创造了一个商店的设计,在这个设计中,有一种更微妙的“创世纪”的信息。在AMO对建筑与品牌之间的互动进行研究之后,“创世”江南商店把汽车展示当作一种管理,打破了尽可能多地展示尽可能多的模型的惯例。为了强调汽车的设计和工艺,展出的模型被放置在灰色混凝土的中性背景下,由上面的明亮的天花板点燃。
一般来说,汽车零售空间的设计包括大型橱窗,一眼就能看到里面的内部。相比之下,创世纪空间是一个逐渐发现的空间,通过选择柔和的色彩和材料来进行室内设计。此外,为了减少销售活动的干扰,采购过程被放置在一系列独立的房间里。家具通过使用与空间相同的颜色和材料,被混合到不同的房间里。
为了设计“创世”江南商店,AMO重新参观了汽车行业的传统经销模式。该商店的设计目的是关注游客的需求,并为他们提供一种真实的、类似的体验,而这种体验是无法用数字技术来替代的。“创世”江南商店的设计为全球推出战略制定了一系列指导方针;位于首尔的“创世”江南店将是新汽车零售概念的首次应用。




























Architects:OMA Location:Seoul, South Korea Partner-in-Charge Chris van Duijn AMO Director:Samir Bantal Project Architect:Shinji Takagi Area:1410.0 m2 Project: 2018年 摄影师:June Young Lim, Jay Jeon, Silvia Sandor, Shinji Takagi
版权声明:本文内容由用户自行发布上传或投稿由设计芝士代为发布,版权归原作者所有,设计芝士不拥有其著作权,亦不承担相应法律责任。如果您发现本站中有涉嫌抄袭或侵权的内容,请点此提交工单进行举报,一经查实,本站将立刻删除涉嫌侵权内容。

