食酒堂坐落于美丽的滨海城市海口.海口湾,毗邻海边。一栋三层建筑,由Ly设计事务所从建筑外立面改造、到室内及后期配饰整体打造。 食酒堂取自道家的“一为始,九为终”这句话,取和谐:“食酒”——意为有始有终,同时“食酒”也表达了对于精酿啤酒的自我理解,和对消费者所表达的一种期望,喝出其中的千滋百味。


关于酒、美食、时间、邂逅、与你相遇的种种可能,有过各种美好想象。 于千万人之中遇见你所要遇见的人,于千万年之中,时间的无涯的荒野里,没有早一步,也没有晚一步,刚巧赶上了,那也没有别的话可说,唯有轻轻地问一声“噢,你也在这里吗?” 引用张爱玲的这句话来体悟再好不过了。 ▼立面近景

食酒堂是一家以精酿啤酒为主配以美食为副的酒馆,把对自由、极限、多元、创新的向往,加入啤酒的酿造过程中,是整个设计的核心。 建筑外立面由啤酒花和麦芽的元素提炼、御用到外墙形成大小不同的灰色几何体组合、再经过分离重构而成,形成通透的光影效果和别具一格的整体造型。
▼首层空间概览

▼9米长酒墙用纯铜板打造
9米长酒墙用纯铜板打造,分别装有36个酒头链接到背面的酒库。 可以随时喝到各种口味,如花香、花果、香草味、焦糖味、咖啡味、甜中带苦、苦中带香、每一口都有不同滋味层层递进,让人回味无穷。 真正爱酒之人,在乎的一定是酒本身的迷人风味,如果你真的爱喝啤酒,总有一款精酿啤酒会成为你的心头好!
▼酒墙细部
▼混凝土和金属元素的搭配兼顾了粗犷和细腻之感,the concrete walls are integrated with metal elements to offer a rough ye


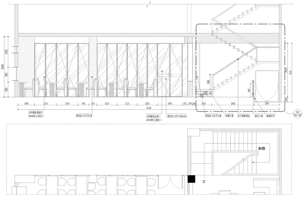
延动线进入楼梯间,将精酿的发酵罐陈列展示,可以感受的发酵的过程,和它的奔放。 在空气中酝酿,随着光的指引,高冷专属的黑色钢板楼梯在柔黄的灯光氛围下从一楼链接至三楼,展现出空间的活力与热情。 ▼黑色钢板楼梯在柔黄的灯光氛围下从一楼链接至三楼



▼二层楼梯间细部


空间二楼三楼延续黑、灰色系和铜条金属材质配以皮质沙发,极简,没有一点多余的东西,就像精酿啤酒的本身呈现的方式,自发性的自然,直接的,给当代人一个放松的空间,享受一个原始的状态。 透过落地窗感受着椰风海韵,在都市之中,寻觅一份静谧、淡然的状态。

▼透过落地窗感受椰风海韵
▼室外露台

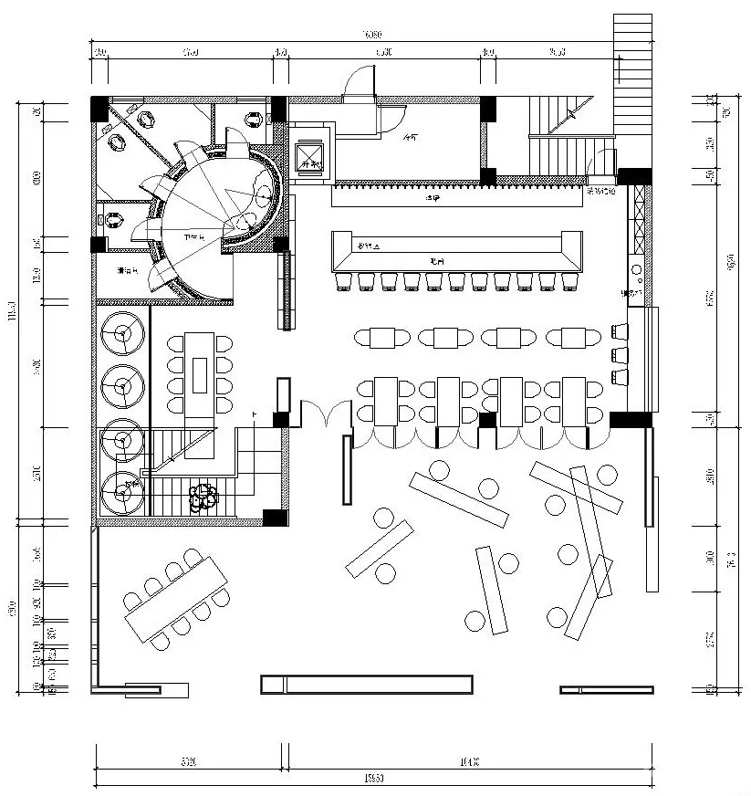
▼首层平面图
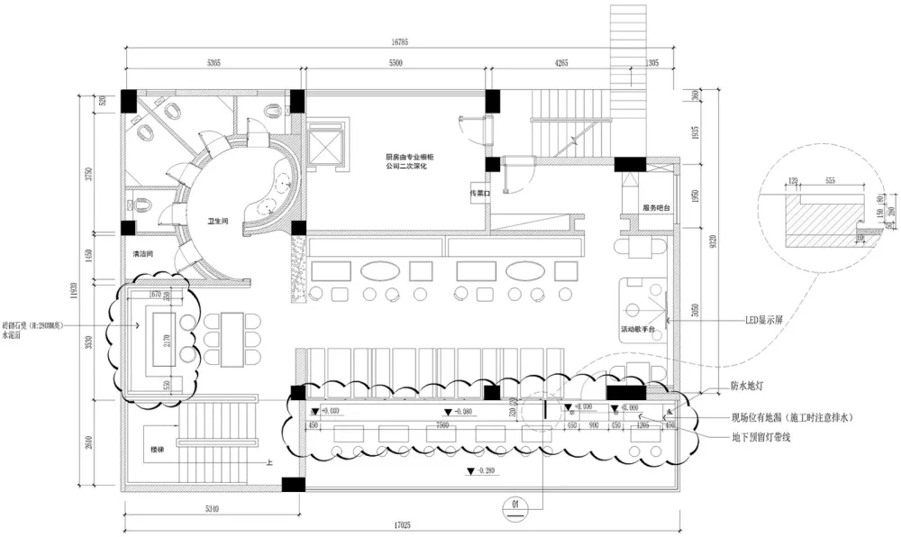
▼二层平面图
▼三层平面图
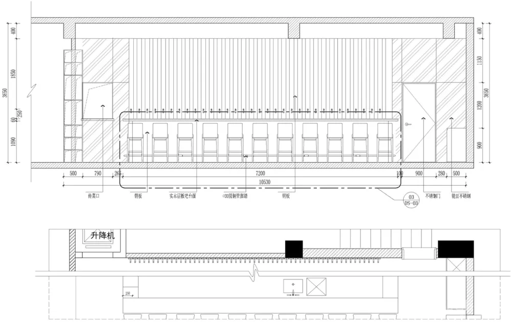
▼吧台立面图
▼酒吧立面图
▼外立面墙面铺贴示意

项目名称:海口 食酒堂精酿吧 设计公司:深圳Ly龙丽仁室内装饰设计有限公司 设计团队:龙丽仁 马莉菠 马文涛 面积:576 项目性质:精酿啤酒吧 设计时间:2017年 2月 竣工时间:2017年 10月 摄影公司:深圳市释象万和文化传播有限公司
版权声明:本文内容由用户自行发布上传或投稿由设计芝士代为发布,版权归原作者所有,设计芝士不拥有其著作权,亦不承担相应法律责任。如果您发现本站中有涉嫌抄袭或侵权的内容,请点此提交工单进行举报,一经查实,本站将立刻删除涉嫌侵权内容。

