医疗保健改善和病人模拟中心是田纳西州的第一个此类设施,也是全国为数不多的在医疗保健领域倡导跨学科设施概念的机构之一。高等教育的这一新的步骤,旨在通过提供更友好的步行环境、身临其境的临床经验和更有目的的与工作人员和同伴联系的方式来提升学生的体验。
田纳西州孟菲斯大学(University of Tennessee Memphis campus)一直以来都在与一个有凝聚力的、步行友好的校园进行斗争,一直以来都在不断增加结构,几乎没有考虑到一致性和方便的访问。芯片建筑作为多元城市元素之间的现代联系,通过形式、物质性和功能对多种变量做出反应。
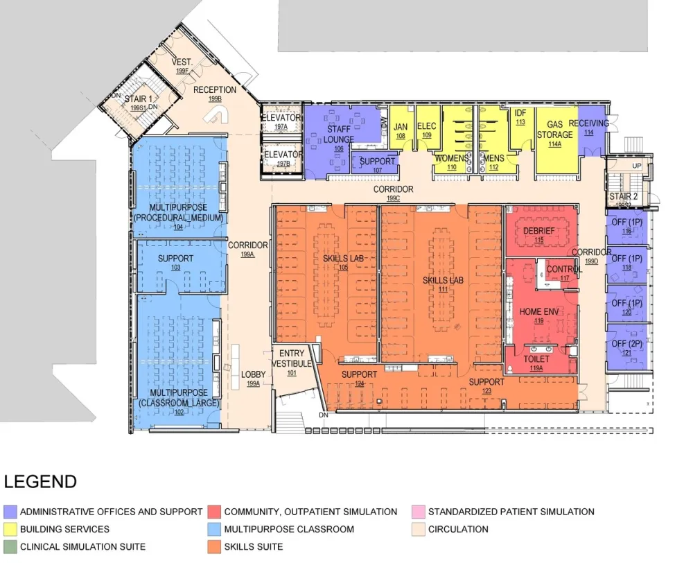
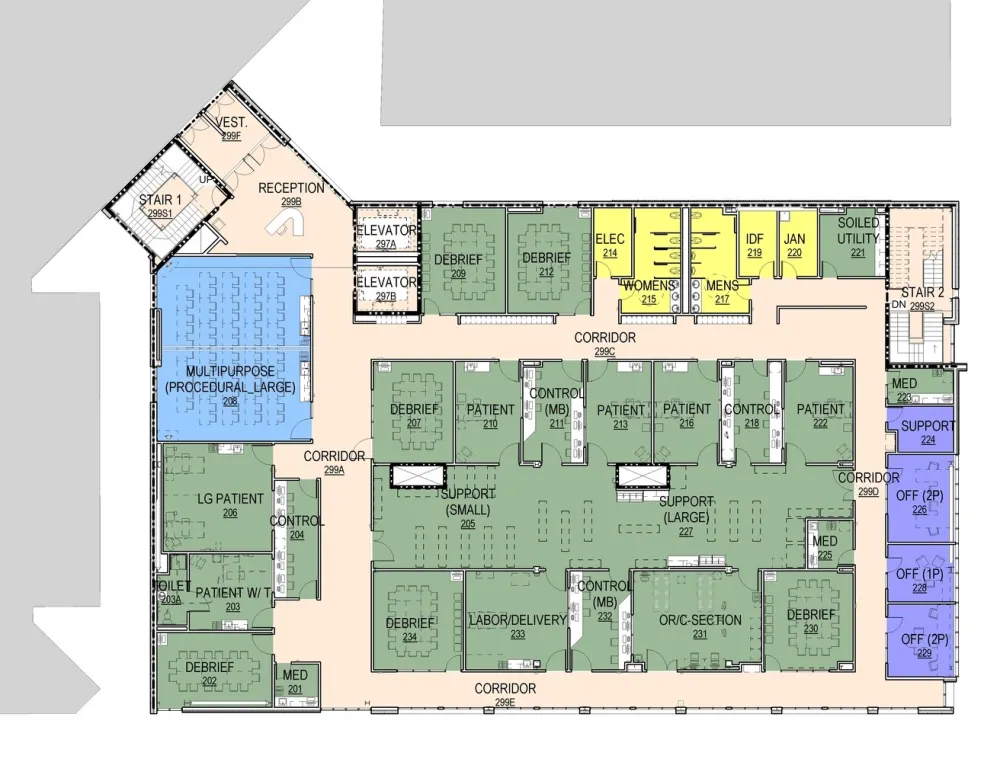
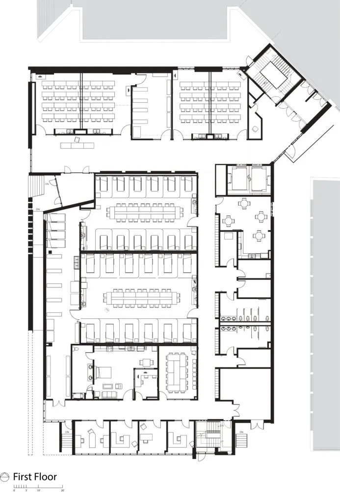
这一设计不仅在美学上令人愉悦,而且通过为大学众多跨学科学者提供服务的手段而具有价值。除了促进周围环境的物理和美学连接,芯片构建还提供了一种进步学生学习的方式。室内空间如技能实验室和多用途教室可以根据多种卫生保健学科的需要进行改造。
每一种课堂体验都是设计来提供沉浸式的情境,模仿真实世界的工作人员和病人流动的功能。把这些元素结合在一起,创造一种一致的审美,为个人提供一个安全舒适的环境,设计一个与多个教育行程无缝衔接的空间,就像一个工具,继续推动医疗教育的边界。




















位置:美国田纳西州孟菲斯市邓拉普街26号 项目负责人:Brett Ragsdale 首席设计师:杰森·杰克逊 项目架构师:凯特海伍德 区域:60719.0 ft2 项目年:2018 照片:Tim Hursley
版权声明:本文内容由用户自行发布上传或投稿由设计芝士代为发布,版权归原作者所有,设计芝士不拥有其著作权,亦不承担相应法律责任。如果您发现本站中有涉嫌抄袭或侵权的内容,请点此提交工单进行举报,一经查实,本站将立刻删除涉嫌侵权内容。


h