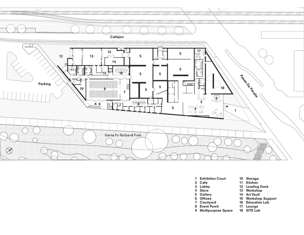
SITE Santa Fe是美国西南地区领先的当代艺术机构,而且迫切需要进行全面的翻新和扩建。我们团队的改造赋予了旧啤酒仓库新的生机,变成了崭新的画廊和艺术聚集空间。改建同时提供了现代化的室内环境操控系统,提供了新的行政与教育设施,并极简了后台艺术品管理和操作过程。
鉴于该艺术组织对于艺术创新特殊的管理方法,我们的客户对于更新后空间所呈现的特征格外关注。折叠的穿孔铝制建筑表皮系统定义了建筑物的外部的艺术的基调与气息,再经过精心校准和设计,外立面即迎合了旧场地所有的独特环境,也将其扩建改造融入到了项目周围传统的建筑群景观中。
通过与管理层和员工充分调研合作,我们制定了满足其需求的管理经营策略,同时也考虑到了对于艺术机构不断扩充的受众的需求。该建筑新的,且充满活力的外观对社区和游客发出了作为社区艺术机构的邀请,也展现了SITE Santa Fe在向前不断发展的时代下标志性的存在感。








建筑师 : SHoP Architects 地址 : 圣菲,新墨西哥州,美国 项目年份 : 2017
版权声明:本文内容由用户自行发布上传或投稿由设计芝士代为发布,版权归原作者所有,设计芝士不拥有其著作权,亦不承担相应法律责任。如果您发现本站中有涉嫌抄袭或侵权的内容,请点此提交工单进行举报,一经查实,本站将立刻删除涉嫌侵权内容。

