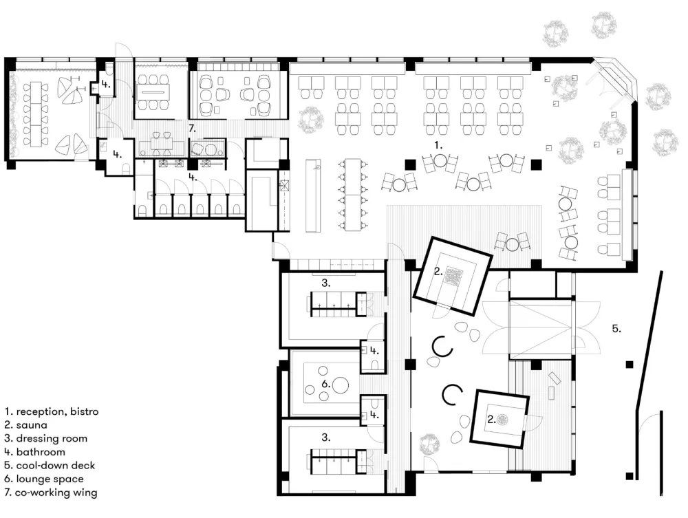
工作室Puisto在芬兰的坦佩雷设计了一个桑拿房,作为周围地区的“公共客厅”。位于前工业红砖区,540平方米的芬兰松木桑拿浴场已被插入一个前海关检查站,该检查站后来被用作仓库建筑。桑拿房由梦想酒店运营,该酒店也由总部位于赫尔辛基的工作室Puisto设计,位于街道的另一侧。
该设计的目的是建立在19世纪晚期的kortteli桑拿,或社区桑拿的概念之上,社区将会满足基本的卫生需求。在这个时候,当城市和住宅的空间有限时,人们往往太过简朴,无法容纳个人的洗手间,kortteli桑拿就像公共的起居室一样,在那里,公众可以洗澡和分享想法和想法。考虑到这一社会因素,Studio Puisto将一家提供当地美食的小酒馆和一个合作的空间加入到这个计划中。
工作室Puisto说:“这是一种叫图林的东西,意思是芬兰的习俗,桑拿浴的名字是指这个地方的过去,作为市政当局的海关检查站,它的目标是作为居民和游客的中心聚集场所。”“作为一种现代的kortelli桑拿,Tullin桑拿浴室同样是一个公共的客厅,既可以是梦想酒店,也可以是城市里更大的区域。”
建筑师们渴望尊重桑拿浴的工业历史,同时创造出一种真实而又“诚实”的桑拿体验,建筑师们将建筑粗糙的混凝土表面分层,用天然的、温暖的芬兰松木,传统上是在该国的桑拿房使用的。
建筑师解释说:“由此产生的建筑体现了一种怀旧的感觉,在两者之间进行了一场生动的、互补的对话。”“其他经过深思熟虑的细节,比如通过叠加将混凝土室环重新设计成淋浴区,也重申了设计过程背后的概念和意识形态。”
这个项目包括两个传统的烧木头的芬兰桑拿,每一个都有鲜明的氛围。其中一种颜色是深色和泥土的颜色,类似于一种稀树大烟,或者是烟熏桑拿浴,而另一种则是一种轻盈、轻快的色彩和材料的调色板,灵感来自于夏季别墅的那些
“这两种原木桑拿都是由当地的工匠建造的,他们都与桑拿和他们的工作方式有着根深蒂固的联系,确保这两种体验也确实是真实的,”建筑师们说。
Puisto工作室希望将这种仪式性的桑拿环境转化为建筑的其他空间,包括合作办公空间、小酒馆和接待处。为了达到这个目的,他们把一个原木桑拿放置在一个小的彩色窗户上,让它在里面的小房间里有一个小窗口。此外,传统的桑拿项目,如金属桑拿浴室——桑拿桶——在接待区清晰地显示出来。




设计公司:Studio Puisto 项目位置:芬兰坦佩雷 设计时间:2018年 翻译:new.rushi.net
版权声明:本文内容由用户自行发布上传或投稿由设计芝士代为发布,版权归原作者所有,设计芝士不拥有其著作权,亦不承担相应法律责任。如果您发现本站中有涉嫌抄袭或侵权的内容,请点此提交工单进行举报,一经查实,本站将立刻删除涉嫌侵权内容。


?