异梦洞天:B-monster,来自纽约潮流前沿的格斗系健身俱乐部,引领着“暗黑拳击”这样一个热辣新鲜的话题,抵达上海保利时光里。毋庸置疑,B-monster做为全球健身行业的领先者,“绝不妥协”、“火力燃烧”就是它的代名词。CROX闊合以〝异梦洞天〞的创作概念为健身俱乐部于中国第一家店赋予全新的品牌形象,也为拳击爱好者打造出一个极具富有戏剧性的运动空间。
CROX闊合设计的出发点是凿开都市水泥丛林的厚墙,让身心得以在黑暗中释放,把格斗运动塑造成一个充满仪式感的空间序列——异地洞穴、火红更衣间、盗梦操房,三个空间连结成完整沉境式体验。
B-monster上海概念店外观像个偌大的水泥块,在水泥块上凿开大小不一的裂口,不仅丰富了造型,更重要的是能打破隔离,巧妙地把人与墙距离拉近,凿开的裂口入可以提供休息、体验、展示等功能。而最大的破洞即为大门,象征探险的入口。
体验者一旦踏入,宛如置身于万年前的原始洞穴LASCAUX CAVE,藉由收藏纽约街头涂鸦艺术家Alexander Kaletski的涂鸦作品,呼应最早有记录人类绘画文明的起源地,延续古今形成新的FREESTYLE,既摩登又原始的海派交融,引领着人们不断往前迈进,直达洞穴的转弯处,此时一个阳光的中庭映入眼帘,带来不一样的体验。
伴随着心中的期待,体验者走进泛着星星之火般的红色试衣间,逐渐提升的兴奋感开始蔓延,空气中充满了躁动的神秘。
CROX闊合将操房打造成了每一个人的舞台——偌大的练习场上空是一整片动感的浮光掠影,非凡的感觉在此聚焦,配合着现场DJ打碟与炫目灯光,人们在这里为了运动而疯狂,无意识地挥动着自己的身体,跟随教练,不停移动与击打,完完全全释放出对城市深刻的情绪。
上海需要创造一个可以抒发情绪、抛开思想、解决烦恼的压力释放场,鼓励都市人对抗现实的勇气。在B-monster穿过层层洞天,让你我好似无重力的飞翔在广阔的黑色天空,最后在充满音乐的场域内,像拳王阿里般——如蝴蝶般移动,像蜜蜂似的出拳。



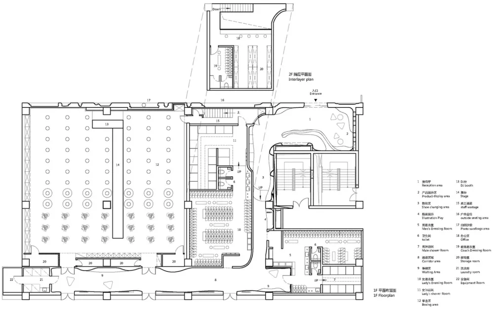
平面图
项目名称:上海B-monster 设计单位:CROX闊合 联系邮箱:press@crox.com.tw 设计团队: 林琮然、李本涛、徐晨翔、黄培耿 项目地点:中国上海徐汇保利时光里 完成时间:2018.11 建筑材料: 水泥,木材,黑色不锈钢,磨石子 建筑面积:720平方米 客户:B-Monster 摄影:王基守(BLAKE) 撰文:C.R.Lin
版权声明:本文内容由用户自行发布上传或投稿由设计芝士代为发布,版权归原作者所有,设计芝士不拥有其著作权,亦不承担相应法律责任。如果您发现本站中有涉嫌抄袭或侵权的内容,请点此提交工单进行举报,一经查实,本站将立刻删除涉嫌侵权内容。

